Milton Road, Harpenden, Hertfordshire, AL5 5LL

Let Agreed
£1,750 PCM
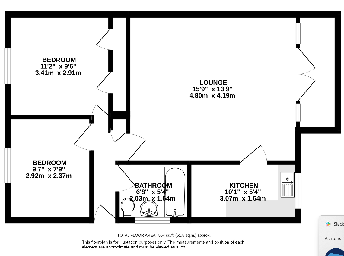
Bedrooms
2
Bathrooms
1
Receptions
1
Council Tax:
D
EPC:
B

A well-presented furnished first floor apartment within moments of Harpenden station and town centre with a garage.

This bright and airy two-bedroom apartment is ideally positioned and has recently been renovated throughout. The spacious reception room is filled with natural light, opens onto a private balcony, and flows into a newly fitted kitchen, which features a range of modern integrated appliances and ample storage cupboards

The main bedroom benefits from built-in wardrobes, and there is a further well-proportioned second bedroom.

The apartment also boasts a recently fitted bathroom with a shower cubicle and vanity unit.

The property is offered furnished, residents parking is available and a garage for added storage.

Shelley Court is a terrific development of large apartments in a well-kept block within a short stroll of all of Harpenden's amenities. Harpenden station offering direct access to St Pancras International is within two minutes on foot and the Town centre provides a charming array of shops, restaurants and leisure facilities.

Council Tax Band:
Council Tax Payable: £2,342.57
Holding Deposit: £415.38
Total Deposit: £2,019.23

Whether you’re looking to
  • buy
  • sell
  • rent
  • let
  • buy
we would love to help.