Coneygate, Meppershall, Shefford, SG17 5GB

Offers in excess of £550,000
Bedrooms
4
Bathrooms
3
Receptions
3
Council Tax:
F
EPC:
C
Freehold

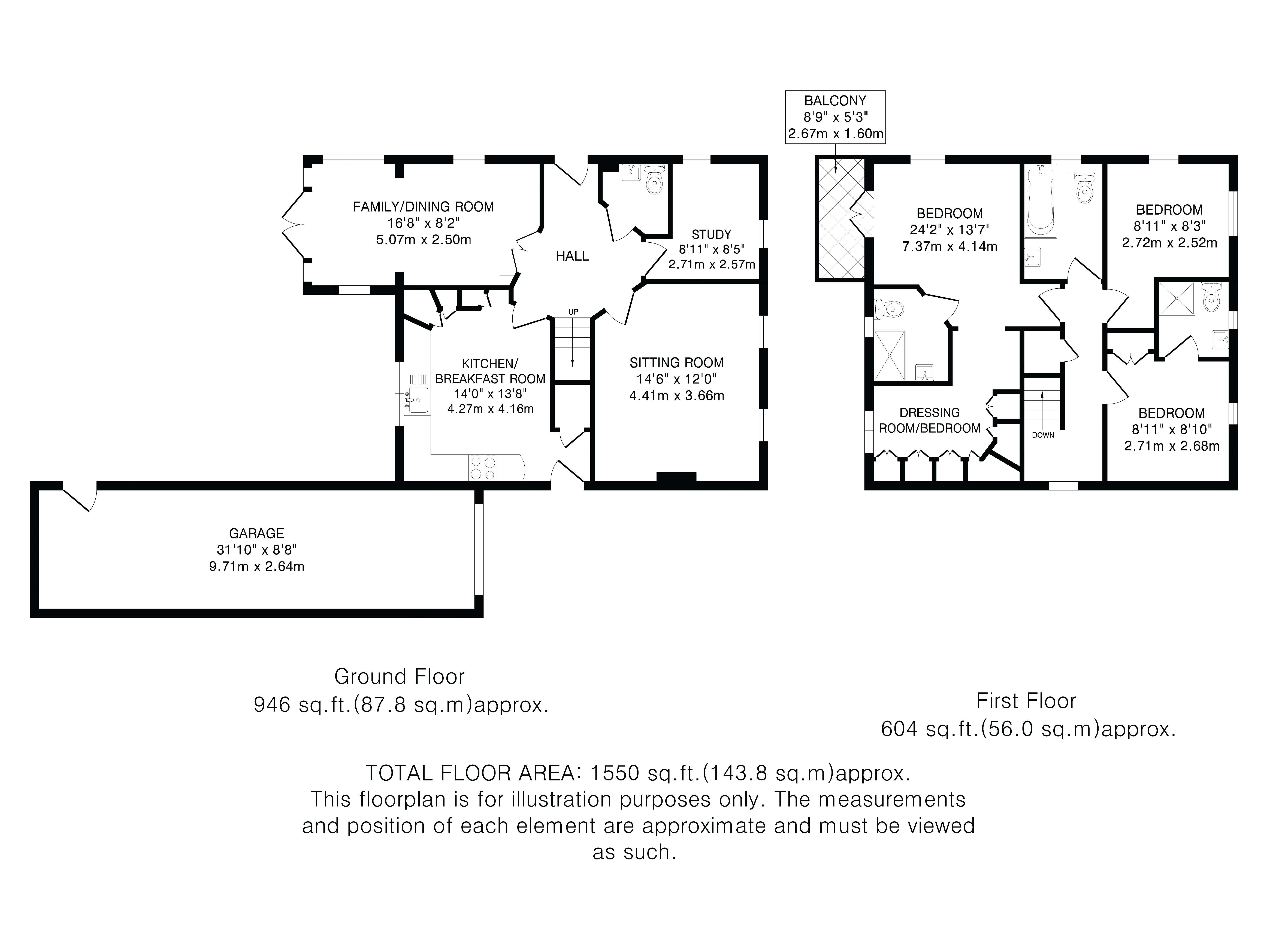
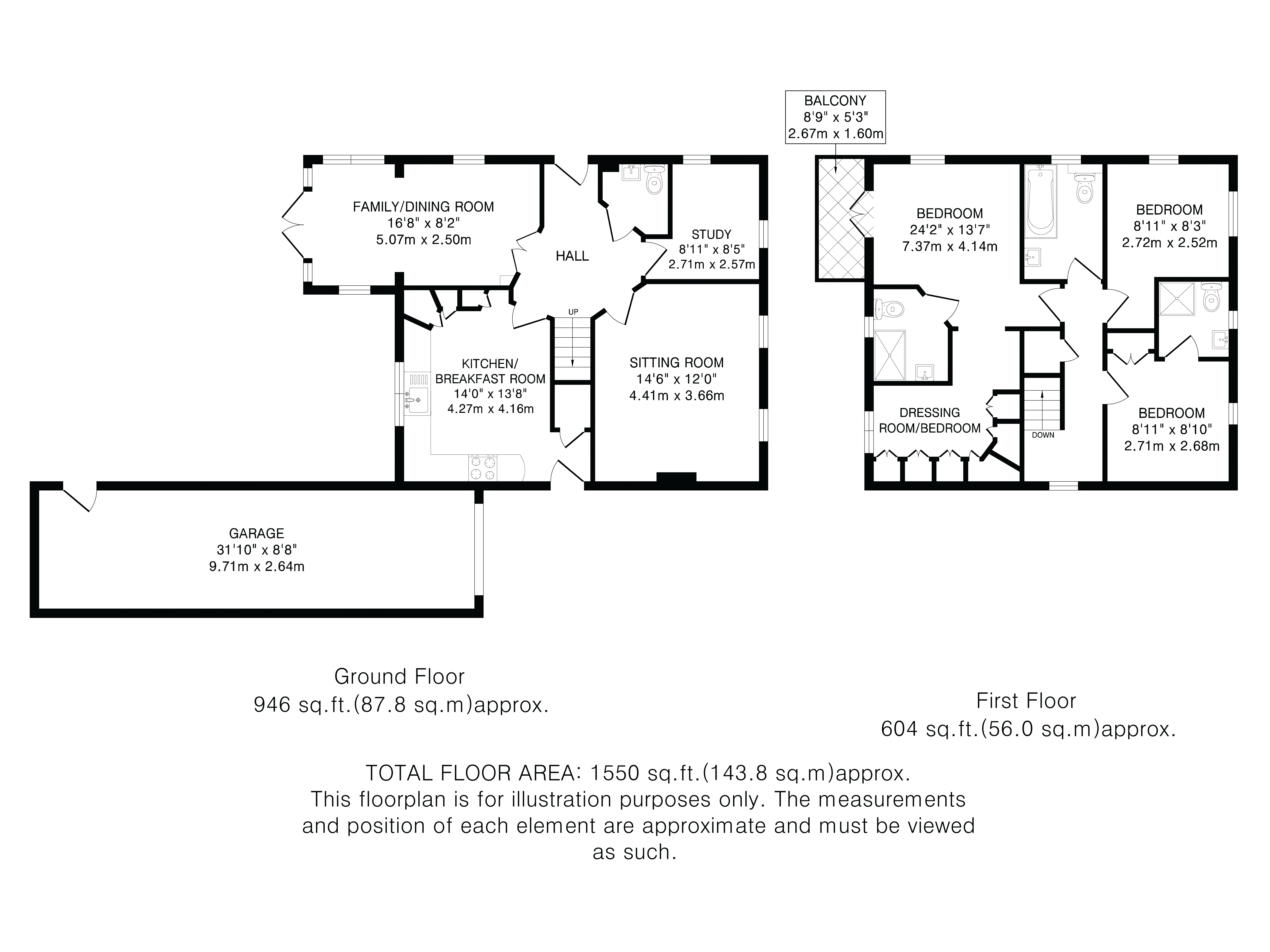
A beautifully modernised four-bedroom detached family home offering spacious accommodation, tucked away in a quiet cul-de-sac in the popular village of Meppershall.

This distinctive four-bedroom, three-bathroom family home is arranged over two floors and offers spacious, modern living with far-reaching views across open countryside.

You enter the property into a welcoming entrance hall, where there is a convenient downstairs W.C. From here, the ground floor flows well, starting with a generous sitting room, ideal for everyday living. There is also a separate study, perfect for home working, along with a versatile family room/dining room. This space enjoys double doors opening directly onto the rear garden, creating an excellent connection between inside and out.

The kitchen/breakfast room is modern and well-appointed, fitted with integrated appliances and offering plenty of space for casual dining. A side door leads outside and is currently used by the owners as their main entrance.

Upstairs, the original layout provided four bedrooms. The current owners have reconfigured one bedroom to create a dressing room, which now opens into an impressive principal bedroom. This principal suite benefits from fitted wardrobes, an en-suite shower room, and a private balcony that makes the most of the beautiful countryside views. The dressing room could easily be reinstated as a fourth bedroom, as the original door from the landing remains; this would simply require the reinstatement of a partition wall and removal of the fitted wardrobes if desired.

The remaining two bedrooms are both comfortable doubles, one of which is served by the family bathroom, while the other benefits from its own en-suite shower room.

Outside, a driveway leads to a single double length garage and provides off-road parking for several vehicles. There is a shingled garden with shrubs and trees, enclosed by a picket fence with secure gated access. The rear garden has been designed with low maintenance in mind and features a lawn, a pleasant patio seating area, and well-stocked shrub, plant, and tree borders, along with access to the garage.

Meppershall is a charming village nestled close to the countryside, offering easy access to nearby towns such as Shefford and Hitchin. The village boasts essential amenities such as a public house, bakery, a convenience store/post office, a well-regarded school and an active community, making it an ideal location for families.

Transport links are convenient, with the A1, A6, and M1 providing excellent road connections. Commuters also benefit from nearby train stations and Luton Airport. Hitchin, just seven miles away, is a vibrant market town known for its rich history and lively café culture, while other surrounding towns offer additional amenities and attractions.

Council Tax Band F: £3,350.46 (2025/26)
Service Charge: £0.00 per annum

Buyers Information:
In compliance with the UK's Anti Money Laundering (AML) regulations, we are required to confirm the identity of all prospective buyers at the point of an offer being accepted and use a third party, Identity Verification System to do so. There is a nominal charge of £48 (per person) including VAT for this service. For more information, please refer to the terms and conditions section of our website.

Whether you’re looking to
  • buy
  • sell
  • rent
  • let
  • buy
we would love to help.