Saberton Close, Redbourn, St. Albans, AL3 7DS

Let Agreed
£2,850 PCM
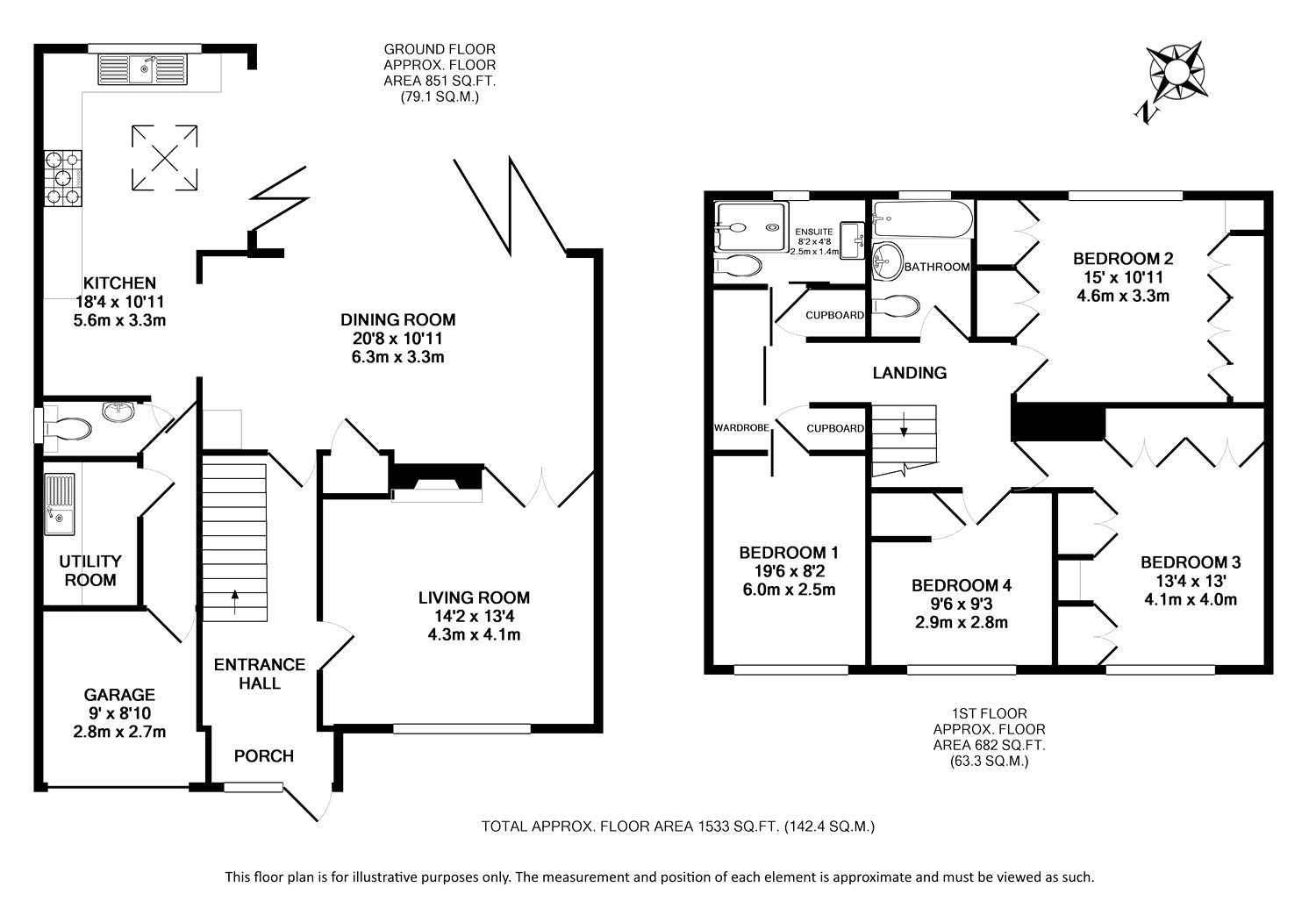
Bedrooms
4
Bathrooms
2
Receptions
2
Council Tax:
F
EPC:
C

Fabulous refurbished semi detached family home with southerly facing garden located in a quiet cul-de-sac close to Redbourn Common.

This impressive semi-detached home offers abundant living space and has been recently refurbished. A small porch to the front opens into an attractive entrance hall with limestone tiled floor with underfloor heating, which also runs throughout the family room/kitchen area. A large living room with feature fireplace and log burning stove overlooks the front of the property. Oak double doors open into a fabulous family room/kitchen with two sets of bi-fold doors out to the garden. The kitchen is fully fitted with a stylish contemporary range of units with butler sink and space for a Range Cooker and American fridge freezer. The intgral garage has been partly converted to accommodate a utility room and WC. Upstairs there are four good sized bedrooms. The master bedroom boasts a dressing area and en-suite shower room with underfloor heating. A further bathroom (also with underfloor heating) serves the remaining bedrooms. The property also benefits from CCTV and is fully alarmed with a Ring doorbell, remote control shutters and electronic blinds/curtains.

Outside to the front there is a driveway providing parking for two cars with storage provided in the former garage. The remainder of the front garden is laid to lawn. The rear garden faces in a south easterly direction and has been attractively landscaped with large patio seating area adjacent to the rear of the house and low-maintenance artificial lawn

Saberton Close is a sought after quiet cul-de-sac in an excellent neighbourhood. Located a short walk from the village common and amenities in Redbourn, a picturesque village in Hertfordshire. Conveniently located for the M1, J9 and M25 motorways and Luton Airport, with easy access to efficient rail links and wider amenities at Harpenden and St.Albans.

Council Tax Payable: £3,407.63 (25/26)
Holding Deposit: £657.69
Total Deposit: £3,288.46
Additional charges may apply

Whether you’re looking to
  • buy
  • sell
  • rent
  • let
  • buy
we would love to help.