Beacon Road, Ringshall, Berkhamsted, HP4 1NF

Guide price of £1,250,000
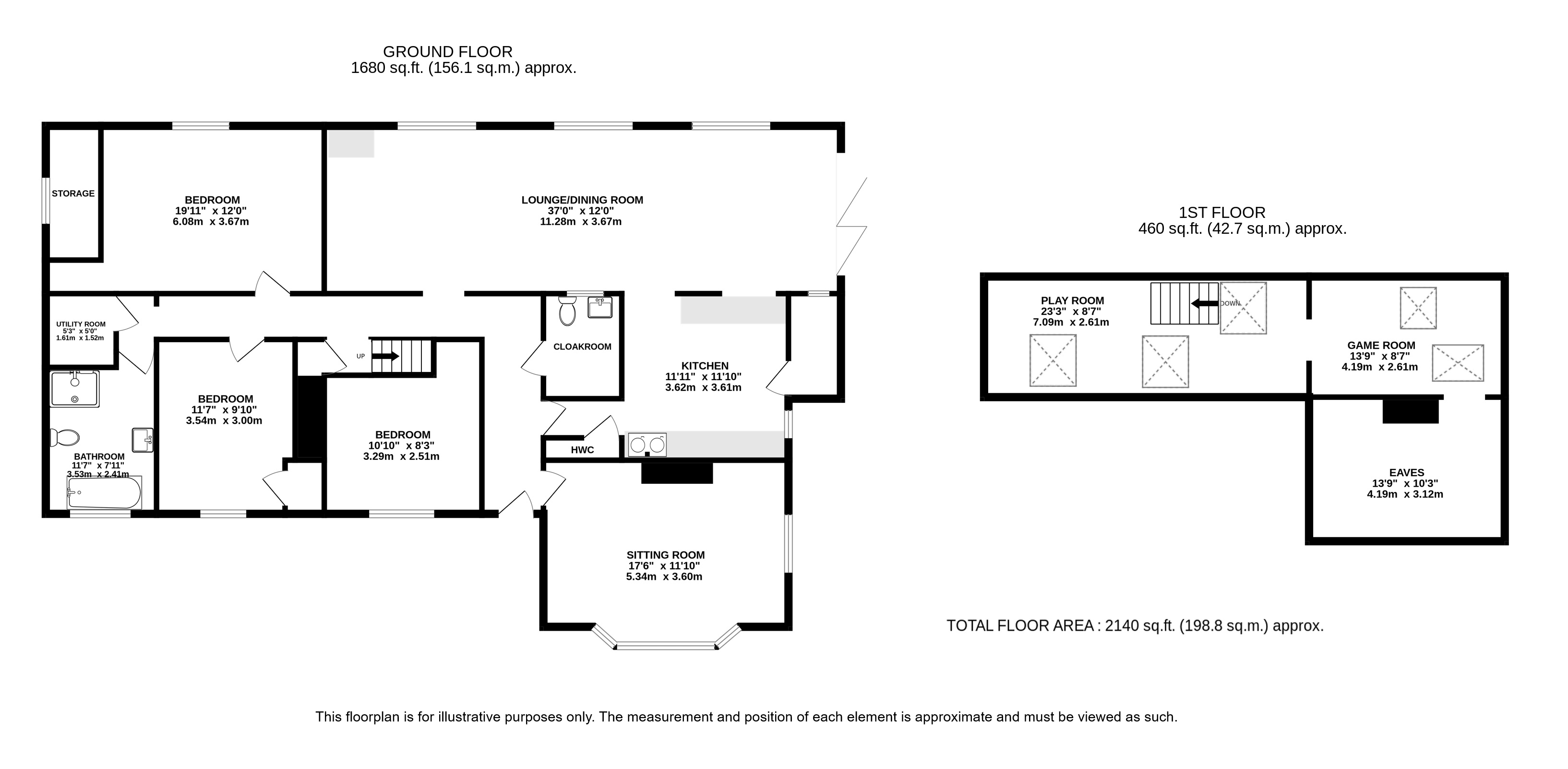
Bedrooms
3
Bathrooms
1
Receptions
3
Council Tax:
G
EPC:
F
Freehold

Unique opportunity to acquire a family home on an elevated plot of 1.5 Acres. The property lends itself to significant refurbishment or a rebuild.

From an elevated position this 1930s bungalow has been extended by the current owner to provide family accommodation comprising, an entrance hall, cloakroom, sitting room (with southerly aspect over the grounds), kitchen, utility room, large family and dining room (double aspect, with patio doors to the garden), three bedrooms, family bathroom and stairs to eaves playroom, games room and store.

The surrounding gardens & grounds are extensively laid to lawn but also include some mature woodland.

Poppets Farm is on the edge of Ashridge Estate - an area of outstanding natural beauty and the former hunting ground for King Henry VIII. Ashridge Estate extends to over 4,000 acres of woodland, common land, and has been shown in many TV programmes and films. It is also within easy reach of Little Gaddesden, which has a Church of England Primary School with an 'Outstanding' Ofsted rating, local shop, Post Office, Church, Sports Club and The Bridgewater Arms Public House. Berkhamsted station 5 miles (Euston 33 mins). Hemel Hempstead 7 miles. M1 (J8) 8 miles. M25 (J20) 11 miles. what3words location - ///masts.inviting.airbrush

Council Tax Band G: £4,151.80 (2025/26)
Service Charge: £0.00 per annum

Buyers Information:
In compliance with the UK's Anti Money Laundering (AML) regulations, we are required to confirm the identity of all prospective buyers at the point of an offer being accepted and use a third party, Identity Verification System to do so. There is a nominal charge of £48 (per person) including VAT for this service. For more information, please refer to the terms and conditions section of our website.

Whether you’re looking to
  • buy
  • sell
  • rent
  • let
  • buy
we would love to help.