Station Road, Berkhamsted, HP4 2EY

Guide price of £450,000
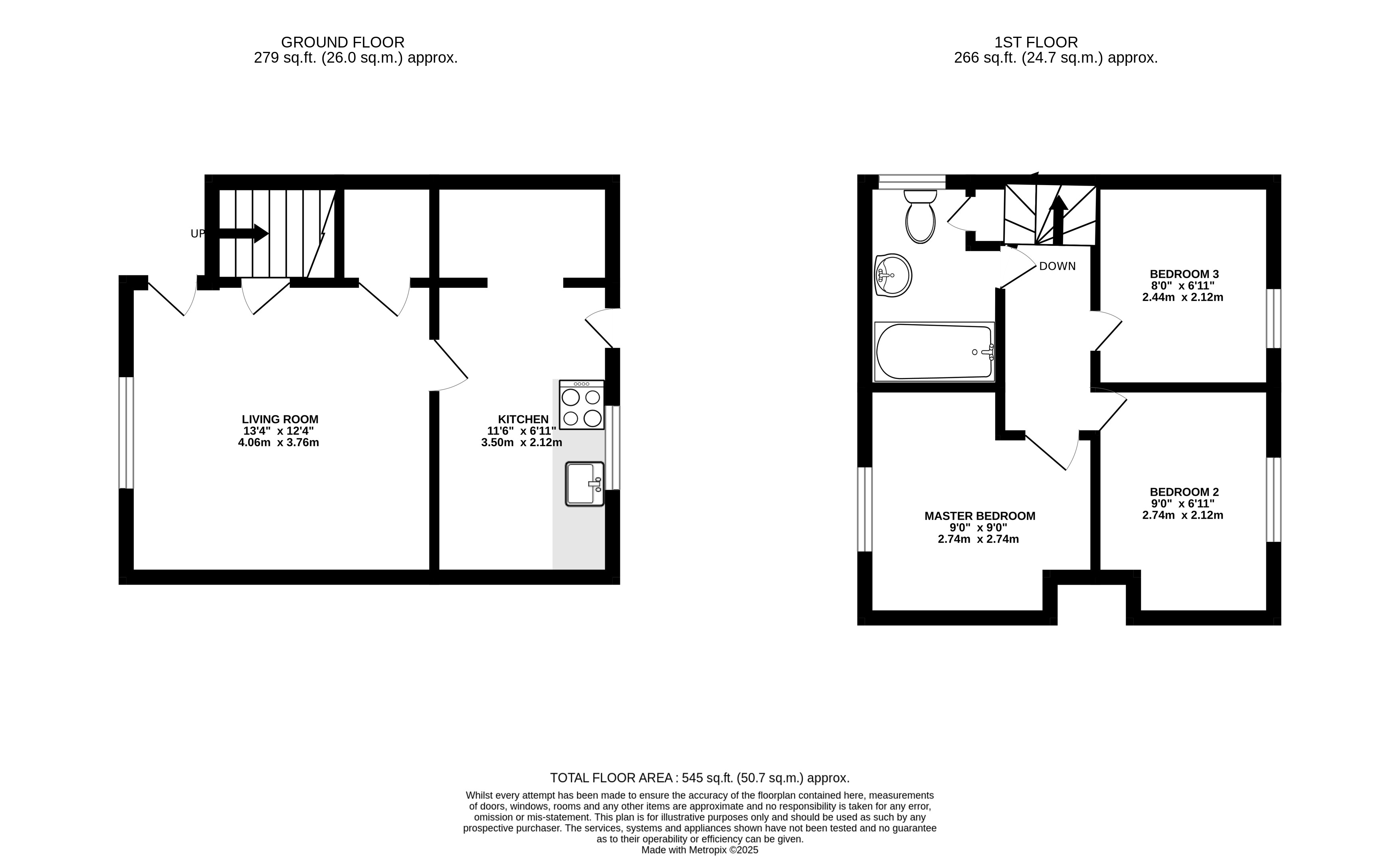
Bedrooms
3
Bathrooms
1
Receptions
1
Council Tax:
C
EPC:
E
Freehold

Three bedroom, semi detached, period home with excellent potential and a highly convenient location.

This three bedroom semi-detached home offers both a fantastic amount of potential and a highly convenient location.

Having been in the same ownership since the early 1980's, this period home is now ready for its next chapter. Well set back from the road, the property consists of; a large reception room to the front, with feature fireplace and a useful storage cupboard, and a kitchen/breakfast room to rear, with access out to the garden. Completing the downstairs, and located just off the kitchen, is a practical walk in pantry/utility area.

Upstairs there are three bedrooms, two of which are double bedrooms with built in wardrobes, and the family bathroom.

Externally the rear courtyard garden, which is walled all around, offers a secluded and private space for entertaining. There is also front to back side access for convenience.

Requiring modernisation, the property is now ready for the next owner to create their perfect home for many years to come.

The property is being sold with no upper chain.

Berkhamsted is a busy market town, located just 30 minutes from London Euston by train, highly desirable for commuters, with excellent transport links by road and rail.

The property is only a short walk from the mainline station and the towns local amenities including, shops, restaurants and pubs.

Council Tax Band C: £2,071.45 (2025/26)

Buyers Information:
In compliance with the UK's Anti Money Laundering (AML) regulations, we are required to confirm the identity of all prospective buyers at the point of an offer being accepted and use a third party, Identity Verification System to do so. There is a nominal charge of £48 (per person) including VAT for this service. For more information, please refer to the terms and conditions section of our website.

Whether you’re looking to
  • buy
  • sell
  • rent
  • let
  • buy
we would love to help.