Mundells, Welwyn Garden City, Hertfordshire, AL7 1FX

Guide price of £250,000
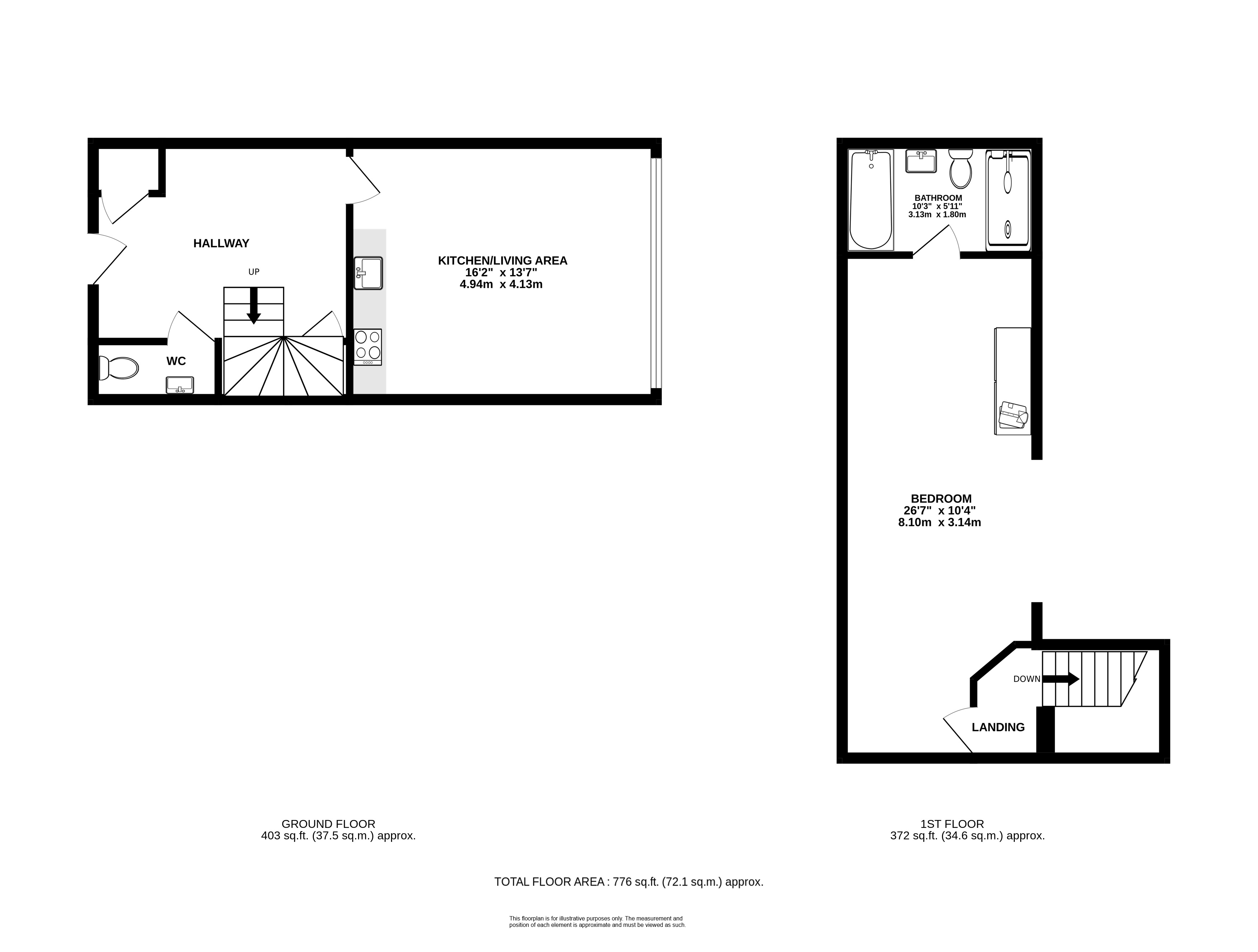
Bedrooms
1
Bathrooms
1
Receptions
1
Council Tax:
C
EPC:
B
Leasehold

A one bedroom first floor duplex apartment with gated car parking within easy walking distance to Shire Business Park and Welwyn Garden City town centre.

This immaculately presented one bedroom duplex apartment is being sold with no onward chain and offers stylish and spacious accommodation arranged over two levels.

Upon entering, you are welcomed by a spacious hallway, featuring a convenient guest cloakroom and a built-in storage cupboard, with stairs rising to the first floor. The heart of the home is an impressive open-plan living area, enhanced by striking double-height vaulted ceilings that create a bright and airy atmosphere.

To the first floor, a landing overlooks the living space and leads to a galleried bedroom, complete with fitted wardrobes and a modern en-suite bathroom, featuring a bath, walk-in shower, wash hand basin, and WC.

The apartment is accessed via a well-maintained communal reception lobby, with both lift and stair access. Externally, the property benefits from secure gated parking for one vehicle, along with additional visitor parking located to the front of the building.

Nearby Welwyn Garden City town centre offers a wide range of amenities and shops. Welwyn North and Welwyn Garden City mainline rail stations are within easy reach with frequent trains to London Kings Cross and Moorgate to the south, and the City of Cambridge to the north. The A1M junction 6 is within a comfortable 10 minute drive.

Council Tax Band C: £2,138.03 (2026-2027)
Service Charge: £3,200.00 per annum
Ground Rent: £250.00 per annum
Leasehold: 138 years remaining

Buyers Information:
In compliance with the UK's Anti Money Laundering (AML) regulations, we are required to confirm the identity of all prospective buyers at the point of an offer being accepted and use a third party, Identity Verification System to do so. There is a nominal charge of £48 (per person) including VAT for this service. For more information, please refer to the terms and conditions section of our website.

Whether you’re looking to
  • buy
  • sell
  • rent
  • let
  • buy
we would love to help.