The Limberlost, Welwyn, AL6 9TS

Sale Agreed
Guide price of £1,150,000
Bedrooms
5
Bathrooms
5
Receptions
4
Council Tax:
G
EPC:
C
Freehold

A substantial architect-designed detached home with south facing gardens, offering exceptional family living space in a highly sought-after location near Welwyn Village.

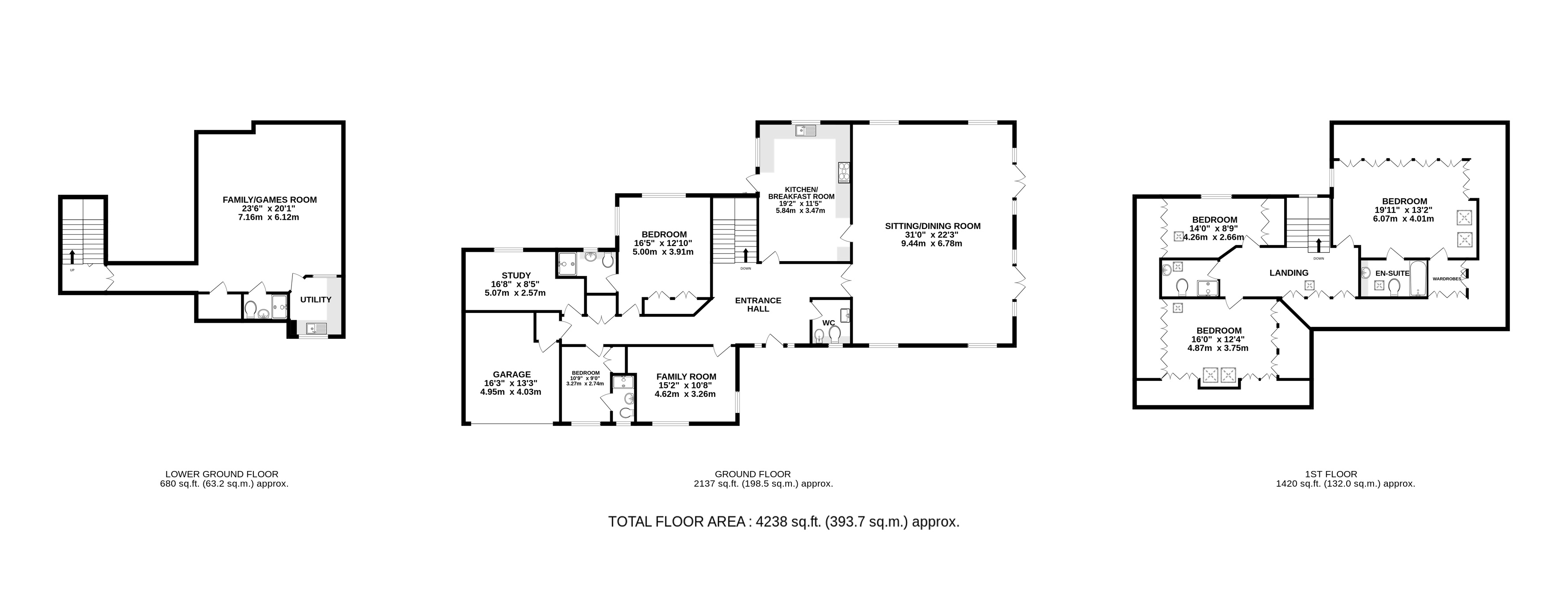
Built in 2007, this architect-designed detached residence offers beautifully arranged accommodation over three floors, providing generous and versatile family living.

The impressive ground floor features a large and welcoming open-plan reception hall, a fully fitted kitchen/breakfast room with direct garden access, a separate study perfect for those working from home, cloakroom and a comfortable family lounge. A superb almost 700sqft. sitting/dining room enjoys a bright southerly aspect with doors opening onto the garden, alongside two bedrooms both of which benefit from en-suite facilities.

The lower ground floor comprises a spacious games/family room, kitchen/utility room and shower room, offering excellent potential to create a self-contained annexe or tennagers den if required.

On the first floor, the principal suite features en-suite facilities and a substantial walk-in wardrobe, complemented by two further bedrooms and a shower room.

Externally, to the front, a block-paved driveway provides ample parking and leads to the integral garage.
The property sits within approximately half an acre of gardens, predominantly laid to lawn with mature flower beds and an expansive South facing terrace ideal for entertaining.

The Limberlost is a peaceful, private road off of Reynards Road on the edge of Welwyn. Welwyn Village amenities including Tesco Express, a doctors' surgery, a dentist, a range of independent shops, pubs and eateries, are all just a short stroll away. More extensive facilities, including secondary schooling and mainline rail services can be found in Welwyn Garden City, together with the Howard Shopping Centre and John Lewis department store.

Council Tax Payable: £3,952.12 (2025-2026)
Buyers Information:
In compliance with the UK's Anti Money Laundering (AML) regulations, we are required to confirm the identity of all prospective buyers at the point of an offer being accepted and use a third party, Identity Verification System to do so. There is a nominal charge of £48 (per person) including VAT for this service. For more information, please refer to the terms and conditions section of our website.

Whether you’re looking to
  • buy
  • sell
  • rent
  • let
  • buy
we would love to help.