Wheatlock Mead, Redbourn, St. Albans, AL3 7HS

Sale Agreed
Guide price of £825,000
Bedrooms
4
Bathrooms
2
Receptions
2
Council Tax:
F
EPC:
C
Freehold

An immaculate four bedroom extended semi detached home with wonderful garden, located close to the Village Common.

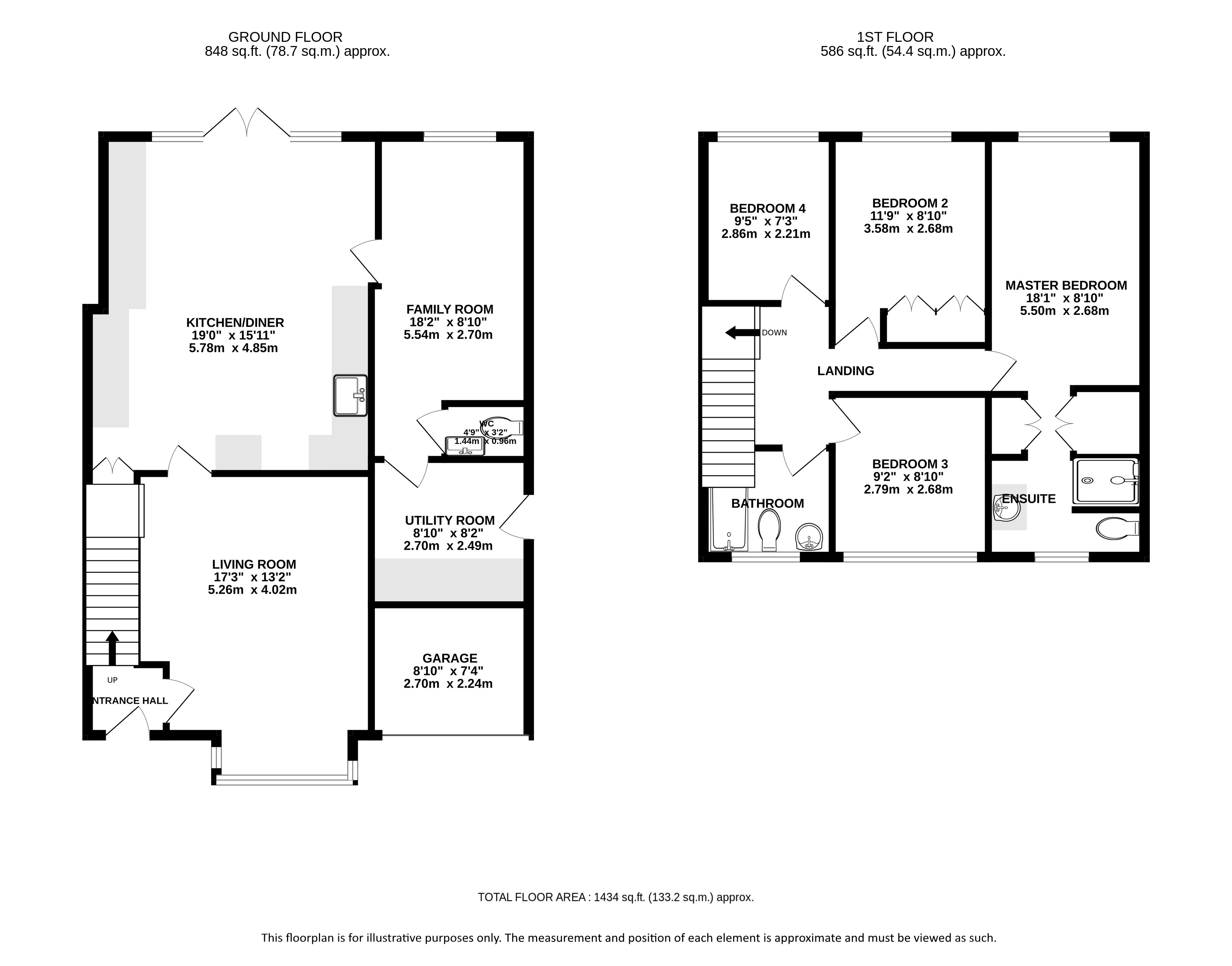
This wonderful family home has been previously extended and improved, offering spacious and beautifully presented accommodation over two levels.

An entrance hall leads into a large living room with bay window and fireplace with log burner. A stunning open plan kitchen/dining room sits to the rear of the property. The kitchen has been fitted with a stylish range of contemporary units, with central island and integrated appliances, and space for a dining table with bi-fold doors opening out to the rear garden. A further reception room is located just off the kitchen area, currently used as a playroom/family room. A downstairs cloakroom completes this level. The garage has been converted to provide a utility room at the rear and storage area at the front.

There are four bedrooms on the first floor including a principal bedroom with dressing area and a stylish en-suite shower room. The luxurious family bathroom has been fitted to a high standard and serves the remaining bedrooms.

Outside to the front a block paved driveway provides ample off-street parking. The rear garden has been attractively landscaped and is west facing measuring approx. 45ft in depth.

Located in Wheatlock Mead, a sought after cul de sac close to the village Common and a short walk to the High Street in Redbourn, a picturesque village in Hertfordshire. Conveniently located for the M1 J9 and M25 motorways and Luton Airport, with easy access to efficient rail links at Harpenden and St.Albans.

Council Tax Band F: £3,407.63 (2025/26)

Buyers Information:
In compliance with the UK's Anti Money Laundering (AML) regulations, we are required to confirm the identity of all prospective buyers at the point of an offer being accepted and use a third party, Identity Verification System to do so. There is a nominal charge of £48 (per person) including VAT for this service. For more information, please refer to the terms and conditions section of our website.

Whether you’re looking to
  • buy
  • sell
  • rent
  • let
  • buy
we would love to help.