Oakway, Studham, Dunstable, LU6 2PE

Guide price of £880,000
Bedrooms
4
Bathrooms
3
Receptions
2
Council Tax:
F
EPC:
D
Freehold

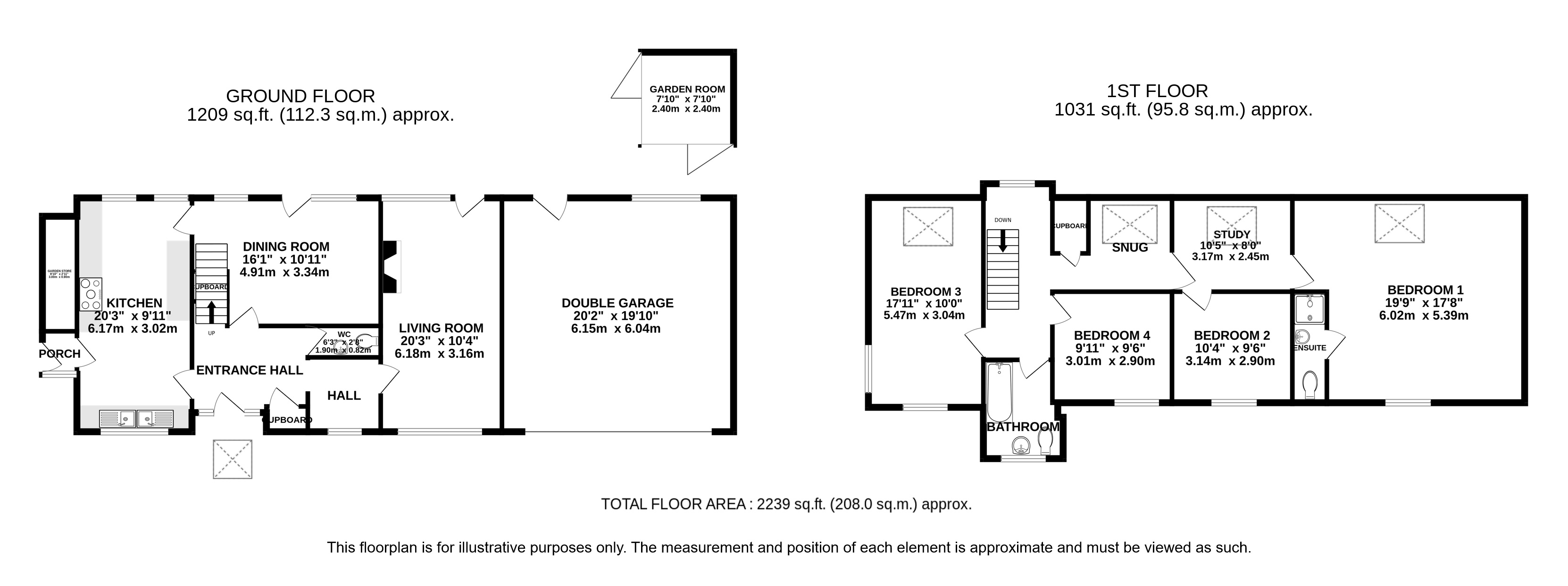
Sitting on a plot of approximately one-third of an acre, and located in the sought-after village of Studham, this well-presented property offers light and spacious accommodation.

The property has been extensively improved by the current owners to a very high standard, whilst the low-maintenance front and rear gardens offer complete privacy. This contemporary and flexible home has the potential for further conversion.

Upon entering the property the reception hall gives way to the living space which includes a dual-aspect living room with the CVO gas fire-bowl creating a striking focal point, a generous-sized dining room with direct access to the kitchen, a small cloakroom, and a convenient coat cupboard. The large, dual aspect kitchen is fitted with bespoke, solid oak units, Italian granite worktops and breakfast bar, and travertine stone flooring with electric underfloor heating. A small porch to the side of the kitchen leads out to the garden. Subject to planning permission, there is scope to knock through from the lounge into the integral garage to create a show-stopping open plan living and entertaining space.

Upstairs there are four double bedrooms, a study, and a cosy snug area which is used by the current owners as a quiet reading space. The generously proportioned dual-aspect principal bedroom benefits from an en-suite shower room. A separate, family bathroom with bath and shower serves the remaining bedrooms.

The landscaped rear garden is laid mainly to lawn, encircled by low-maintenance borders. A large, stone patio is complemented by a tranquil water feature and a bespoke, hand-built timber summerhouse with power and lighting, making this an ideal space for outdoor dining and entertaining. The lawned front garden also offers plenty of off-road parking on the wide, gravelled driveway which leads to an American-sized double garage, spacious enough for two vehicles as well as additional storage. The garage also has potential to be easily converted into a large family room/living area if required.

Oakway is a sought-after road in the small Holywell area of Studham village. Situated in an Area of Outstanding Natural Beauty, the location is surrounded by beautiful countryside, perfect for walkers and cyclists alike. There are two, very popular pubs in Studham village itself, as well as a third in Whipsnade - all of which are within walking distance from the property. Studham also boasts a thriving Sports & Social Club, a tennis club, and the much-loved Studham Lower School. Harpenden and Berkhamsted are conveniently located for shopping, excellent secondary schools, and direct rail links into London.

Council Tax Band F: £3,287.58 (2025/26)

Buyers Information:
In compliance with the UK's Anti Money Laundering (AML) regulations, we are required to confirm the identity of all prospective buyers at the point of an offer being accepted and use a third party, Identity Verification System to do so. There is a nominal charge of £48 (per person) including VAT for this service. For more information, please refer to the terms and conditions section of our website.

Whether you’re looking to
  • buy
  • sell
  • rent
  • let
  • buy
we would love to help.