Magpie Meadows, Caddington, Luton, LU1 4FU

Guide price of £570,000
Bedrooms
3
Bathrooms
3
Receptions
2
Council Tax:
F
EPC:
B
Freehold

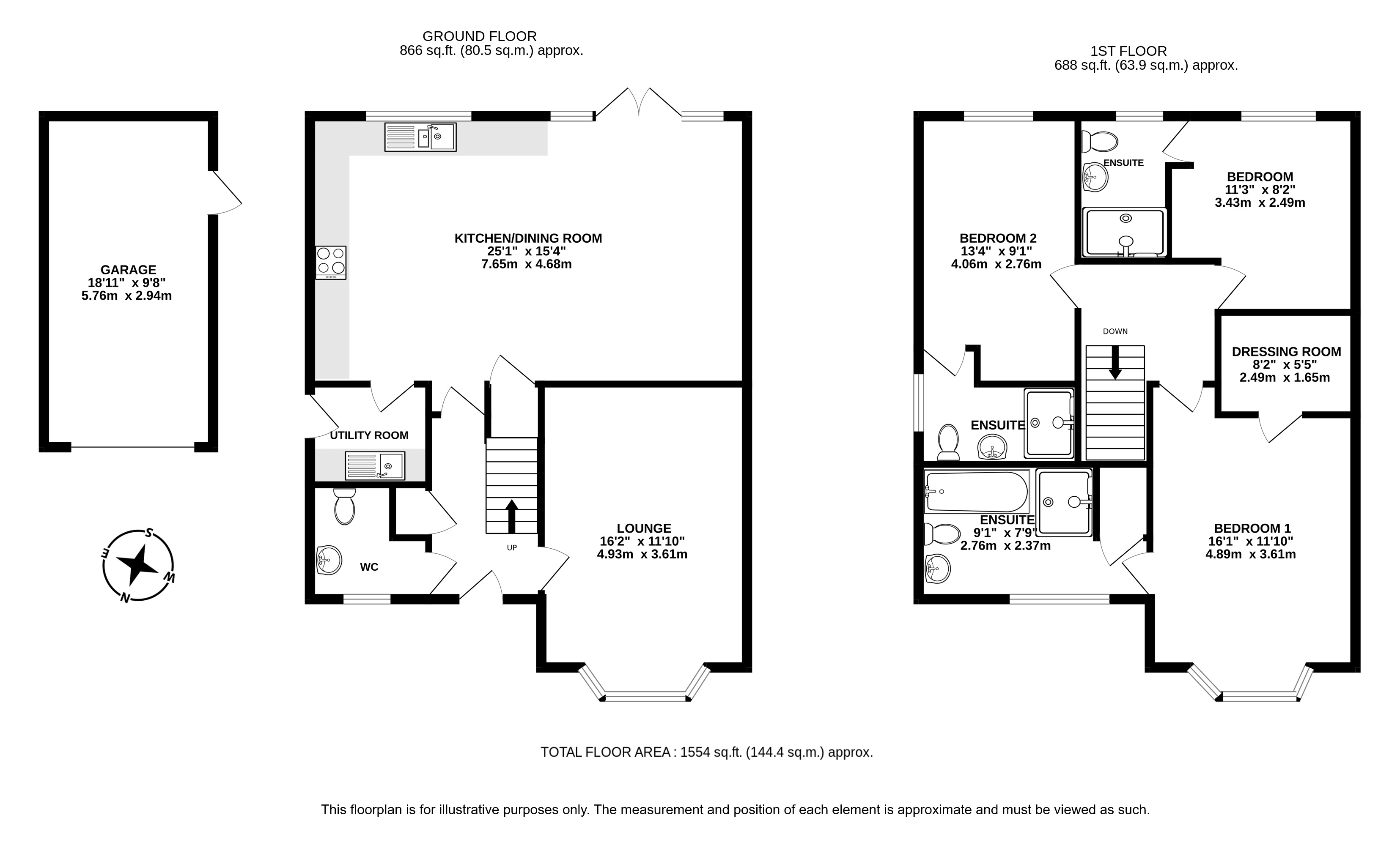
Attractive three bedroom detached executive home built in 2020 and still under NHBC guarantee, located in the desirable Caddington Woods development.

This spacious family home was built by Redrow homes in 2020 and is part of the Heritage Collection.

The property offers generous accommodation, the ground floor includes an attractive entrance hall, formal sitting room and large kitchen/family room with stylish fitted kitchen and space for dining and relaxing with French doors opening out to the rear garden. A separate utility room sits just off. A cloakroom off the hallway completes this level.

Upstairs there are three double bedrooms, all of which have luxurious en-suite facilities and the principal bedroom offers a walk-in wardrobe.

Outside to one side of the property is a driveway, providing off-street parking, which leads to the garage. To the rear there is a private and secluded garden that has been landscaped with patio seating area, lawn and raised flower beds. The property also benefits from a stylish home office that is equipped with underfloor heating and air conditioning.

Magpie Meadows is located in the highly desirable Caddington Woods development. There are both local and more extensive shopping facilities and good schooling a short drive away. There is the added benefit of a free bus service into Luton town and train station. Harpenden is approximately 7 miles away and offers wider amenities and a fast rail service. Luton Parkway station is also within easy reach as is London Luton Airport and the M1 motorway.

Council Tax Band F: £3,371.69 (2025/26)
Service Charge: £0.00 per annum

Buyers Information:
In compliance with the UK's Anti Money Laundering (AML) regulations, we are required to confirm the identity of all prospective buyers at the point of an offer being accepted and use a third party, Identity Verification System to do so. There is a nominal charge of £48 (per person) including VAT for this service. For more information, please refer to the terms and conditions section of our website.

Whether you’re looking to
  • buy
  • sell
  • rent
  • let
  • buy
we would love to help.