Lybury Lane, Redbourn, St. Albans, AL3 7JQ

Guide price of £585,000
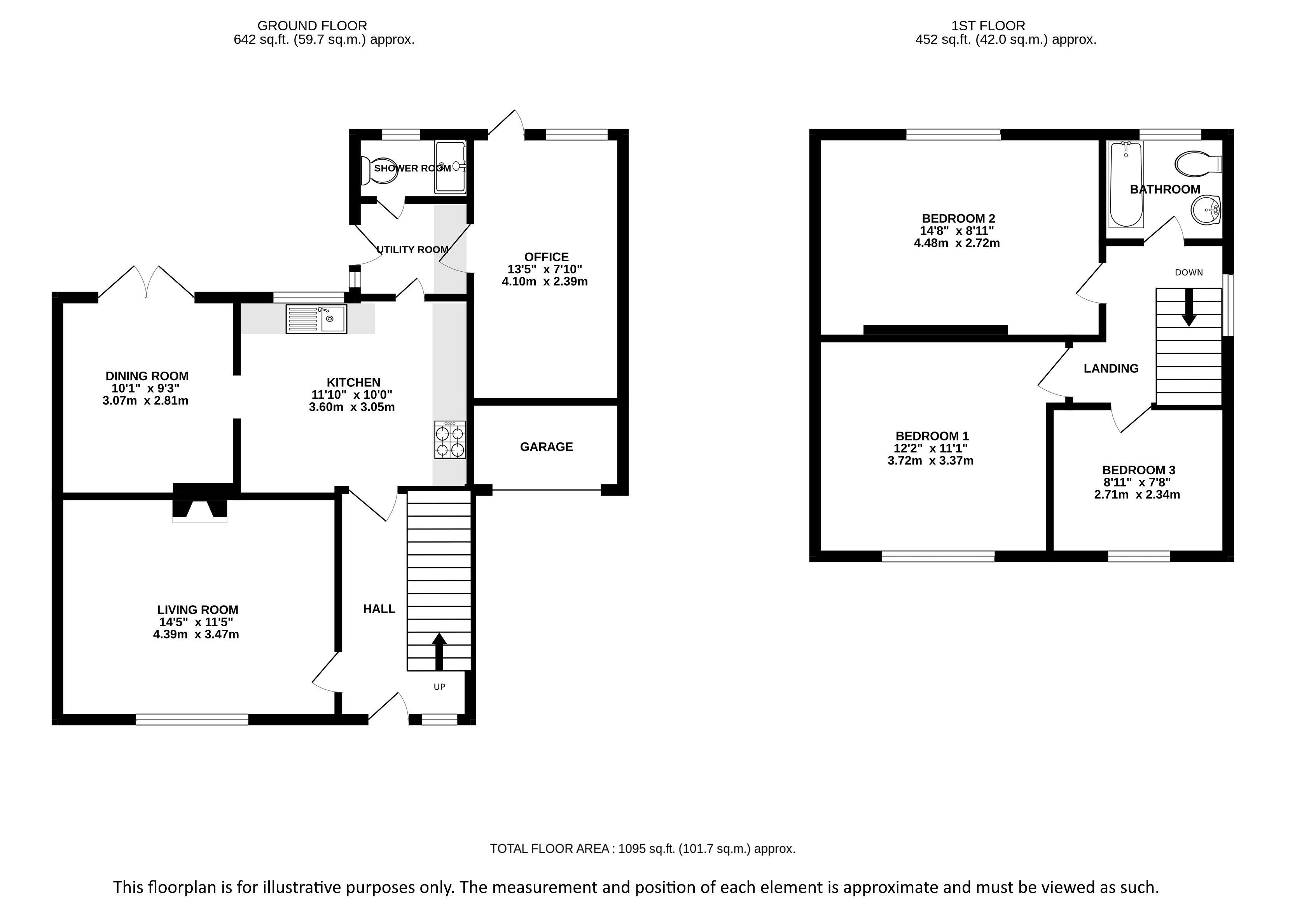
Bedrooms
3
Bathrooms
2
Receptions
2
Council Tax:
D £2,359.13 (2025/26)
EPC:
D
Freehold

Excellent three bedroom semi-detached home, located close to Redbourn Common and amenities in this popular village.

This spacious three bedroom home offers well presented accommodation over two levels with the benefit of off-street parking for three cars and a good size garden to the rear.

The generous ground floor accommodation includes an entrance hall, large living room with feature fireplace a stylish fitted kitchen opening to a dining room with French doors leading out to the rear garden. A separate utility room sits just off the kitchen and gives access to both a shower room and an office/family room (converted from the former garage).

Upstairs there are three bedrooms, two doubles and a single, served by a modern family bathroom.

Outside to the front there is off-street parking for several cars and a storage area remains in the former garage.

Located in the popular village of Redbourn the property is well positioned close to the common and within easy reach of local amenities. The village has a well regarded primary school. More extensive shopping and leisure facilities are a short drive away in both Harpenden and the historic city of St Albans. The village is favoured with excellent transport links with Junction 9 of the M1 close by and fast rail services available at both Harpenden and St Albans. London Luton Airport is also nearby.

Buyers Information:
In compliance with the UK's Anti Money Laundering (AML) regulations, we are required to confirm the identity of all prospective buyers at the point of an offer being accepted and use a third party, Identity Verification System to do so. There is a nominal charge of £48 (per person) including VAT for this service. For more information, please refer to the terms and conditions section of our website.

Whether you’re looking to
  • buy
  • sell
  • rent
  • let
  • buy
we would love to help.