Mancroft Road, Aley Green, Luton, LU1 4DR

Guide price of £400,000
Bedrooms
2
Bathrooms
1
Receptions
2
Council Tax:
C
EPC:
D
Freehold

Spacious two bedroom village home with garage and large garden, offering excellent potential to extend (STPP).

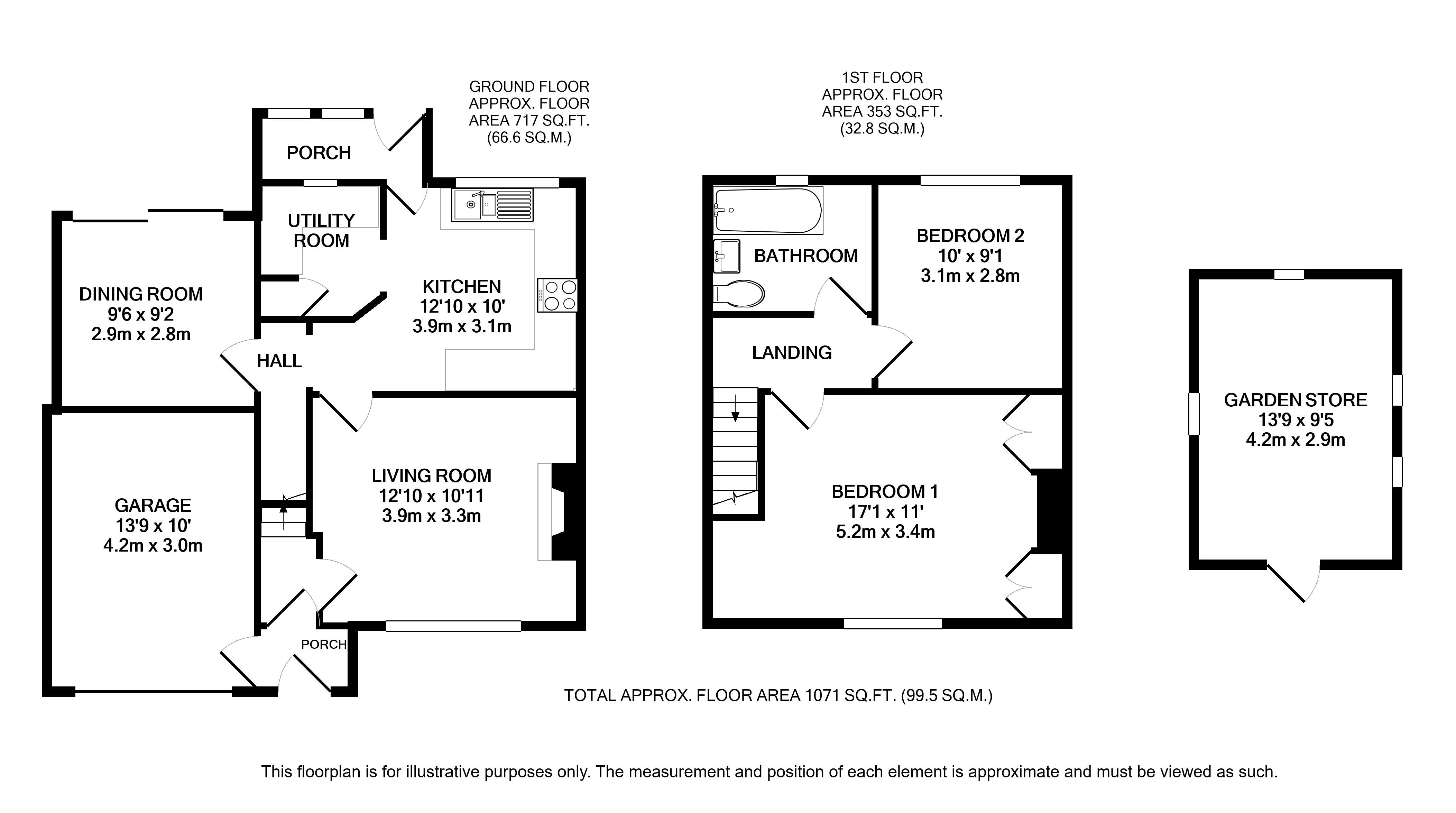
This excellent semi-detached home is well located adjacent to open countryside but close to amenities in nearby Caddington village. The property offers excellent potential to extend subject to the necessary planning consents.

The spacious ground floor accommodation includes two reception rooms, a living room with feature fireplace at the front and a dining room with sliding patio doors leading out to the rear garden. The kitchen is fitted with a good range of units and also has access to the rear garden via a porch. A separate utility room completes this level.

Upstairs there are two double bedrooms served by a stylish bathroom, fitted with a contemporary free standing bath.

Outside to the front a generous driveway provides off-street parking and leads to a single garage. To the rear the garden measures approximately 200ft in length and is mainly laid to lawn with lovely views over open countryside. There is a large timber outbuilding which provides extra storage.

Situated in Aley Green on the Bedfordshire/Hertfordshire border this home enjoys a semi rural setting yet is within close proximity to the larger towns of Harpenden and St Albans which offer wider amenities and fast trains into London St Pancras. The village of Caddington is also close by catering for everyday needs.

Buyers Information:
In compliance with the UK's Anti Money Laundering (AML) regulations, we are required to confirm the identity of all prospective buyers at the point of an offer being accepted and use a third party, Identity Verification System to do so. There is a nominal charge of £48 (per person) including VAT for this service. For more information, please refer to the terms and conditions section of our website.

Whether you’re looking to
  • buy
  • sell
  • rent
  • let
  • buy
we would love to help.