Spacious and beautifully presented five bedroom detached family home located in a sought after road in Studham village.
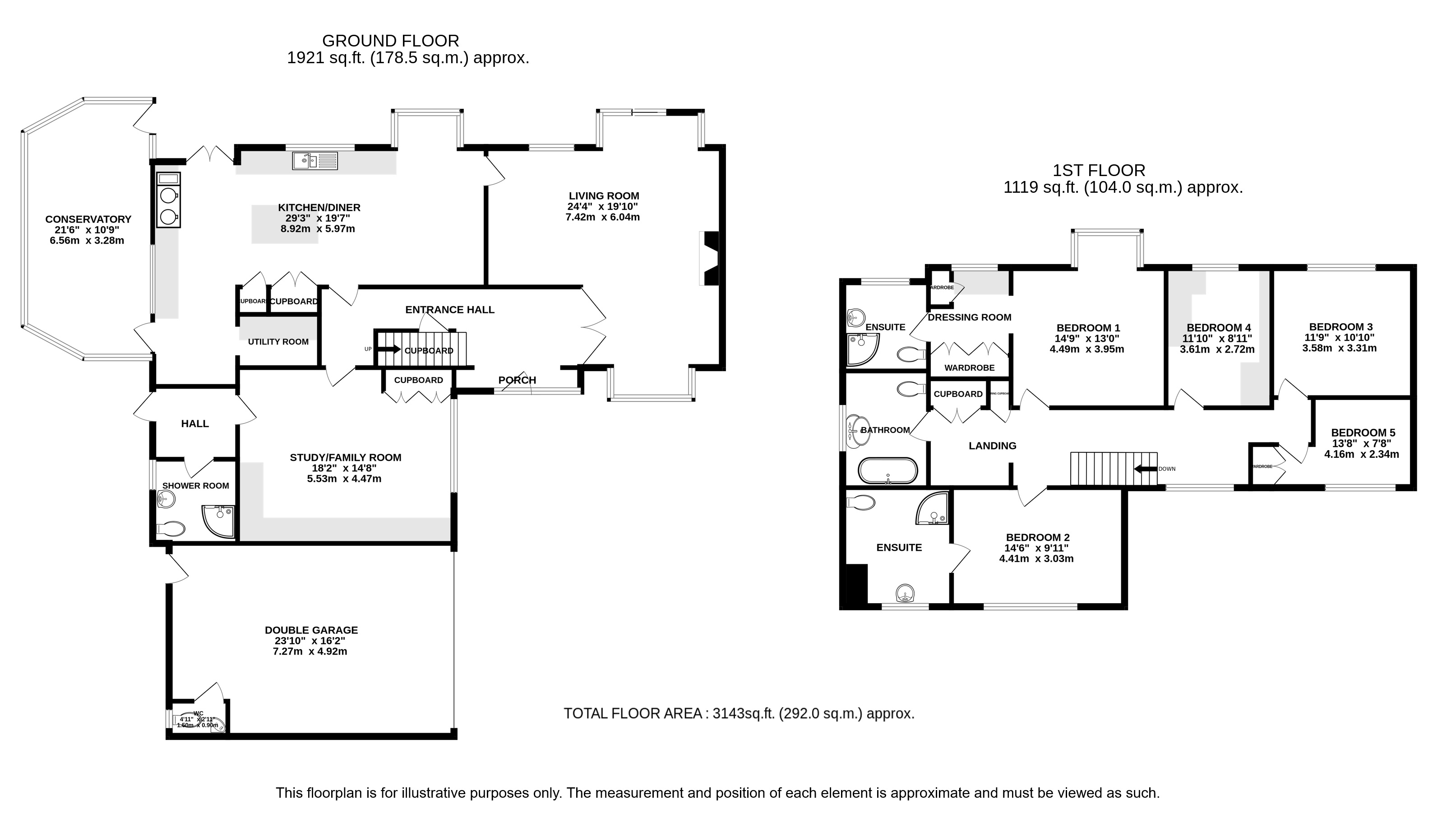
This exquisite family home has been refurbished to a high standard and sits on a generous private plot, measuring 0.45 of an acre. The house is approached via a sweeping paved driveway which provides ample parking and leads to a double garage with electric door. The beautifully presented living space includes a superb bay fronted living room which extends the width of the property and benefits from a multifuel wood burner and doors leading out to the rear garden. The well-equipped kitchen is a chefs dream and has been refitted with an excellent range of units with central-island, integrated appliances and a gas fired Aga and opens into a stunning conservatory. Adjacent to the kitchen, there is a utility room which is complemented by a boot room and shower room. A versatile family room is currently used as a home office and offers options for play, work or relaxation. A further cloakroom is situated in the double garage. There is potential to convert the garage to a studio (STPP).
Upstairs has been remodelled to create a fabulous principal suite with bay window overlooking the garden, walk-through dressing room and en-suite shower room. There are four further good size bedrooms. Bedroom two benefits from a stylish en-suite and a further luxurious bathroom serves the remaining bedrooms.
Outside the extensive gardens are a particular feature and extend to approximately 0.45 of an acre, mainly laid to lawn with mature shrubs and trees. A large heated swimming pool adds a touch of luxury and a large sun terrace provides a wonderful outdoor space to dine and relax with friends and family..
Located in the desirable Holywell area in Studham, a designated area of outstanding natural beauty. The village has an excellent primary school and is close to the renowned private Beechwood Park School. School bus services are also available from the village. Studham is well placed for excellent transport links, while remaining a rural location convenient for the towns of Harpenden and Berkhamsted, which have fast rail links into London and the City.
Upstairs has been remodelled to create a fabulous principal suite with bay window overlooking the garden, walk-through dressing room and en-suite shower room. There are four further good size bedrooms. Bedroom two benefits from a stylish en-suite and a further luxurious bathroom serves the remaining bedrooms.
Outside the extensive gardens are a particular feature and extend to approximately 0.45 of an acre, mainly laid to lawn with mature shrubs and trees. A large heated swimming pool adds a touch of luxury and a large sun terrace provides a wonderful outdoor space to dine and relax with friends and family..
Located in the desirable Holywell area in Studham, a designated area of outstanding natural beauty. The village has an excellent primary school and is close to the renowned private Beechwood Park School. School bus services are also available from the village. Studham is well placed for excellent transport links, while remaining a rural location convenient for the towns of Harpenden and Berkhamsted, which have fast rail links into London and the City.
Council Tax Band G: £3,793.36 (2025/26)
Buyers Information:
In compliance with the UK's Anti Money Laundering (AML) regulations, we are required to confirm the identity of all prospective buyers at the point of an offer being accepted and use a third party, Identity Verification System to do so. There is a nominal charge of £48 (per person) including VAT for this service. For more information, please refer to the terms and conditions section of our website.