Cottonmill Lane, St. Albans, Hertfordshire, AL1 2EX

Let
£2,800 PCM
Bedrooms
4
Bathrooms
2
Receptions
2
Council Tax:
D
EPC:
C

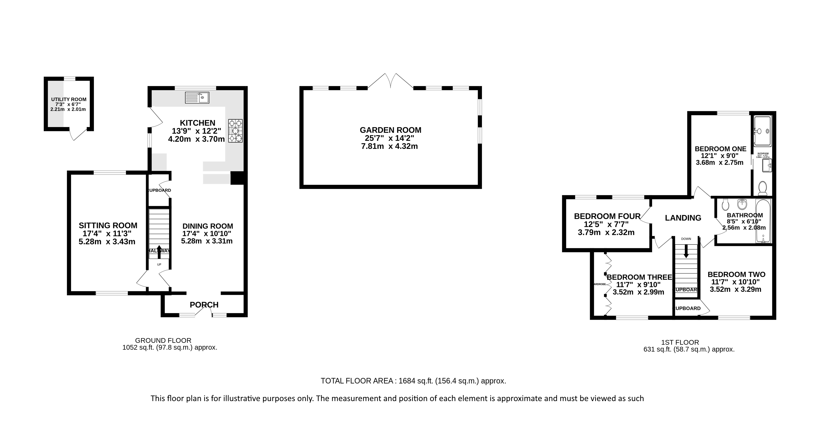
An exceptional four bedroom, two bathroom property, having been refurbished to a high standard and featuring a superb 28ft garden room with power and light.

This impressive four double bedroom, two bathroom family home has been extended and refurbished to provide an exceptional family home.

The ground floor features a comfortable dual- aspect sitting room and a stunning fully-fitted high quality kitchen, which includes integrated appliances, a range oven and is open-plan to the spacious dining room.

The first floor features the principal bedroom with en-suite shower room, three further good size double bedrooms (two with fitted wardrobes) and a smart white bathroom suite with shower over.

Externally there are two off street parking spaces to the front, and a large rear garden featuring a large paved patio area, brick-built utility room with washing machine and tumble dryer, and to the rear of the garden, a fantastic 28 ft garden room, with power and light (currently used as a home gym and office).

Council tax Band D: £2,155.11 for 2024/25
Holding deposit: £646.15
Deposit: £3,230.75

Whether you’re looking to we would love to help.