Curtis Road, Leverstock Green, Hemel Hempstead, HP3 8LE

Let
£1,525 PCM
Bedrooms
2
Bathrooms
1
Receptions
1
EPC:
E

A newly refurbished end-of-terrace family home with a sunny West facing garden and off-street parking.

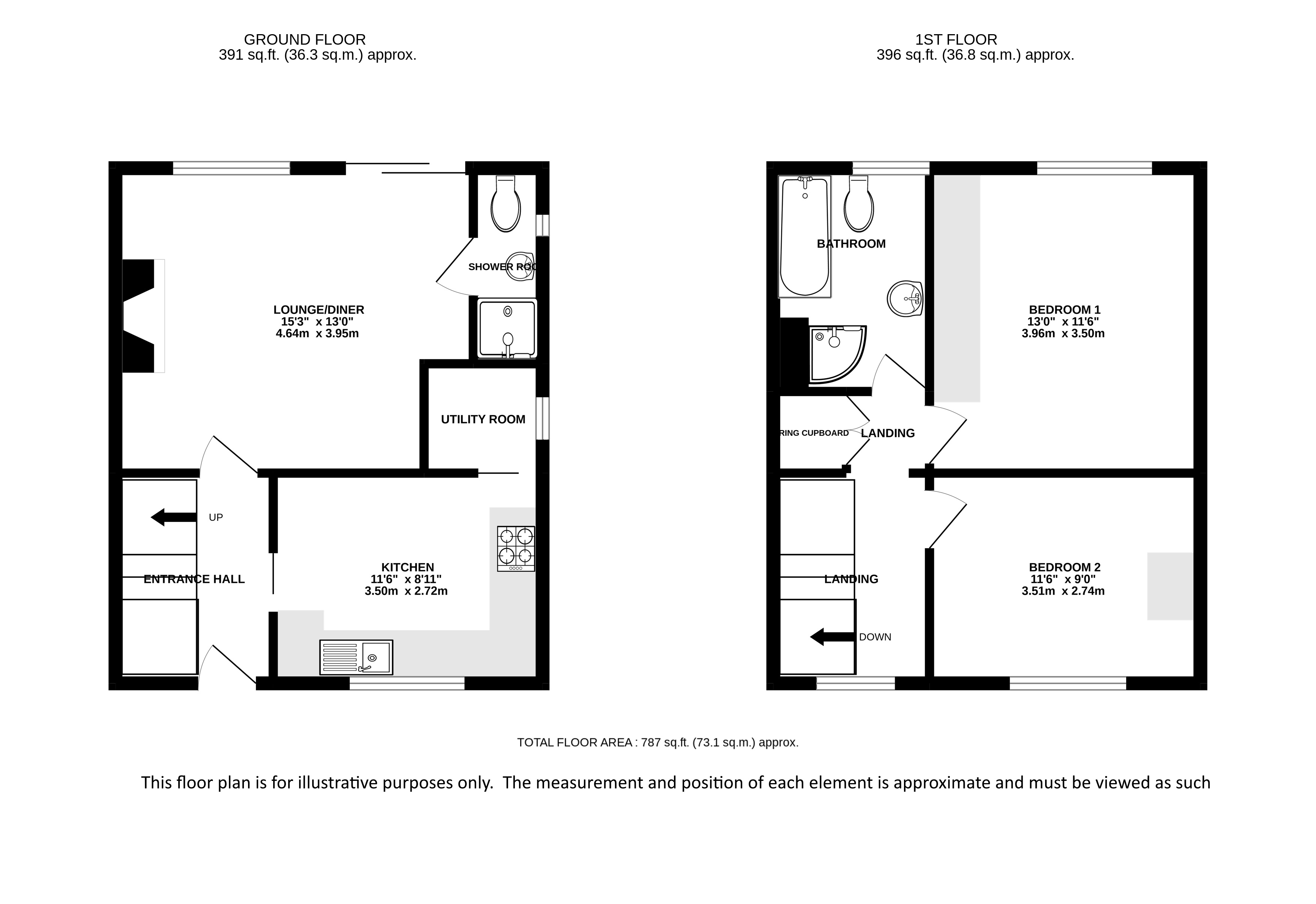
Thoughtfully refurbished throughout, this wonderful family home offers light and bright accommodation and is short stroll to Leverstock Green’s local shops and historic village centre.

Curtis Road is a friendly and peaceful cul-de-sac. The property itself is set back from the road, with a front garden laid to lawn and off-street parking to the side of the house.

The newly installed contemporary kitchen with useful pantry and utility room has an array of wall and base units, electric oven, hob, washer/drier, dish washer and fridge/freezer.

The living room has wooden flooring and views out to the patio and a garden accessed through sliding doors. A stylish WC and wet room with shower is just off the living room.

The first floor comprises two double bedrooms and a family bathroom.

Outside is a gated driveway with a large side plot and large rear garden measuring in excess of 100ft, that backs onto a playing field behind the local shops


Additional charges may apply

Whether you’re looking to
  • buy
  • sell
  • rent
  • let
  • buy
we would love to help.