St. Lukes Place, Wellington Road, St. Albans, Hertfordshire, AL1 5NH

Let
£1,800 PCM
Bedrooms
2
Bathrooms
1
Receptions
2
EPC:
A

A stunning home flooded with natural light located only one mile from St Albans City Station and benefitting from a South facing Garden and off street parking.

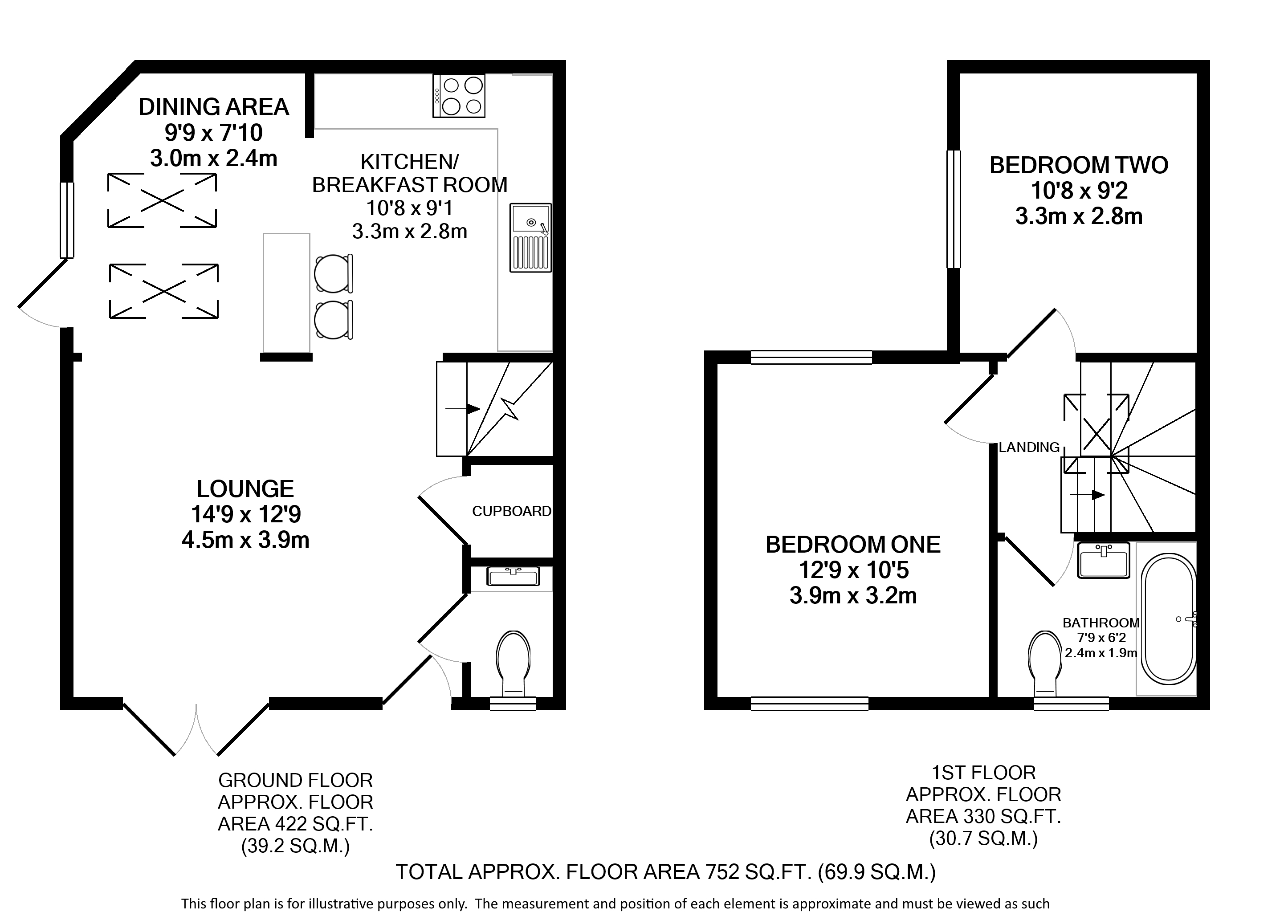
This beautiful property has been meticulously and thoughtfully refurbished. The front door leads into the impressive living room with an open view across the ground floor to the dining area and kitchen. The room is flooded with natural light streaming through the Velux windows from the elevated ceiling above the dining area. There is direct access out to the decked area of the South facing garden. A perfect sun trap for outdoor dining and relaxing sunny afternoons. The kitchen is nestled in the corner of the house with a plethora of cupboard storage and fitted appliances including a dish washer, fridge freezer, oven and hob. Dividing the kitchen and dining area is a smart breakfast bar with wooden worktop and two stools, perfectly located for coffee mornings, evening entertaining or a place to work from home. The striking dining area with elevated ceilings is dramatically lit from the two large overhead Velux windows. There is also a smart downstairs cloakroom with WC. The staircase to the first floor has a large Velux window ensuring lots of natural light pours down from the top of the house down to the ground floor. The first floor comprises two double bedrooms, one with double aspect windows and a view over the garden and a stylish, contemporary bathroom with bath with shower-over. To the front of the house is a driveway with off street parking for one car.

Whether you’re looking to we would love to help.