Beningfield Drive, London Colney, St. Albans, AL2 1UX

£3,500 PCM
Bedrooms
5
Bathrooms
4
Receptions
2
Council Tax:
G
EPC:
C

An immaculately presented five double bedroom, four bathroom residence of generous proportions, located in the sought after award winning development of Napsbury Park.

The property is positioned on this highly regarded development and is particularly well suited for families with the area having an abundance of open spaces. Presented in first-class order throughout, the owners have paid particular attention to maintaining the home to a very high standard.

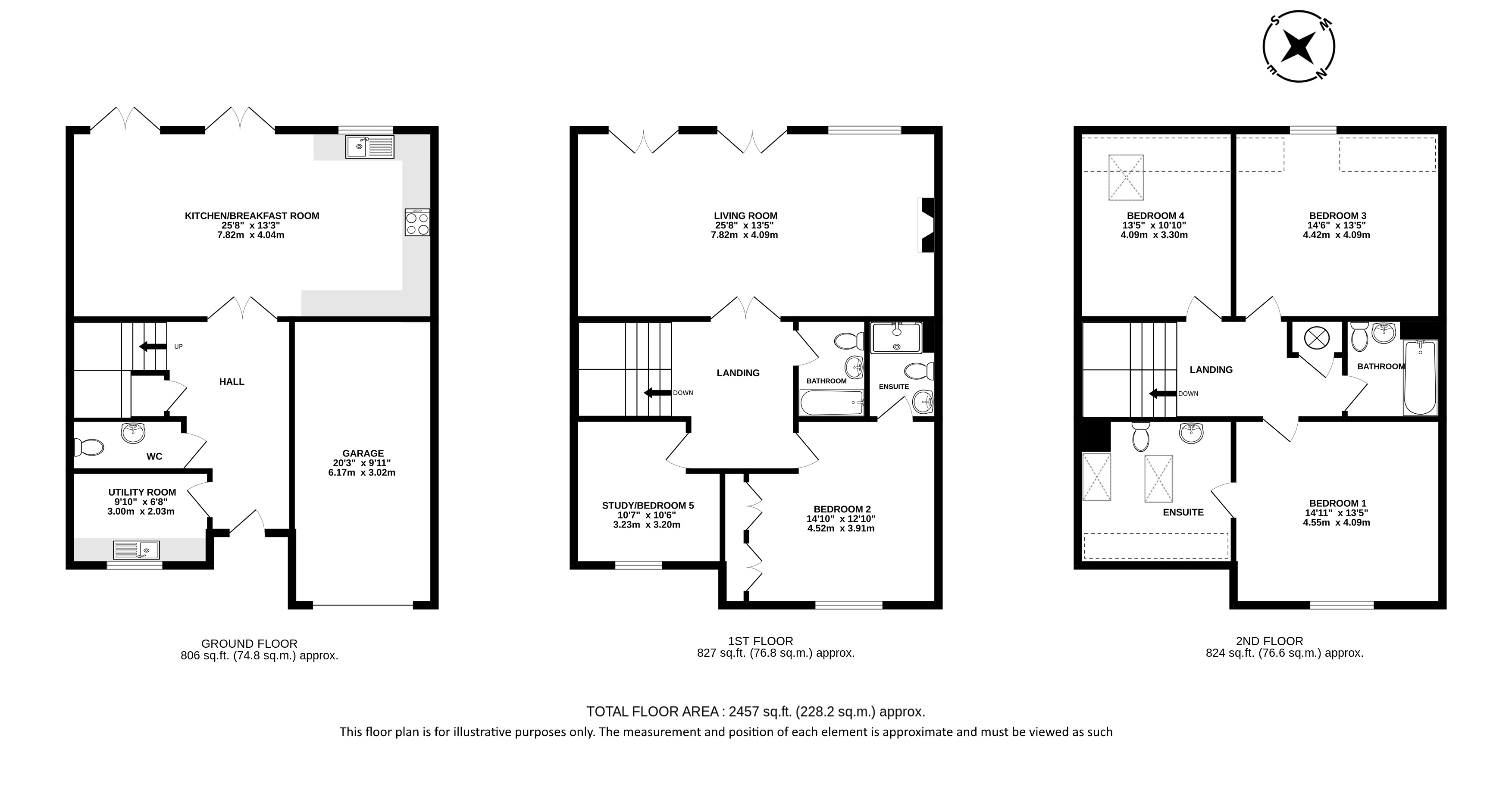
Offering extremely well thought out accommodation, the property immediately feels bright and welcoming. The generous hallway sets the tone for what is a large family home offering a stunning kitchen/family room to the rear with two double doors leading onto the landscaped gardens, an oak kitchen complemented by granite work surfaces, integrated appliances with separate utility room and ground floor WC,

The stairs lead to impressive first and second floor landings and what is immediately noticeable is the large windows and ceiling height, both of which add to this property’s charm and splendour. In particular the stunning 25ft sitting room with a feature fireplace and two sets of French doors which flood the room with natural light from their Juliet balconies. In addition, the first floor offers a large double bedroom benefitting from an en-suite shower room, a further double bedroom/study and a family bathroom.

On the second floor is the principal bedroom with a grand en-suite bathroom, two further bedrooms, both of which are double in size and serviced by a further family bathroom.

Outside and to the rear, the garden has been recently landscaped with a sweeping decked area perfect for alfresco dining and to enjoy the South-West facing sunshine. To the front, the property has a garage plus off-street parking for two cars and overlooks a formal garden that offers a stunning centrepiece to the development.

Situated on award winning Napsbury Park, a 62 acre private estate on the outskirts St Albans, there are Motorway links such as the M1, M25, A1, A414 AND the A41 within easy reach, as are the mainline stations at St Albans and Radlett. Popular with families, there is a children's playground, cricket pitch with pavilion, tennis courts and football pitches on the development
Napsbury Park is surrounded by rural views and the parkland setting was originally home to the Napsbury Hospital designed by the renowned Victorian architect Rowland Plumbe, with informal gardens landscaped by William Goldring. Much of the original buildings and gardens still exist offering a mix of neo - Jacobean and Arts and crafts embellishments underpinning the classical style.

Council Tax Band G: £3,924.80 (2025/26)

Council Tax Band:
Council Tax Payable: £3,924.8
Holding Deposit: £807.69
Total Deposit: £4,038.45

Whether you’re looking to
  • buy
  • sell
  • rent
  • let
  • buy
we would love to help.