Orchard Drive, St. Albans, AL2 2QH

Let Agreed
£2,500 PCM
Bedrooms
3
Bathrooms
1
Receptions
1
Council Tax:
E
EPC:
C

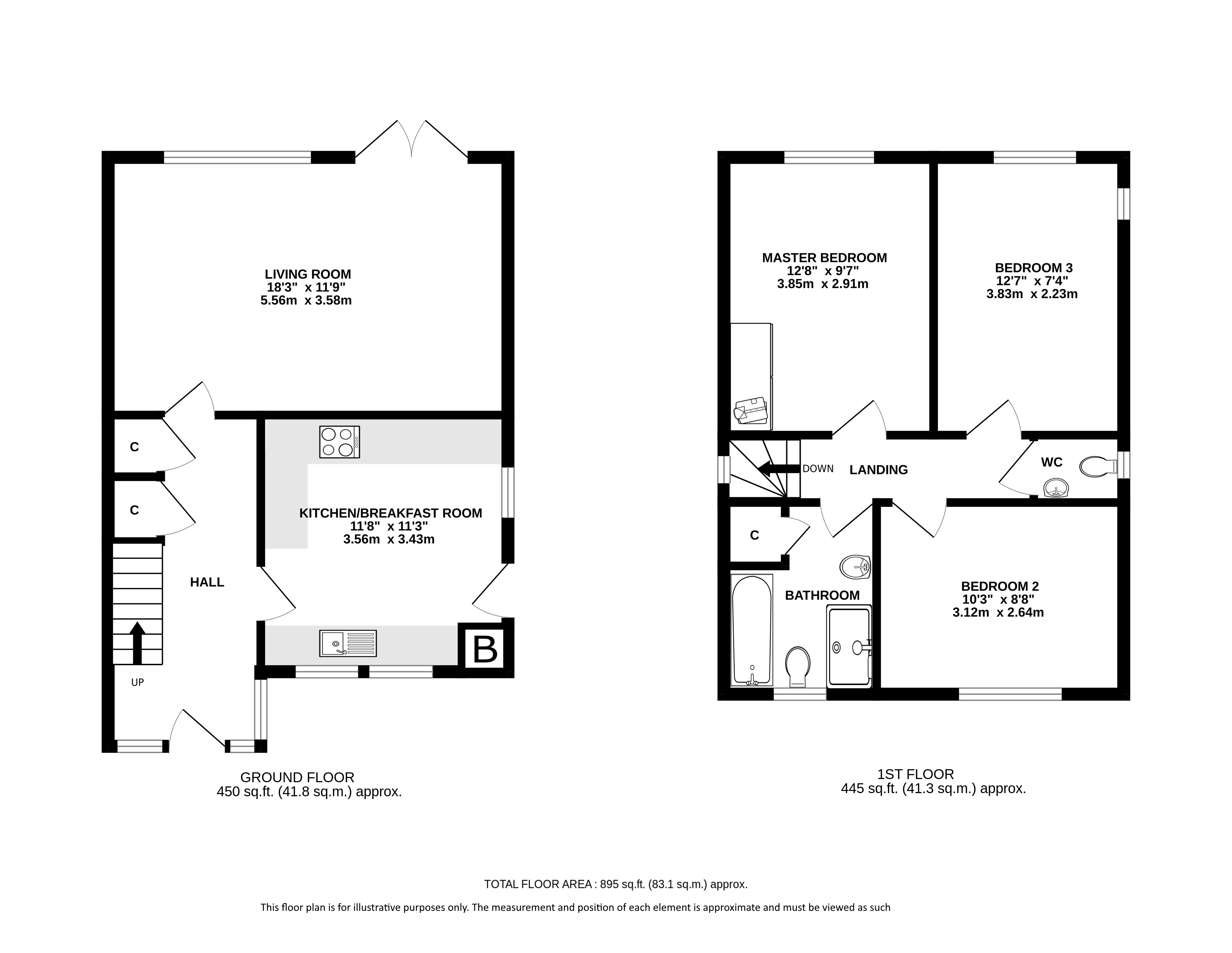
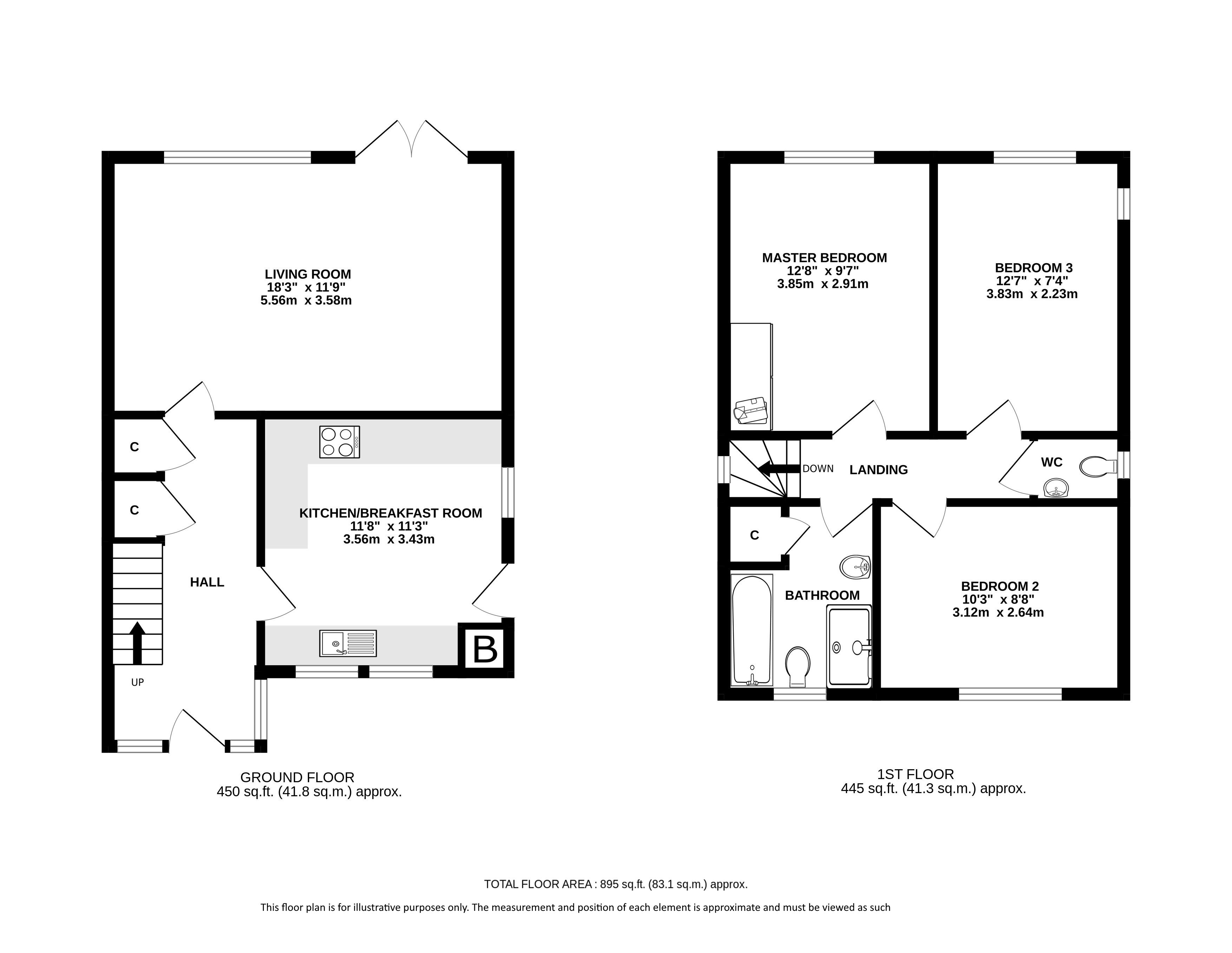
A recently upgraded 3 double bedroom semi-detached property, offering bright, spacious rooms all decorated to a very good standard.

The property is entered via a spacious entrance porch and hall, with wood flooring and useful storage cupboards. Doors lead to the kitchen and generously proportioned reception room which also has wood flooring and a large picture window and French doors which overlook the rear garden.
The dual aspect refitted Kitchen is an excellent size, with ample wall and base units, work top surfaces, integrated appliances and a door leading to the side passage
The first floor features three good sized double bedrooms, the master with fitted wardrobes, a large 4 piece family bathroom with a bath tub and separate shower cubicle, and a further cloakroom with WC and wash hand basin
The property has a large secluded rear garden with patio area and a detached garage, ideal for storage.

Orchard Drive is located on the south side of St Albans in the popular Park Street area, perfectly positioned for both convenience and connectivity. Located just a short walk from Park Street and How Wood Stations, providing direct links to St Albans and Watford via the Abbey Flyer line. For a faster commute into central London, both St Albans City and Radlett mainline stations are a short drive away, offering regular services into London St Pancras and beyond. The home also enjoys excellent access to the M1, M25, A41, A414 and A1(M), making travel across the region smooth and efficient.

Council Tax Band E: £2,865.41 (2025/26)

Council Tax Band: E
Council Tax Payable: £2,865.41
Holding Deposit: £576.92
Total Deposit: £2,884.61

Whether you’re looking to
  • buy
  • sell
  • rent
  • let
  • buy
we would love to help.