Ashtons are delighted to present this exceptional four-bedroom detached residence, perfectly positioned on the prestigious Fishpool Street.
One of the most sought-after addresses in the heart of St Albans offering picturesque views over the beautiful Verulamium Park, this distinguished home effortlessly blends period charm with modern living. TEST
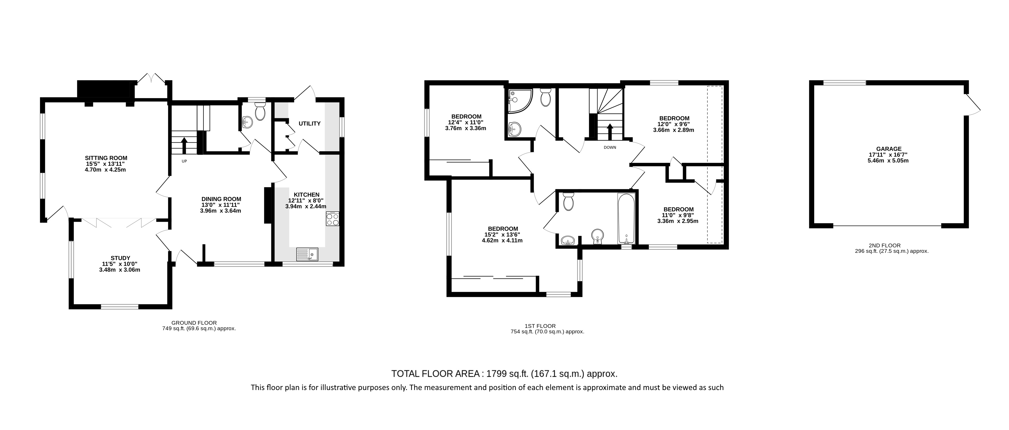
Brimming with character throughout, the property features three elegant reception rooms, each exuding warmth and style. The inviting living room showcases an impressive inglenook fireplace and exposed beams, creating a wonderfully cosy atmosphere, while the separate dining room provides the ideal setting for entertaining. The contemporary kitchen, complete with sleek granite worksurfaces and ample storage, flows seamlessly into a practical utility room. A well-appointed office and a convenient downstairs WC complete the ground floor.
Upstairs, there are four generous double bedrooms, all with fitted wardrobes, offering plenty of space for family and guests alike. The principal bedroom benefits from access to a stylish Jack and Jill bathroom, complemented by an additional modern shower room.
Outside, the property is enclosed within charming walled gardens, providing both privacy and tranquillity. A separate driveway leads to a spacious double garage, ensuring secure parking and additional storage.
Early viewing is highly recommended to appreciate all that this beautiful Fishpool Street residence has to offer.
Fishpool Street is located in the Abbey Conservation Area and is considered to be one of St Albans’ most desirable addresses with attractive housing stock showcasing a range of architectural styles. Its convenient location gives easy access to the extensive amenities in the city centre and is a short walk from St Michaels Village and Verulamium Park. A number of well regarded schools are close by including St Albans Boys School, and St Albans City Station is just over a mile away, where there are fast rail links into central London.
Brimming with character throughout, the property features three elegant reception rooms, each exuding warmth and style. The inviting living room showcases an impressive inglenook fireplace and exposed beams, creating a wonderfully cosy atmosphere, while the separate dining room provides the ideal setting for entertaining. The contemporary kitchen, complete with sleek granite worksurfaces and ample storage, flows seamlessly into a practical utility room. A well-appointed office and a convenient downstairs WC complete the ground floor.
Upstairs, there are four generous double bedrooms, all with fitted wardrobes, offering plenty of space for family and guests alike. The principal bedroom benefits from access to a stylish Jack and Jill bathroom, complemented by an additional modern shower room.
Outside, the property is enclosed within charming walled gardens, providing both privacy and tranquillity. A separate driveway leads to a spacious double garage, ensuring secure parking and additional storage.
Early viewing is highly recommended to appreciate all that this beautiful Fishpool Street residence has to offer.
Fishpool Street is located in the Abbey Conservation Area and is considered to be one of St Albans’ most desirable addresses with attractive housing stock showcasing a range of architectural styles. Its convenient location gives easy access to the extensive amenities in the city centre and is a short walk from St Michaels Village and Verulamium Park. A number of well regarded schools are close by including St Albans Boys School, and St Albans City Station is just over a mile away, where there are fast rail links into central London.
Buyers Information:
In compliance with the UK's Anti Money Laundering (AML) regulations, we are required to confirm the identity of all prospective buyers at the point of an offer being accepted and use a third party, Identity Verification System to do so. There is a nominal charge of £48 (per person) including VAT for this service. For more information, please refer to the terms and conditions section of our website.