Beningfield Drive, St. Albans, Hertfordshire, AL2 1UJ

Guide price of £1,200,000
Bedrooms
4
Bathrooms
3
Receptions
2
Council Tax:
G
EPC:
B
Freehold

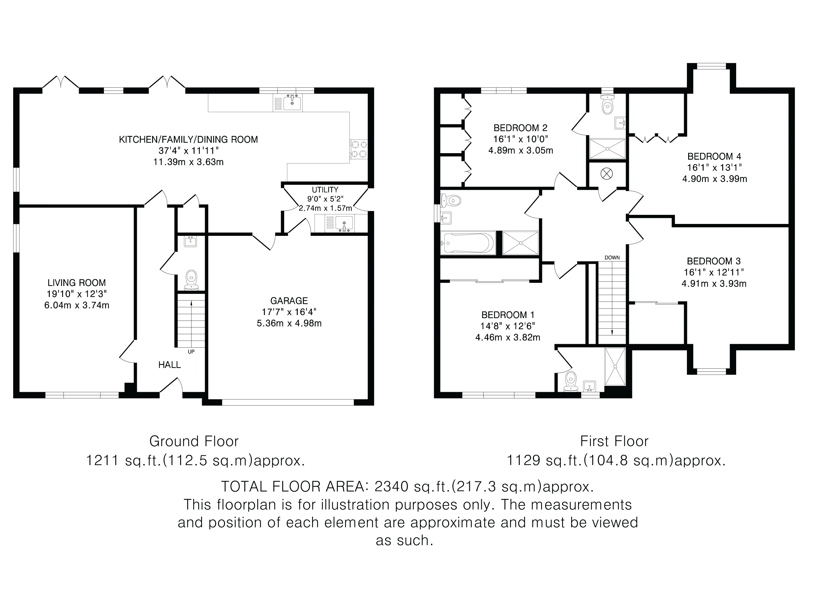
An impressive four bedroom detached home in the exclusive Napsbury Park development. Offering over 2300 square feet of accommodation and with a lovely west facing garden.

This attractive red brick home is set back from the road and has an immaculately maintained frontage with established hedges at the boundaries and a low maintenance artificial lawn. There is a wide bloc-driveway providing parking for two vehicles and a double garage.
Internally, the bright entrance hall is generously proportioned and gives access to an impressive dual aspect living room, beautifully finished, with a feature fireplace, before leading into a superb open-plan room to the rear which overlooks the garden. The kitchen is positioned to one end, designed to provide excellent storage and with several integrated appliances, and the room offers ample space for both living and dining furniture. There is also a separate utility room close by with direct access to the side of the house.
Stairs lead to the first floor where the high quality of finish continues and there are four excellent double bedrooms reached from a large landing, all of which have fitted storage. Two of the bedrooms have en-suite shower rooms and there is a further fully tiled family bathroom with a window to the side of the house.
The rear garden faces west and its orientation affords a good level of privacy. It has been landscaped to create a large paved seating area close to the property and has a large lawn of artificial turfy with established shrubs to the boundaries. A path to the side of the house gives direct access to the front.

Beningfield Drive is positioned on the edge of the highly regarded Napsbury Park development and close to open countryside. The surrounding motorway networks are comfortably accessible and the shopping and leisure facilities of both St Albans and Radlett, each with mainline stations serving central London, are also within convenient travelling distance.

Buyers Information:
In compliance with the UK's Anti Money Laundering (AML) regulations, we are required to confirm the identity of all prospective buyers at the point of an offer being accepted and use a third party, Identity Verification System to do so. There is a nominal charge of £48 (per person) including VAT for this service. For more information, please refer to the terms and conditions section of our website.

Whether you’re looking to
  • buy
  • sell
  • rent
  • let
  • buy
we would love to help.