Boyes Crescent, Napsbury Park, AL2 1UB

Offers in excess of £900,000
Bedrooms
4
Bathrooms
2
Receptions
1
Council Tax:
G
EPC:
C
Freehold

An Immaculately presented townhouse arranged over three floors with a spacious south-facing garden and two parking spaces in the prestigious Napsbury Park development.

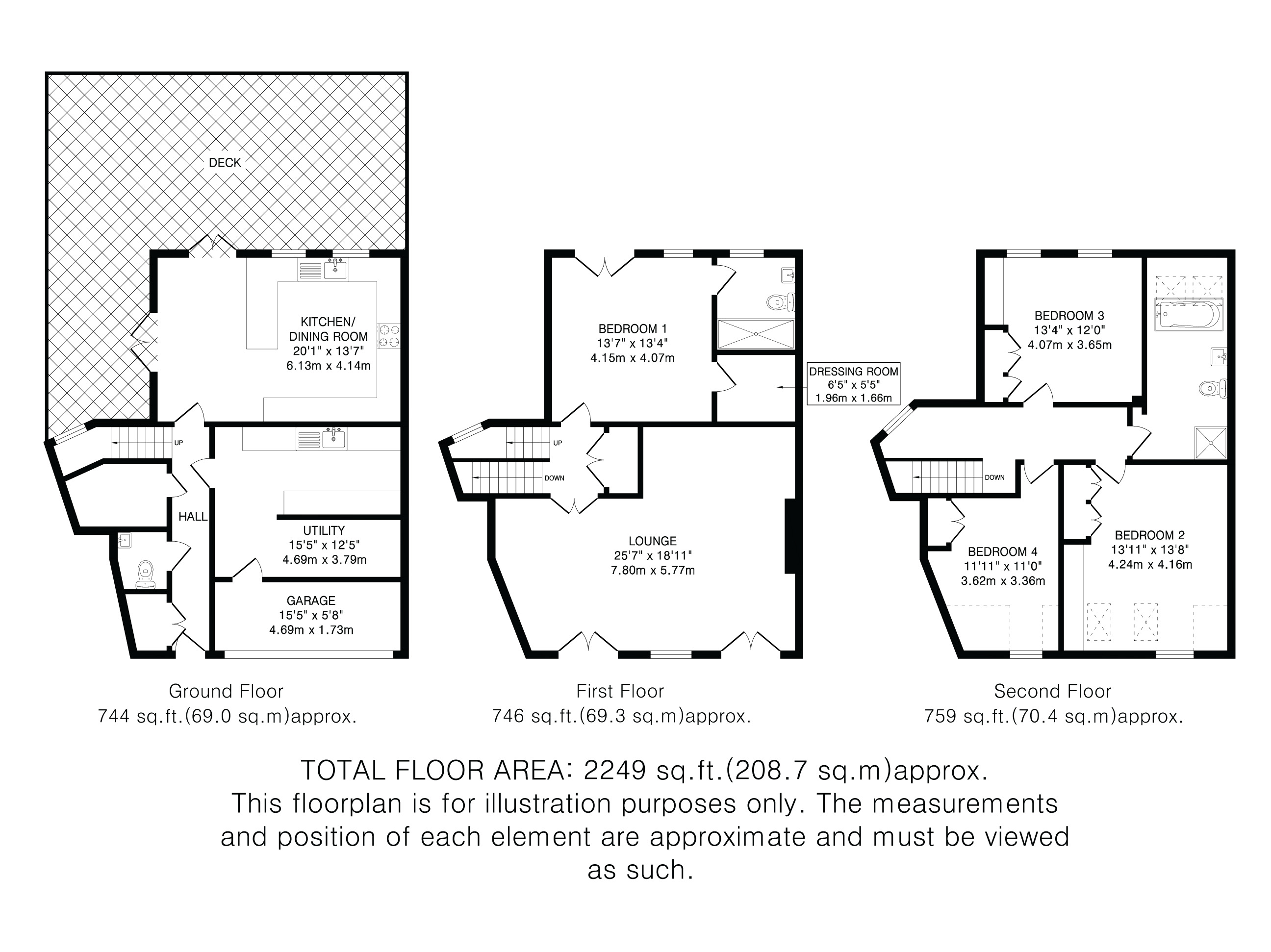
An immaculately presented and generously proportioned four-bedroom townhouse arranged over three floors, offering flexible and well-balanced living accommodation, ideal for modern family life.

The ground floor features a spacious entrance hall leading to a bright and well-appointed kitchen/dining room, complete with ample storage, integrated appliances and direct access to the rear garden - perfect for entertaining. A separate utility room and WC add practicality, while internal access leads to a garage providing additional storage.

On the first floor, a substantial living room spans an impressive footprint, offering a superb living and entertaining space with excellent natural light. This level also hosts a large principal bedroom, complemented by a dressing room and a modern en-suite.

The second floor comprises three further well-proportioned bedrooms, including a generous double, all served by a contemporary family bathroom.

Externally, the property benefits from a private south-facing rear garden with a decked terrace, ideal for outdoor dining, along with off-street parking and garage facilities.

In total, the property offers approximately 2,249 sq. ft. of versatile accommodation, making it a superb choice for families seeking space, comfort and convenience.

Boyes Crescent is a quiet, gated community located within the well-regarded Napsbury Park development. The surrounding motorway networks are comfortably accessible and the shopping and leisure facilities of both St Albans and Radlett, each with mainline stations serving central London, are also within convenient travelling distance. The property also benefits from being just a short drive away from London Colney Retail Park which includes Marks and Spencer and Sainsburys.

Council Tax Payable: £4,117.20 (2026/2027)
Service Charge: £923.12 per annum
In compliance with the UK's Anti Money Laundering (AML) regulations, we are required to confirm the identity of all prospective buyers at the point of an offer being accepted and use a third party, Identity Verification System to do so. There is a nominal charge of £48 (per person) including VAT for this service. For more information, please refer to the terms and conditions section of our website.

Whether you’re looking to
  • buy
  • sell
  • rent
  • let
  • buy
we would love to help.