Kings Road, London Colney, AL2 1EP

Sale Agreed
Guide price of £450,000
Bedrooms
3
Bathrooms
1
Receptions
1
Council Tax:
D
EPC:
D
Freehold

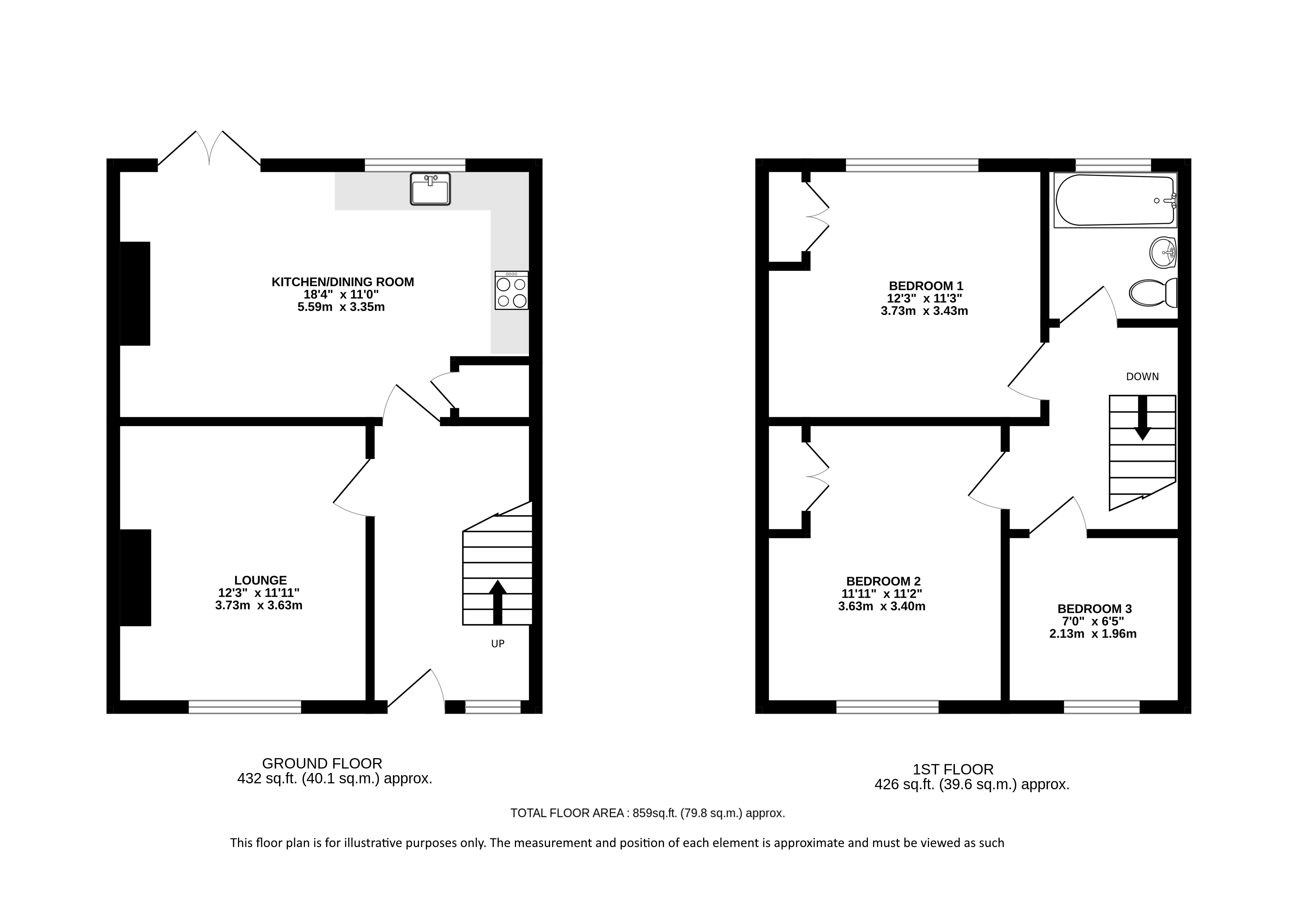
A well-presented end of terrace three-bedroom house situated in a popular turning in London Colney. Being sold with no onward chain.

Ideally situated in a sought-after neighbourhood just a short stroll from local shops and amenities, this impressive three-bedroom end of terrace residence offers the perfect blend of comfort, style, and convenience.

Designed with modern living in mind, the property boasts a bright and spacious reception room to the front of the house, a contemporary kitchen with adjoining dining area benefitting from a range of storage options and appliances and access to the rear garden.
Upstairs three well-proportioned bedrooms are served by a modern bathroom with white three-piece suite.

Externally a private rear garden is laid mainly to lawn with side access to the front of the house. To the front there is off street parking for one car in the form of a hard standing driveway. Being sold with no onward chain.

Kings Road is situated in London Colney to the south-west of St Albans and within easy reach of the city's wide range of amenities. Both St Albans City Station and Radlett Stations can be used for access into London, and the property is within walking distance of Colney Fields Retail Park.

Council Tax Band D: £2,354.88 (2025/2026)

Buyers Information:
In compliance with the UK's Anti Money Laundering (AML) regulations, we are required to confirm the identity of all prospective buyers at the point of an offer being accepted and use a third party, Identity Verification System to do so. There is a nominal charge of £48 (per person) including VAT for this service. For more information, please refer to the terms and conditions section of our website.

Whether you’re looking to we would love to help.