Avenue Road, St. Albans, St. Albans, AL1 3PY

Sale Agreed
Guide price of £650,000
Bedrooms
3
Bathrooms
3
Receptions
1
Council Tax:
E
EPC:
C
Freehold

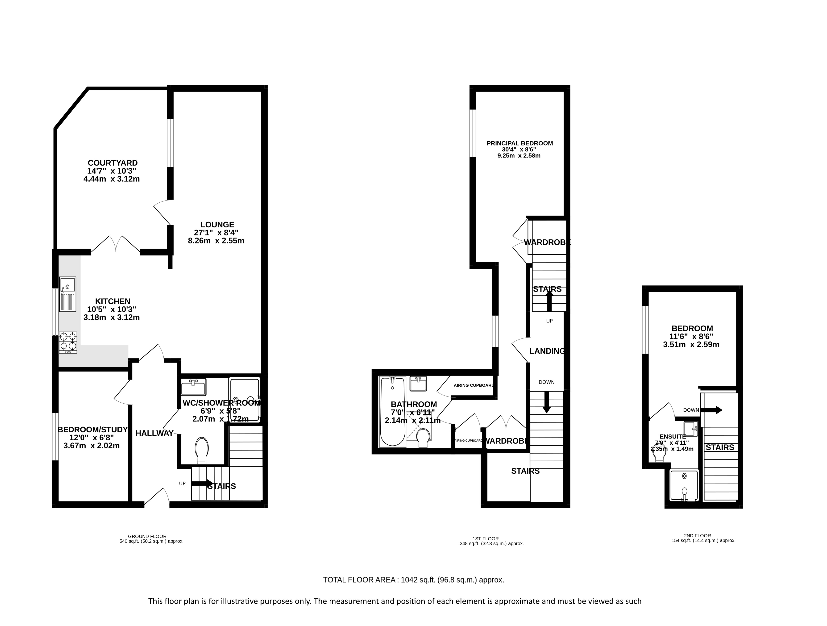
A charming three bedroom, three bathroom townhouse forming part of an impressive Victorian conversion. The property has an excellent central location, gated access and the benefit of allocated parking.

This lovely property is quietly situated to the rear of an historic and iconic landmark building in central St Albans and has private gated access. With high specification finish throughout, its contemporary interior beautifully compliments the retained period features.
The accommodation includes a welcoming hallway leading into the impressive kitchen. High ceilings, feature lighting and an abundance of natural light are a feature of this property, with the kitchen benefiting from a window to the side and double doors leading onto the pleasant courtyard garden. With granite and solid oak worktops, along with numerous integrated appliances, the kitchen includes a range of high gloss floor and wall cupboards. The stylish dining and living room is beyond, and this also has a window and a door onto the garden. The ground floor also features a double bedroom which could serve as an excellent study and a beautifully finished shower room. On the first floor, the spacious principal bedroom has a smart modern en-suite bathroom and useful utility cupboard, whilst on the second floor there is a further double bedroom with an en-suite shower room. The property also benefits from several large and useful storage cupboards and loft areas.

Please note there is a maintenance charge of £634 per quarter which covers the building insurance, external window cleaning, gardening, bin storage maintenance, general maintenance repairs reserve contribution and management company.

Cadoxton Place is set back from Avenue Road, and is in an excellent central location, just a short walk from the mainline station. The wide range of amenities in St Albans city centre is close by as is the green space of Clarence Park.

Council Tax Band E: £2,758.72 (2025/2026)

Buyers Information:
In compliance with the UK's Anti Money Laundering (AML) regulations, we are required to confirm the identity of all prospective buyers at the point of an offer being accepted and use a third party, Identity Verification System to do so. There is a nominal charge of £48 (per person) including VAT for this service. For more information, please refer to the terms and conditions section of our website.

Whether you’re looking to we would love to help.