The Oaklands, Aston Lane, Bragbury End, SG2 8WN

Guide price of £1,295,000
Bedrooms
5
Bathrooms
3
Receptions
3
Freehold

The Oaklands is a small, exclusive collection of just five stunning detached family homes with beautiful flexible layouts over three floors by reputable developer, Balan Homes

* SHOW HOME AVAILABLE TO BUY!! *

The Oaklands is a small, exclusive collection of just five stunning detached family new homes with beautiful flexible layouts over three floors by reputable developer, Balan Homes.

The Show Home is a stunning five bedroom detached home offering a high calibre of design, specification and craftmanship seldom found in the local market. Finished to an uncompromising standard, this home features bespoke fixtures and fittings throughout, creating an elegant and sophisticated living environment suited to modern lifestyles.

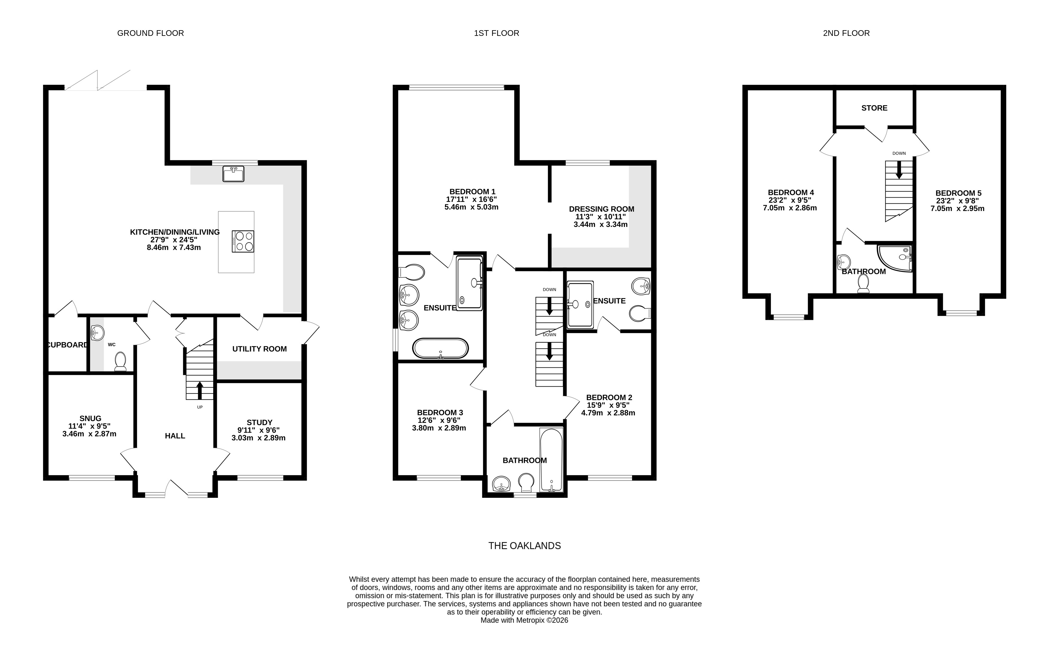
These truly wonderful homes span approximately 2,860 sq ft with modern family living in mind.

The accommodation includes an impressive L-shaped kitchen/dining/family room with feature island and Siemens appliances; bi-folding doors to the rear garden terrace, perfect for entertaining and relaxing, two additional reception rooms to the front and a practical utility/boot room.

On the first floor, the principal bedroom suite is a stunning peaceful retreat – an impressive bedroom with fabulous floor to ceiling cathedral-style window overlooking the rear garden, a fitted walk-in dressing room and the most luxurious en-suite boasting a free-standing bath and separate shower cubicle, feature oak panelled wall and double sink vanity unit. This stunning space alone will tempt you to seriously consider moving in!

Bedroom two/guest room also has a beautiful en-suite shower room; bedroom three and the well appointed family bathroom are also on the first floor; with the top floor completing the property with two further double rooms, a further en-suite shower room and large walk-in practical storage cupboard.

Outside, the properties benefit from a large L-shape terrace area, leading to a generous south-facing garden, with a back-drop of trees to provide privacy and side access to the front.

Three allocated parking spaces serve each home, with an EV charger point, located at the front of the properties for ease and convenience.

With a gated entrance and positioned within an exclusive hamlet style setting, adjoining open countryside and the local golf club, the homes enjoy a sense of tranquillity. The properties also benefit from excellent transport connections and convenient access to Stevenage town centre and its amenities, delivering a blend of country living and contemporary convenience.

All homes come with a new homes 10-year warranty for low maintenance and peace of mind.

BOOK A PERSONAL TOUR NOW!

NB: Images shown are of Show Home. Rear view image is CGI

Bragbury End is a charming and sought-after hamlet on the southern edge of Stevenage, offering the perfect blend of countryside tranquillity and modern convenience. It combines the calm of rural living with the practicality of being close to schools, shops, and amenities in nearby Stevenage, making it an ideal place to call home. The area is known for its friendly community feel, beautiful walks, and easy access to nearby villages such as Knebworth and Datchworth, which boast cosy pubs, boutique shops, and scenic countryside.

Nearby Stevenage offers all of the comprehensive amenities you would expect from a modern new town. The town is well connected via junctions 7 & 8 of the A1(M), offering easy access to London and the M25 and also to the North.

The town centre has a pedestrianised shopping centre, together with several large retail parks, including a large M&S store. The Leisure Park provides the Gordan Craig Theatre, an Arts & Leisure Club, a David Lloyd Health Club, multi-screen Cineworld complex, Hollywood Bowl and a selection of eateries.

Nearby, there is a choice of golf and sports clubs and Knebworth House and Park, famous for its rock concerts, regularly hosts a variety of events including medieval jousting, car rallies, outdoor concerts, Country, Garden and Christmas Fairs.

Excellent for commuters, Stevenage station has a fast, frequent service to both London Kings Cross and St Pancras International with a direct journey time of only 23 minutes! The service direct to Cambridge is 40 minutes. For those wishing to travel further afield, both Luton and Stansted airports are within easy reach.

Other accessible towns are Hertford (continuing on the A602), Hitchin, Welwyn Garden City and St Albans.

Buyers Information:
In compliance with the UK's Anti Money Laundering (AML) regulations, we are required to confirm the identity of all prospective buyers at the point of an offer being accepted and use a third party, Identity Verification System to do so. There is a nominal charge of £48 (per person) including VAT for this service. For more information, please refer to the terms and conditions section of our website.

Whether you’re looking to
  • buy
  • sell
  • rent
  • let
  • buy
we would love to help.