Forum House, Abbey View, St Albans, AL1 2PS

Guide price of £282,500
Bedrooms
1
Bathrooms
1
Receptions
1
Leasehold

Brand new one bedroom apartment in fantastic city centre location close to the station

This exceptional development represents a rare opportunity to own a brand new apartment in one of the UK's most desirable commuter cities. Comprising 63 contemporary apartments, the development is perfectly positioned just 1 minute from St Albans Abbey train station, offering unparalleled connectivity to London in just 18 minutes.

Developed by an experienced developer with over 30 years of combined experience in the real estate sector, this development delivers sustainable, high-quality homes designed for modern living.

Anticipated Completion: Q4 2026 / Q1 2027

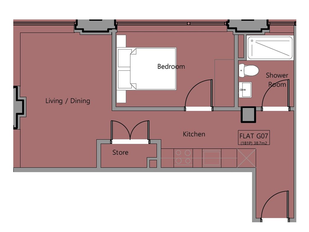
Plot G07 is a one bedroom ground floor apartment with 416 sq ft of accommodation.

Ideal for singles, couples, or buy-to-let investors!

Call us now for more information!

The beautiful Cathedral city of St Albans is a unique blend of historical charm, modern amenities, and natural beauty that enriches daily life. Nestled in the heart of Hertfordshire, this vibrant city boasts a rich tapestry of heritage, with its stunning Roman remains, medieval architecture, and iconic cathedral creating a sense of timelessness. Beyond its historical allure, St Albans offers a thriving cultural scene, with bustling markets, eclectic independent boutiques, and a diverse array of restaurants and cafes to explore.

It is the perfect place for those looking for a compromise between urban life and country living. The city's green spaces, including Verulamium Park and Clarence Park, provide tranquil retreats for outdoor enthusiasts, while excellent transport links ensure easy access to London in just 20 minutes. With top-rated schools, a strong sense of community, and a welcoming atmosphere, St Albans is a wonderfully unique location to live and Vickers Mews is right in the heart of it all!

The Sunday Times recently named St Albans as the best place in the South East to live.


Service Charge: £1,171.42 per annum
Leasehold: 999 years remaining

Whether you’re looking to
  • buy
  • sell
  • rent
  • let
  • buy
we would love to help.