Henry Isaac Mews, Brookend Lane, St. Ippolyts, Hitchin, SG4 7EY

Guide price of £1,295,000
Bedrooms
4
Bathrooms
3
Receptions
2
EPC:
A
Freehold

Last Remaining Home! Brand new luxury four bedroom detached barn style home at Henry Isaac Mews, with wonderful views of fields and close to historic Hitchin.

Last detached barn now released! Henry Isaac Mews is a collection of just seven barn style 3 & 4 bedroom luxury homes, located in this sought after village with wonderful views of fields and the pretty church, close to historic Hitchin.

* ASK ABOUT OUR NEW YEAR INCENTIVES! *

THE PROPERTY:

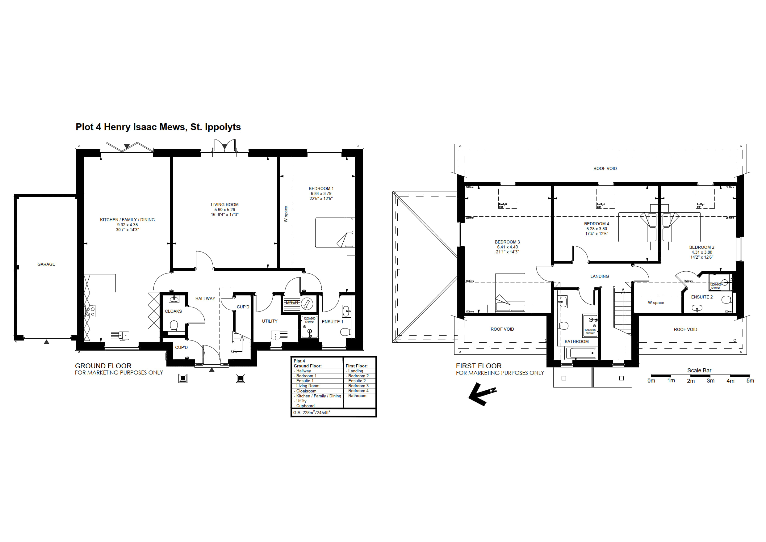
Plot 4 boasts 2,400 sq ft of flexible accommodation over two floors. This impressive 4 bedroom detached barn is finished to an outstanding specification with a generous, private garden and an oversized single garage.

On the ground floor, the accommodation comprises: a large, bright entrance hall; a spacious open plan kitchen/dining/family room with bi-folds opening out onto the decked terrace, perfect for entertaining or simply relaxing a watching the wildlife; a separate generous formal lounge with french doors to the rear garden decked terrace; a practical laundry/utility room, cloakroom/WC, and understairs storage cupboard.

The generous principal bedroom is also situated on the ground floor with a luxury en-suite shower room. This flexible space can be an additional reception room, a bedroom for guests/elderly relatives or simply to future proof the property for downsizers.

On the first floor there are three further double bedrooms, bedroom 2/guest room with en-suite and a large well appointed family bathroom, with bathtub and separate shower cubicle.

The stunning outside space is a real feature of this property with wonderful views of fields, and the church at the top of the hill beyond. The terrace has steps down onto a generous south-east facing garden laid to lawn with a small brook at the rear of the boundary.

Rarely available in this style and in a private, cul de sac location close to Hitchin, residents can enjoy the many benefits of a luxury new home including * air source heating, * solar PV panels, * EV charging points * super energy efficient for lower running costs at a high B EPC rating, * a 10-year new homes warranty for low maintenance and peace of mind.

Additional specification benefits include integrated branded appliances, flooring, security alarm, aqua bion water conditioner, Quooker hot water tap, and electric garage doors.

THE DEVELOPER: Jarvis Homes

Jarvis Homes is a local developer based in Harpenden. The company has a first class reputation within the industry that has been developed over 100 years. They design and build high quality, attractive homes of distinction that deliver excellent energy efficiency, creating a home and environment for all to be proud of.

A quiet, village location, with immediate easy access to Hitchin, within just a few minutes drive, thus offering the best of town and country living.

See brochure for full details. Viewings by appointment.

Private road, freehold.
Estate charge approx £430 per property per annum.

Disclaimer:
All Christmas decorations, props and festive elements shown are computer-generated for marketing purposes only. They will not be present at the property during viewings or at any stage of the sale. All property details are subject to change and should be verified with the agent.

St Ippolyts village offers good local amenities including a convenience store, church, village hall and there is a pleasant walk through to Gosmores pub, the Bird in Hand pub..

Residents can enjoy the leisurely pace of village life and all that the countryside has to offer, whilst still being within each reach of Hitchin and comprehensive amenities of Stevenage with its retail and leisure parks.

For families, there is an excellent local primary school in the village (OFSTED Good) and these homes benefit from being in the catchment for the sought after Hitchin Boys and Hitchin Girls schools in Hitchin.

Offering best of town and country, this idyllic location is only a couple of miles south of the historic, pretty Hitchin town centre, with its fantastic choice of restaurants, cafes, boutiques and shops. Named in the Sunday Times best places to live, the town's picturesque market square and cobbled streets lead to the beautiful St Mary's Church, weekly outdoor market and River Hiz in the centre of town.

For commuters, Hitchin and Stevenage stations (just 5 minutes drive) offer fast, frequent rail services into both Kings Cross and St Pancras in under 30 minutes journey time and there are good commuter links via the A1M and M1 within a few minutes drive.

Buyers Information:
In compliance with the UK's Anti Money Laundering (AML) regulations, we are required to confirm the identity of all prospective buyers at the point of an offer being accepted and use a third party, Identity Verification System to do so. There is a nominal charge of £48 (per person) including VAT for this service. For more information, please refer to the terms and conditions section of our website.

Whether you’re looking to
  • buy
  • sell
  • rent
  • let
  • buy
we would love to help.