St Mary's Row, Shephall Green, Stevenage, SG2 9XR

Guide price of £425,000
Bedrooms
2
Bathrooms
1
Receptions
1
Freehold

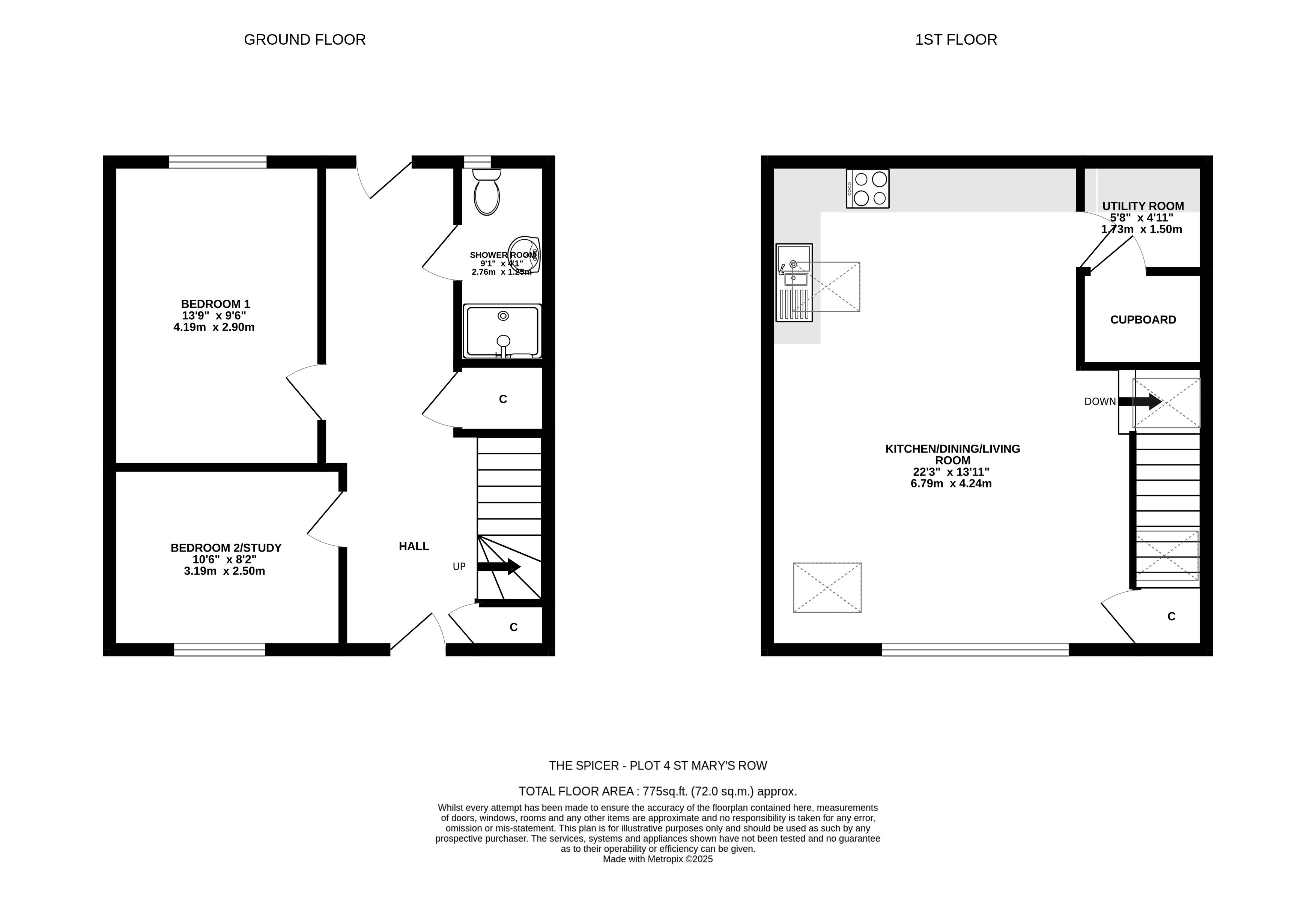
The Spicer is a truly unique and impressive 2-bedroom detached home with a private garden and driveway for two parking spaces, finished to an outstanding specification.

Rarely available, St Mary's Row presents a private "non estate" collection of just four stylish detached properties. Specialising in small and select developments in carefully chosen locations, Bonnel Homes has a reputation for creating high quality contemporary homes for modern living. From the moment you step inside a Bonnel Home, the high end finish and attention to detail is unmistakable.

** FOR A LIMITED TIME ONLY, SUBJECT TO BUILD STAGE, BESPOKE YOUR HOME AND CHOOSE YOUR KITCHEN FROM THE STUNNING RANGE, TOGETHER WITH TILING AND FLOORING CHOICES! **

Plot 4 (19D on the site plan) - The Spicer is a stunning 2-bedroom detached house offering generous, light, open plan living area, two bedrooms and a luxury bathroom. With plenty of practical storage, the property benefits from having a private garden (approx 25 ft deep) and a generous driveway to the front providing two parking spaces and EV charger.

This delightful property would suit the busy professional or downsizer, looking for a contemporary new home, that is both luxurious and energy efficient, in a lovely location, overlooking St Mary's church and the Green beyond.

FOR MORE DETAILS, CONTACT KAY AT THE ASHTONS NEW HOME TEAM. Completion for December 2025.

Please note: internal photos show plot 2 house, next door, which is a finished unit. ** Viewings strictly by appointment. **

Shephall Green is a quiet and historic village dating back to the Doomsday book! It is tucked away on the south side of Stevenage with a picturesque Green and church, within easy reach of the town centre and and its excellent transport links to London and Cambridge.

Stevenage offers all of the comprehensive amenities you would expect from a modern new town. The town is well connected via junctions 7 & 8 of the A1(M), offering easy access to London and the M25 and also to the North. It is surrounded by pleasant countryside and woodland with many walks and footpaths.

Excellent for commuters, Stevenage station has a fast, frequent service to both London Kings Cross and St Pancras International with a direct journey time of only 22 minutes! The Cambridge service is also just a journey time of 40 minutes. For those wishing to travel further afield, both Luton and Stansted airports are within easy reach.

The town is split into well maintained neighbourhoods and has a unique network of cycle paths. There are many green open spaces and parks, including Fairlands Valley Lakes and cafe, which is within walking distance (photos shown).

The town centre has a pedestrianised shopping centre, together with several large retail parks, including a large M&S store. The Leisure Park provides the Gordan Craig Theatre, an Arts & Leisure Club, a David Lloyd Health Club, multi-screen Cineworld complex, Hollywood Bowl and a selection of eateries. Nearby, there is a choice of golf and sports clubs and Knebworth House and Park, famous for its rock concerts, regularly hosts a variety of events including medieval jousting, car rallies, outdoor concerts, Country, Garden and Christmas Fairs.

Other nearby towns are Hertford (easy access continuing on the A602), Hitchin, Welwyn and St Albans.

BOOK YOUR APPONTMENT TO VIEW THIS IMPRESSIVE HOME TODAY!

Buyers Information:
In compliance with the UK's Anti Money Laundering (AML) regulations, we are required to confirm the identity of all prospective buyers at the point of an offer being accepted and use a third party, Identity Verification System to do so. There is a nominal charge of £48 (per person) including VAT for this service. For more information, please refer to the terms and conditions section of our website.

Whether you’re looking to
  • buy
  • sell
  • rent
  • let
  • buy
we would love to help.