Pigeonwick, Harpenden, AL5 4EZ

Guide price of £750,000
Bedrooms
3
Bathrooms
1
Receptions
2
Council Tax:
F
EPC:
E
Freehold

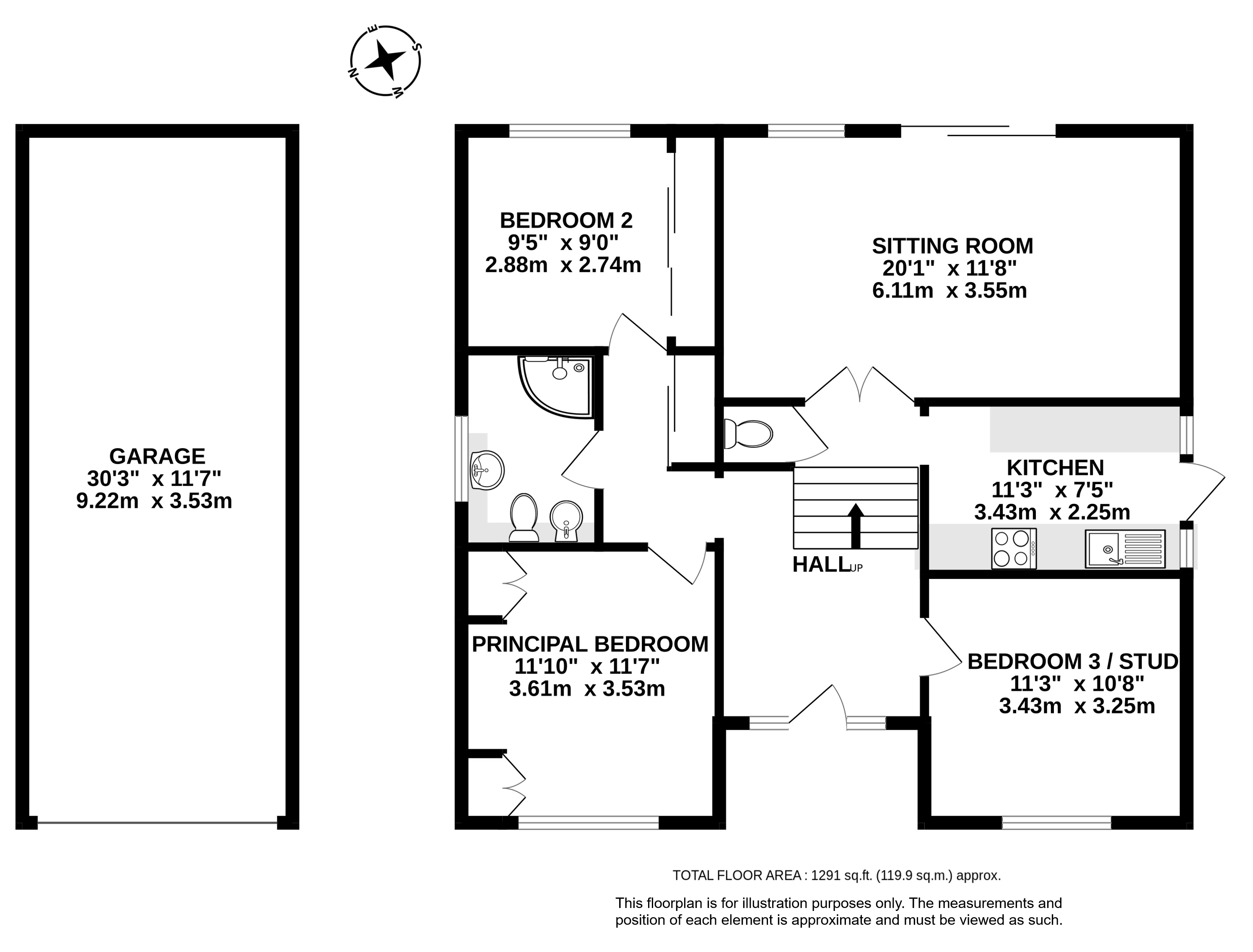
Spacious three-bedroom detached bungalow ideally located in a quiet central cul-de-sac, moments from St. George’s School, Harpenden Station, and the High Street.

This charming and well-presented detached bungalow, is perfectly positioned in a desirable and convenient Harpenden location. The home enjoys a sunny, south-facing garden and offers bright, well-proportioned living spaces throughout. At the rear, the 20ft sitting room provides an inviting setting with sliding glass doors opening out onto the garden, ideal for both relaxing and entertaining. The modern kitchen features stylish fitted units, ample storage, and integrated appliances, with access via a convenient side door.

The property includes three generous double bedrooms, two positioned to the front and one to the rear, with built-in wardrobes in two rooms. One bedroom could also serve as a study or additional reception space. A contemporary shower room serves the bedrooms, while a ground floor WC adds practicality.

Externally, the property benefits from driveway parking and a substantial 30ft integrated garage, offering scope for storage, workshop use, or potential conversion (subject to planning). The rear garden is beautifully landscaped with decking and raised beds, creating a private and peaceful outdoor retreat.

Pigeonwick is a delightful cul-de-sac tucked just off Sun Lane, offering a truly special place to call home. Built on the historic site of the former 19th-century Pigeonwick Manor, this charming enclave features a variety of characterful homes reflecting the different eras of Harpenden’s rich architectural heritage.

Perfectly positioned for convenience, residents enjoy an unrivalled proximity to Harpenden’s vibrant array of shops, cafés, and restaurants, all just a short stroll away. The mainline station is within a quarter of a mile, and the renowned St George’s School is only moments from the doorstep.

With its peaceful setting and welcoming community atmosphere, Pigeonwick provides an exceptional environment for families and a truly delightful place to live at any stage of life.

Council Tax Band F: £3,383.72 (2025/26)
Service Charge: £0.00 per annum

Buyers Information:
In compliance with the UK's Anti Money Laundering (AML) regulations, we are required to confirm the identity of all prospective buyers at the point of an offer being accepted and use a third party, Identity Verification System to do so. There is a nominal charge of £48 (per person) including VAT for this service. For more information, please refer to the terms and conditions section of our website.

Whether you’re looking to
  • buy
  • sell
  • rent
  • let
  • buy
we would love to help.