Tea Green, Luton, Hertfordshire, LU2 8PS

Guide price of £1,000,000
Bedrooms
5
Bathrooms
3
Receptions
3
Council Tax:
F
EPC:
E
Freehold

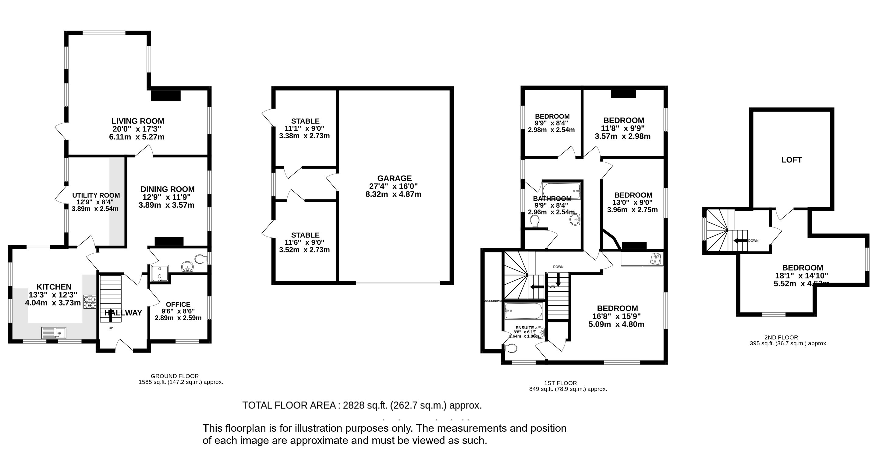
A detached cottage in superb countryside originally built on the edge of this North Hertfordshire hamlet in around 1840 and subsequently extended and improved by the current owners to create a comfortable family home

A five bedroomed home in very good decorative order with a good size garden and small paddock extending to approximately 0.7 acres in total. The house is set on a raised plot and is enclosed by post and rail fencing and natural hedgerow. The large driveway with room for at least four cars leads to the garage and paddock and via a flag stone path to the front door.
The entrance hall with staircase to first floor leads to the reception rooms all of which have views over fields on all sides. The kitchen breakfast room overlooks the rear garden and is fitted in a cottage style with space for breakfast table and four chairs. A large utility room leads off the kitchen and is ideal for boot storage, washing machines and as a dog room if required. The dining room comfortably seats six with wood burning stove and leads to the main reception room which has a triple aspect to front, side and rear and door to the garden.
On the first floor there are four bedrooms all with lovely views one with ensuite and a modern family bathroom. Stairs lead to the top floor where there is a final sizeable bedroom with views toward the village.
Outside this lovely home there are formal gardens around the house and patio area and to add further to the property the owners rent a small section of additional rear garden for a small sum annually. The driveway and double garage leads to a store room and two stables, which open onto the paddock.

Tea Green is a highly convenient rural location only a few minutes drive from the outskirts of Luton and 15 minutes to Harpenden and Hitchin. There is great access to both airport and motorways whilst being in the heart of the countryside.

Council Tax Payable: £3,619.47 (2026/2027)
In compliance with the UK's Anti Money Laundering (AML) regulations, we are required to confirm the identity of all prospective buyers at the point of an offer being accepted and use a third party, Identity Verification System to do so. There is a nominal charge of £48 (per person) including VAT for this service. For more information, please refer to the terms and conditions section of our website.

Whether you’re looking to
  • buy
  • sell
  • rent
  • let
  • buy
we would love to help.