Stunning rural plot with planning for a unique detached four bedroomed family home.
Set within a delightful rural setting, this attractive plot extends to over half an acre of level ground and is approached via a private driveway, offering a high degree of privacy together with far-reaching countryside views. It provides a wonderful opportunity for the creation of a striking new home in a peaceful yet accessible location.
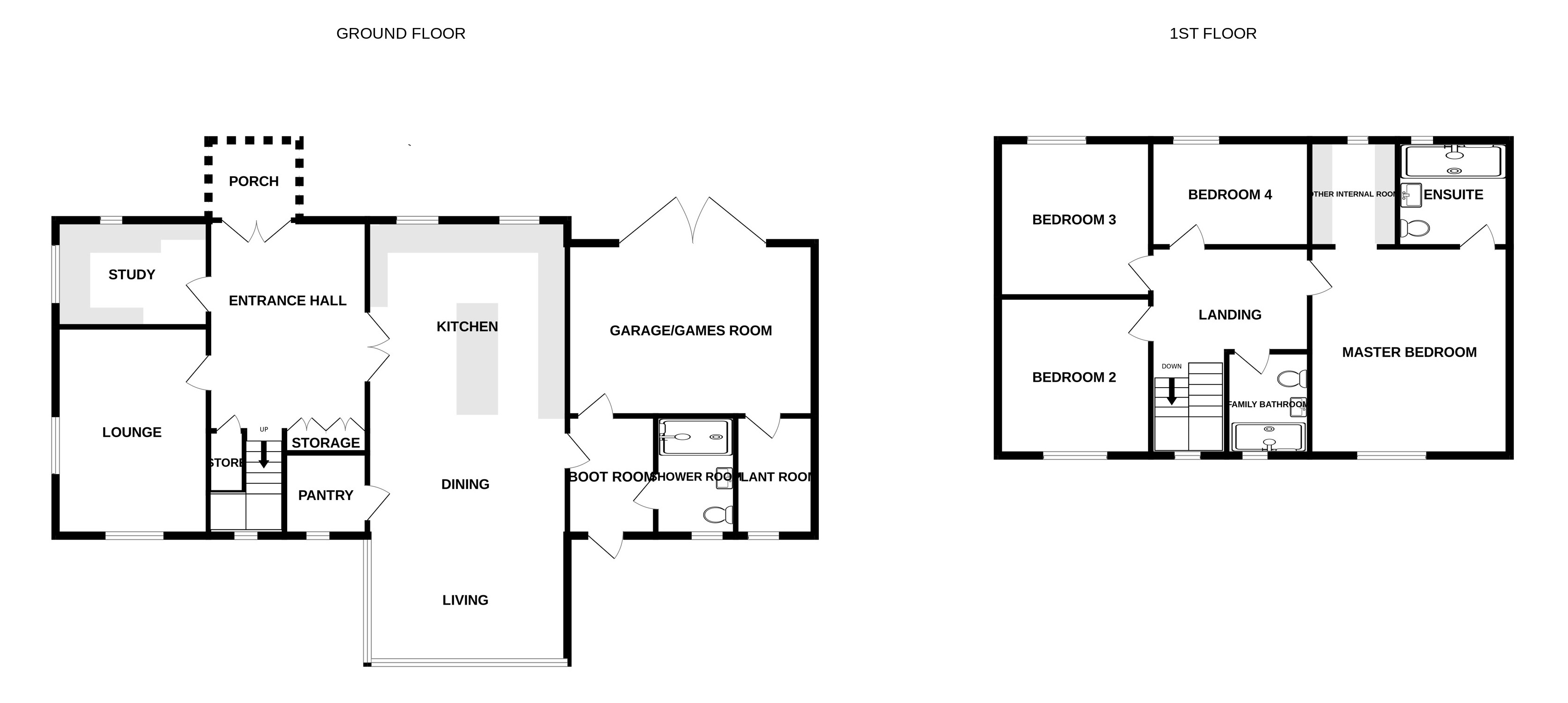
The proposed residence, New Lodge, is an impressive contemporary four-bedroom home extending to approximately 3,340 sq ft of thoughtfully designed accommodation. The property has been carefully conceived to create a light-filled, energy-efficient family home, perfectly suited to modern living while taking full advantage of its tranquil surroundings.
A welcoming entrance hall sets the tone for the accommodation and leads through to an exceptional open-plan kitchen, dining and family space, designed as the heart of the home. Floor-to-ceiling glazing frames attractive views across the gardens and floods the interior with natural light. Positioned off the hallway are a separate sitting room and study, both enjoying pleasant garden outlooks and offering ideal spaces for relaxation or working from home.
The layout has been designed with practical family living in mind. A boot room and ground-floor shower room are conveniently accessed from the kitchen and provide direct access to both the garage/games room and the garden, making the home as functional as it is stylish.
Upstairs, the principal bedroom suite enjoys delightful views over the gardens and benefits from a private ensuite bathroom. Three further well-proportioned double bedrooms are served by a stylish family bathroom, creating a flexible and well-balanced layout suited to growing families or visiting guests.
The home has been carefully orientated to maximise its private southerly aspect, ensuring excellent natural light and attractive garden views while maintaining privacy, with no direct overlooking of neighbouring properties. Windows have been thoughtfully designed to optimise natural daylight and passive solar gain, while a generous roof overhang provides shade to the main glazed areas during the warmer months. Internally, all windows will be fitted with elegant shutters, enhancing both comfort and style.
Architecturally, New Lodge presents a bold yet refined contemporary aesthetic that reflects its name while maintaining a visual relationship with the neighbouring Foxfield property through complementary materials. The exterior will be finished in striking black timber cladding, creating a sophisticated appearance that sits comfortably within its rural surroundings.
The roof will incorporate innovative black solar panels, enabling the home to harness renewable energy while maintaining a sleek and cohesive design. The building’s form has been carefully composed to achieve an efficient and compact footprint, complemented by a generous roof pitch that echoes the proportions of the nearby main house.
Large contemporary low-emissivity glazed windows, detailed with minimal framing, punctuate the dark façade and will create a warm, inviting glow when illuminated in the evening.
The setting will be further enhanced by a thoughtfully designed landscaping scheme, incorporating ornamental trees and textured planting to provide visual interest, natural shading and a seamless connection between the home and its surrounding countryside.
New Lodge is located on a quiet rural road close to the hamlet of Mackerye End. The pretty village of Wheathampstead, with its bakery, butcher, cafes and pubs, is just a few minutes' drive away, as is the town of Harpenden with its excellent schools and 25-minute train link to London St Pancras. From the plot there's a network of winding lanes, paths and bridleways through woodland and farmland, a haven for walkers, cyclists and dog walkers, and a country pub a mile away. St Albans, Welwyn Garden City and Luton Airport are all less than 20 minutes' drive from the house.
The proposed residence, New Lodge, is an impressive contemporary four-bedroom home extending to approximately 3,340 sq ft of thoughtfully designed accommodation. The property has been carefully conceived to create a light-filled, energy-efficient family home, perfectly suited to modern living while taking full advantage of its tranquil surroundings.
A welcoming entrance hall sets the tone for the accommodation and leads through to an exceptional open-plan kitchen, dining and family space, designed as the heart of the home. Floor-to-ceiling glazing frames attractive views across the gardens and floods the interior with natural light. Positioned off the hallway are a separate sitting room and study, both enjoying pleasant garden outlooks and offering ideal spaces for relaxation or working from home.
The layout has been designed with practical family living in mind. A boot room and ground-floor shower room are conveniently accessed from the kitchen and provide direct access to both the garage/games room and the garden, making the home as functional as it is stylish.
Upstairs, the principal bedroom suite enjoys delightful views over the gardens and benefits from a private ensuite bathroom. Three further well-proportioned double bedrooms are served by a stylish family bathroom, creating a flexible and well-balanced layout suited to growing families or visiting guests.
The home has been carefully orientated to maximise its private southerly aspect, ensuring excellent natural light and attractive garden views while maintaining privacy, with no direct overlooking of neighbouring properties. Windows have been thoughtfully designed to optimise natural daylight and passive solar gain, while a generous roof overhang provides shade to the main glazed areas during the warmer months. Internally, all windows will be fitted with elegant shutters, enhancing both comfort and style.
Architecturally, New Lodge presents a bold yet refined contemporary aesthetic that reflects its name while maintaining a visual relationship with the neighbouring Foxfield property through complementary materials. The exterior will be finished in striking black timber cladding, creating a sophisticated appearance that sits comfortably within its rural surroundings.
The roof will incorporate innovative black solar panels, enabling the home to harness renewable energy while maintaining a sleek and cohesive design. The building’s form has been carefully composed to achieve an efficient and compact footprint, complemented by a generous roof pitch that echoes the proportions of the nearby main house.
Large contemporary low-emissivity glazed windows, detailed with minimal framing, punctuate the dark façade and will create a warm, inviting glow when illuminated in the evening.
The setting will be further enhanced by a thoughtfully designed landscaping scheme, incorporating ornamental trees and textured planting to provide visual interest, natural shading and a seamless connection between the home and its surrounding countryside.
New Lodge is located on a quiet rural road close to the hamlet of Mackerye End. The pretty village of Wheathampstead, with its bakery, butcher, cafes and pubs, is just a few minutes' drive away, as is the town of Harpenden with its excellent schools and 25-minute train link to London St Pancras. From the plot there's a network of winding lanes, paths and bridleways through woodland and farmland, a haven for walkers, cyclists and dog walkers, and a country pub a mile away. St Albans, Welwyn Garden City and Luton Airport are all less than 20 minutes' drive from the house.
Buyers Information:
In compliance with the UK's Anti Money Laundering (AML) regulations, we are required to confirm the identity of all prospective buyers at the point of an offer being accepted and use a third party, Identity Verification System to do so. There is a nominal charge of £48 (per person) including VAT for this service. For more information, please refer to the terms and conditions section of our website.