Beeching Close, Harpenden, Hertfordshire, AL5 4LZ

Sale Agreed
Guide price of £250,000
Bedrooms
2
Bathrooms
1
Receptions
1
Council Tax:
B
EPC:
C
Leasehold

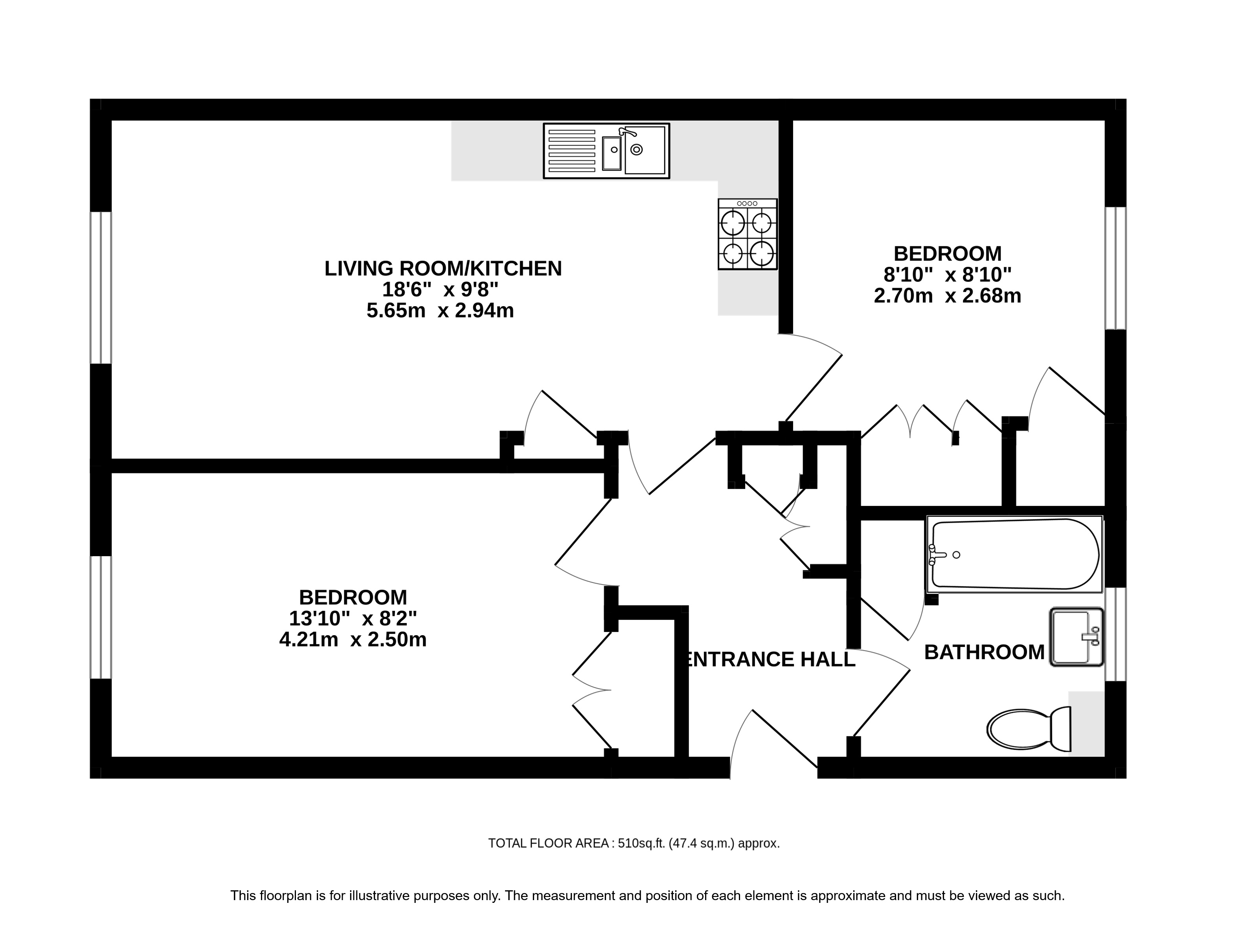
An extremely well presented ground floor apartment.

A recently refurbished ground floor apartment located within a great position for local amenities and open countryside.

Offered in in excellent order throughout, the accommodation comprises gas fired central heating, two bedrooms, lovely bathroom suite and fully fitted kitchen.

Outside, the communal gardens at the rear are laid mostly to lawn, whilst at the front is ample Residents parking.

Lease 125 years from 7/7/1986
Management charge inc. Service Charge: £975.89 pa
Ground Rent: £10 pa

Beeching Close is a convenient setting approximately a mile from Harpenden Town centre and station and presenting convenient access to some fine Country walks. The location provides a range of family homes within a short walk of The Lea school and also within a 10 minute stroll of Katherine Warington, St Georges and Sir John Lawes schools. There is a nearby park for young children to play with a range of activities for various age groups, including a basketball court and playground

Council Tax Band B: £1,821.99 (2025/26)

Buyers Information:
In compliance with the UK's Anti Money Laundering (AML) regulations, we are required to confirm the identity of all prospective buyers at the point of an offer being accepted and use a third party, Identity Verification System to do so. There is a nominal charge of £48 (per person) including VAT for this service. For more information, please refer to the terms and conditions section of our website.

Whether you’re looking to
  • buy
  • sell
  • rent
  • let
  • buy
we would love to help.