An extraordinary landmark five bedroomed detached home marketed for the first time in over 40 years.
This unique property was constructed by the locally renowned stonemason Charles Alderton incorporating stone reputedly sourced from the estate of Fineshade Abbey in Northamptonshire, to create this outstanding double fronted detached home. Marketed for the first time in over 40 years the property also includes ornate carved decoration to doorway, pediment and bay parapet as well as several windows in a gothic ecclesiastical style.
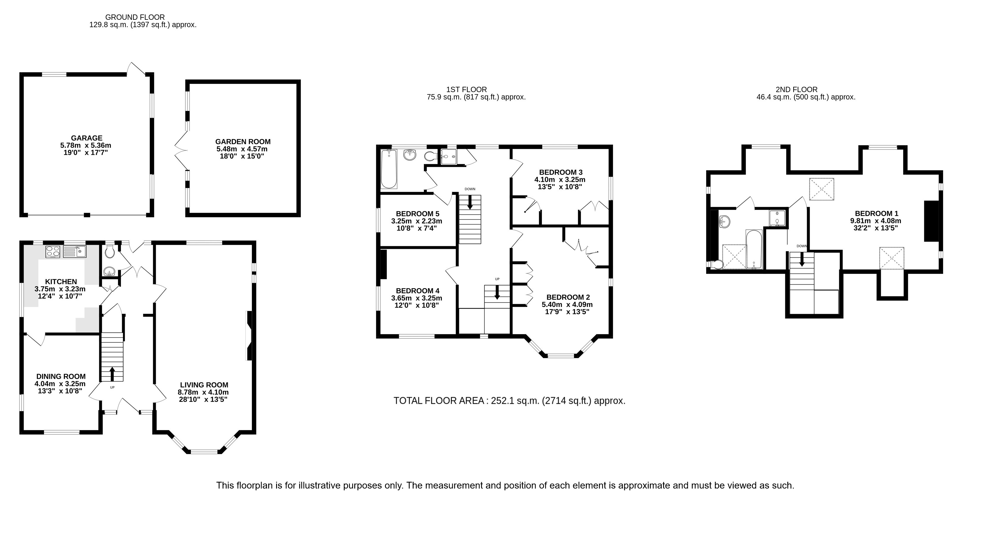
Internally the central entrance hall leads to the main double aspect living room with fabulous marble fireplace thought to have been reclaimed from Aldwickbury Manor. The rear doors overlook the delightful gardens. The morning room leads through to the fitted kitchen which also has views over the rear gardens.
On the first floor the large landing with original balustrade leads to four good sized bedrooms and a family bathroom. The stairs to the second floor reveal a principal suite with dressing area and large ensuite bathroom.
Outside the property is nicely set back from the road with a well stocked front garden with enclosing wall and block paved driveway for several cars. The driveway leads to the double detached garage. The rear gardens are a superb feature of this imposing home and extend to approximately 0.25 of an acre with mature shrubs and trees including very productive fruit trees and well stocked borders all set around a good size lawned area. There is also a sizeable timber-built summer house which provides a delightful garden space for a variety of uses.
The property has not been offered for sale in over 40 years and represents an ideal opportunity to extend and modernise to create a fantastic family home, subject to the usual permissions.
Jameson Road is ideally located in central Harpenden close to first class schools St. Georges and Sir John Lawes. Only 0.75 of a mile from Harpenden station (Kings Cross St. Pancras in under 30 minutes) and the High Street. Local road links to London and the North (M1 Junc. 9, 5 miles)
Internally the central entrance hall leads to the main double aspect living room with fabulous marble fireplace thought to have been reclaimed from Aldwickbury Manor. The rear doors overlook the delightful gardens. The morning room leads through to the fitted kitchen which also has views over the rear gardens.
On the first floor the large landing with original balustrade leads to four good sized bedrooms and a family bathroom. The stairs to the second floor reveal a principal suite with dressing area and large ensuite bathroom.
Outside the property is nicely set back from the road with a well stocked front garden with enclosing wall and block paved driveway for several cars. The driveway leads to the double detached garage. The rear gardens are a superb feature of this imposing home and extend to approximately 0.25 of an acre with mature shrubs and trees including very productive fruit trees and well stocked borders all set around a good size lawned area. There is also a sizeable timber-built summer house which provides a delightful garden space for a variety of uses.
The property has not been offered for sale in over 40 years and represents an ideal opportunity to extend and modernise to create a fantastic family home, subject to the usual permissions.
Jameson Road is ideally located in central Harpenden close to first class schools St. Georges and Sir John Lawes. Only 0.75 of a mile from Harpenden station (Kings Cross St. Pancras in under 30 minutes) and the High Street. Local road links to London and the North (M1 Junc. 9, 5 miles)
Council Tax Payable: £3,904.28 (2025/26)
Buyers Information:
In compliance with the UK's Anti Money Laundering (AML) regulations, we are required to confirm the identity of all prospective buyers at the point of an offer being accepted and use a third party, Identity Verification System to do so. There is a nominal charge of £48 (per person) including VAT for this service. For more information, please refer to the terms and conditions section of our website.