Sherwoods Rise, Harpenden, Hertfordshire, AL5 1LU

Sale Agreed
Guide price of £495,000
Bedrooms
3
Bathrooms
1
Receptions
1
Council Tax:
D
EPC:
C
Freehold

Set in a peaceful cul-de-sac this family home offers excellent accommodation with nearby countryside walks and a superb location for some of Harpenden's finest schools.

This delightful family home is ideally situated in a quiet cul-de-sac, with countryside walks on your doorstep.

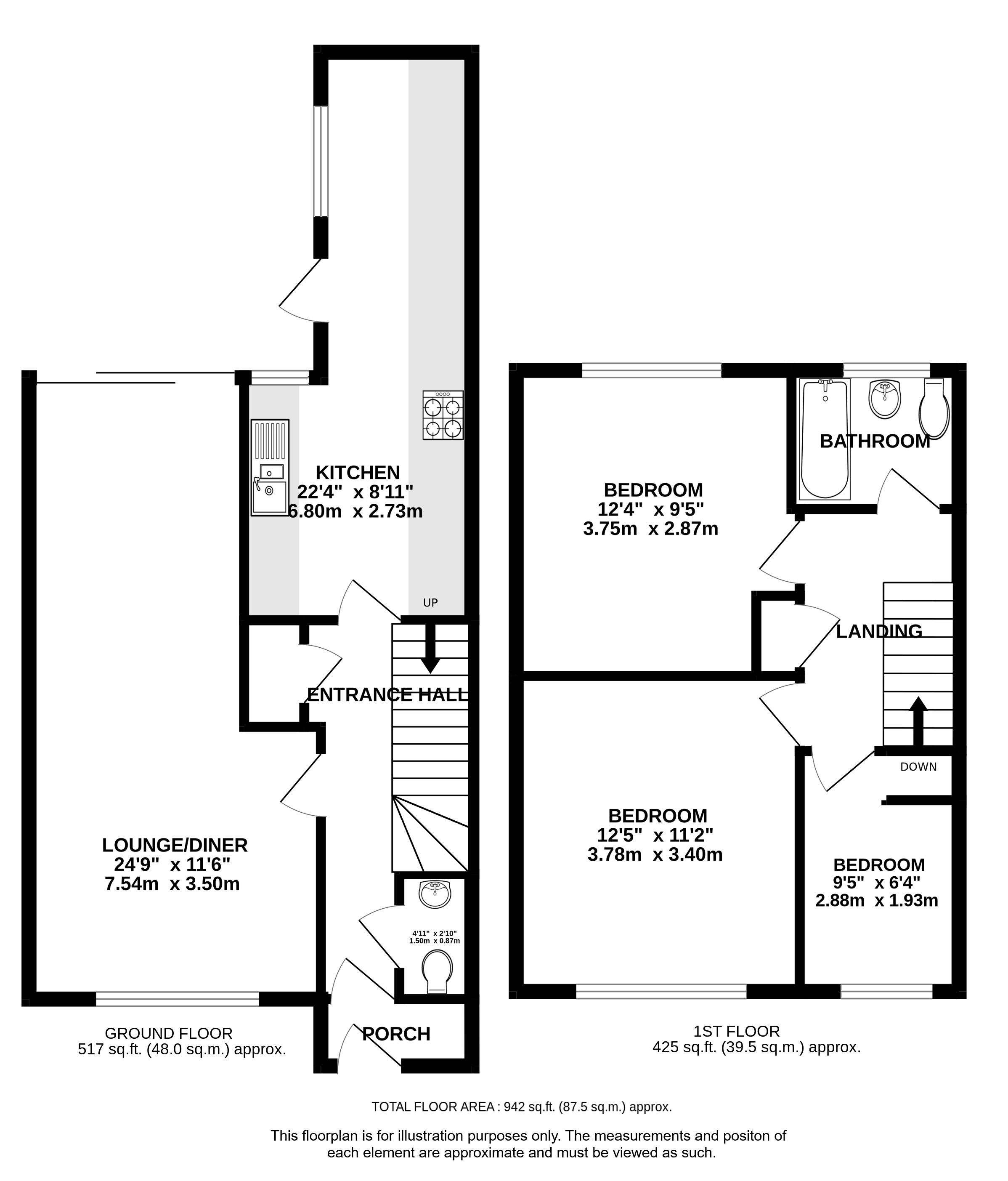
Downstairs, as you enter the property you are greeted by the welcoming hallway, with a useful cloakroom just off, and access through to the main living area. A wonderfully bright space with ample room for a dining room table and number of sofas, there are also sliding doors opening out to the rear garden. From here, the contemporary kitchen, extended to the rear, is spacious and well appointed with a range of built in appliances.

Upstairs there are three bedrooms, two of which are generous doubles and the main bedroom has a number of built in wardrobes, as well as a modern family bathroom.

To the front of the property there is a lawn either side of a pathway leading up to the front door, whilst the good size rear garden has both a patio and another lawned area.

Sherwoods Rise is a quiet cul-de-sac at the top of Piggottshill Lane and is positioned towards the south side of Harpenden. This location provides easy access to the town centre and station, which are both no more than a 20 minute walk away. Southdown's shopping facilities, pubs and restaurants, are also just a short stroll away. Harpenden Common and Aldwickbury Park golf courses are also nearby. It is also a favourable choice for those seeking Harpenden's schools with High Beeches, Crabtree and The Grove all within a short walk of the property.

Council Tax Band D: £2,342.57 (25/26)

Buyers Information:
In compliance with the UK's Anti Money Laundering (AML) regulations, we are required to confirm the identity of all prospective buyers at the point of an offer being accepted and use a third party, Identity Verification System to do so. There is a nominal charge of £48 (per person) including VAT for this service. For more information, please refer to the terms and conditions section of our website.

Whether you’re looking to
  • buy
  • sell
  • rent
  • let
  • buy
we would love to help.