Luton Road, Harpenden, Hertfordshire, AL5 3NF

Let Agreed
£1,900 PCM
Bedrooms
2
Bathrooms
2
Receptions
1

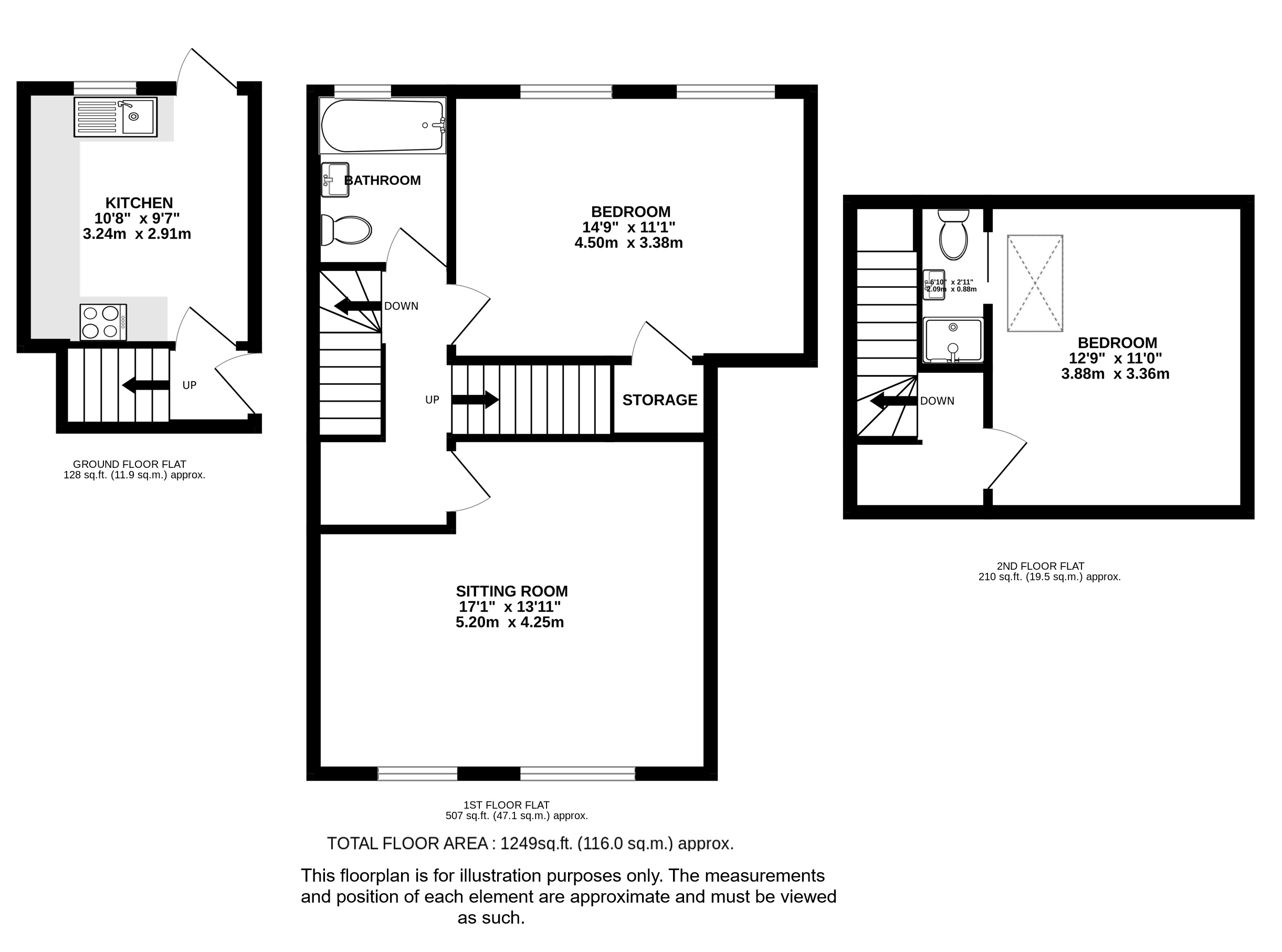
A beautifully presented self-contained three-storey maisonette with parking and a garage to the rear.

A beautifully presented masonette thoughtfully arranged over three floors, offering modern and spacious living. The ground floor comprises an entrance hall and a stylish, neutral kitchen/breakfast room with ample unit and storage space, leading to a private courtyard garden.
The first floor features a generous lounge, a double bedroom, and a modern tiled bathroom with a bath and overhead shower. A modern glass staircase leads to the top floor, which includes a bright bedroom with Velux windows, an en-suite shower room, and additional storage space.
This home boasts a modern feel throughout, high ceilings, and plenty of natural light from numerous Velux windows. Further highlights include a small private courtyard garden accessed from the kitchen, and parking with a garage located to the rear.

Located on the Luton Road, close to Harpenden town centre. The village is conveniently located within easy reach of the M1 and M25 motorways, Luton Airport and efficient rail Links at Harpenden presenting direct access to St Pancras International in under 30 minutes.

Council Tax Band:
Council Tax Payable: £
Holding Deposit: £
Total Deposit: £2,192.3

Whether you’re looking to
  • buy
  • sell
  • rent
  • let
  • buy
we would love to help.