Oaklands Lane, Smallford, St Albans, AL4 0HS

Let
£2,950 PCM
Bedrooms
4
Bathrooms
3
Receptions
2
EPC:
B

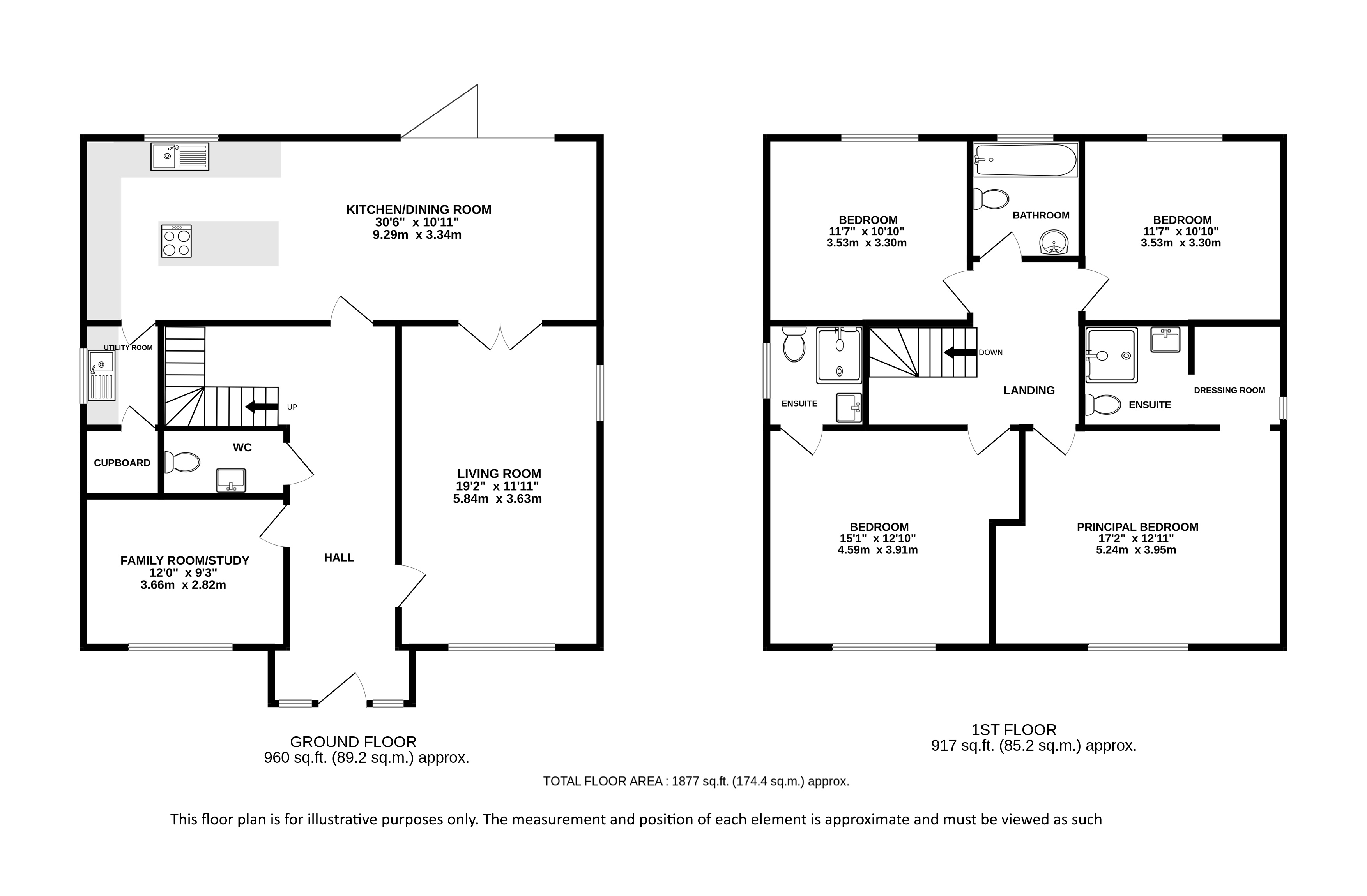
Brand new four bedroom luxury detached home, located in the picturesque village of Smallford near St Albans. With 1876 sqft of well laid out accommodation, this stunning detached family home benefits from underfloor heating, integrated appliances, two reception rooms, solar panels and high specification finish throughout.

This stunning, modern new build home offers a spacious open-plan kitchen/dining room area to the rear of the property, perfect for both entertaining guests and relaxing with family. The high-quality kitchen is fully fitted with integrated appliances and features ample work surfaces and storage space and there is a separate utility room.

The separate living room is bright and airy, with large windows that allow plenty of natural light to flood in.

The ground floor also features a family room/study, providing a comfortable and private space for relaxing in peace, and a cloakroom.

To the first floor you will find four well-proportioned bedrooms, each one offering plenty of space and comfort. The principal bedroom boasts a dressing area and ensuite shower room. Bedroom two also has an ensuite, while the other two bedrooms are serviced by the family bathroom. All bathrooms are finished to a high standard, featuring modern fittings and sleek design.

In summary, this stunning 4 bedroom detached new build home in Smallford is the perfect combination of modern design, comfort, and convenience. With easy access to transport links and outstanding schools, it offers an ideal location for families and commuters alike.

Council tax: TBC
Holding deposit: £657.69
Deposit: £3,288.46

Whether you’re looking to we would love to help.