Ludlow Avenue, Redbourn, Luton, LU1 3RW

£2,500 PCM
Bedrooms
3
Bathrooms
2
Receptions
2
Council Tax:
F
EPC:
B

A beautifully presented three double-bedroom detached home located on Ludlow Avenue. Set on a private, gated access road and close to the M1 and Luton Airport.

A beautifully presented three double-bedroom detached home located on Ludlow Avenue, South Luton. Set on a private, gated access road lined with substantial detached properties, this home offers excellent privacy and generous living accommodation.

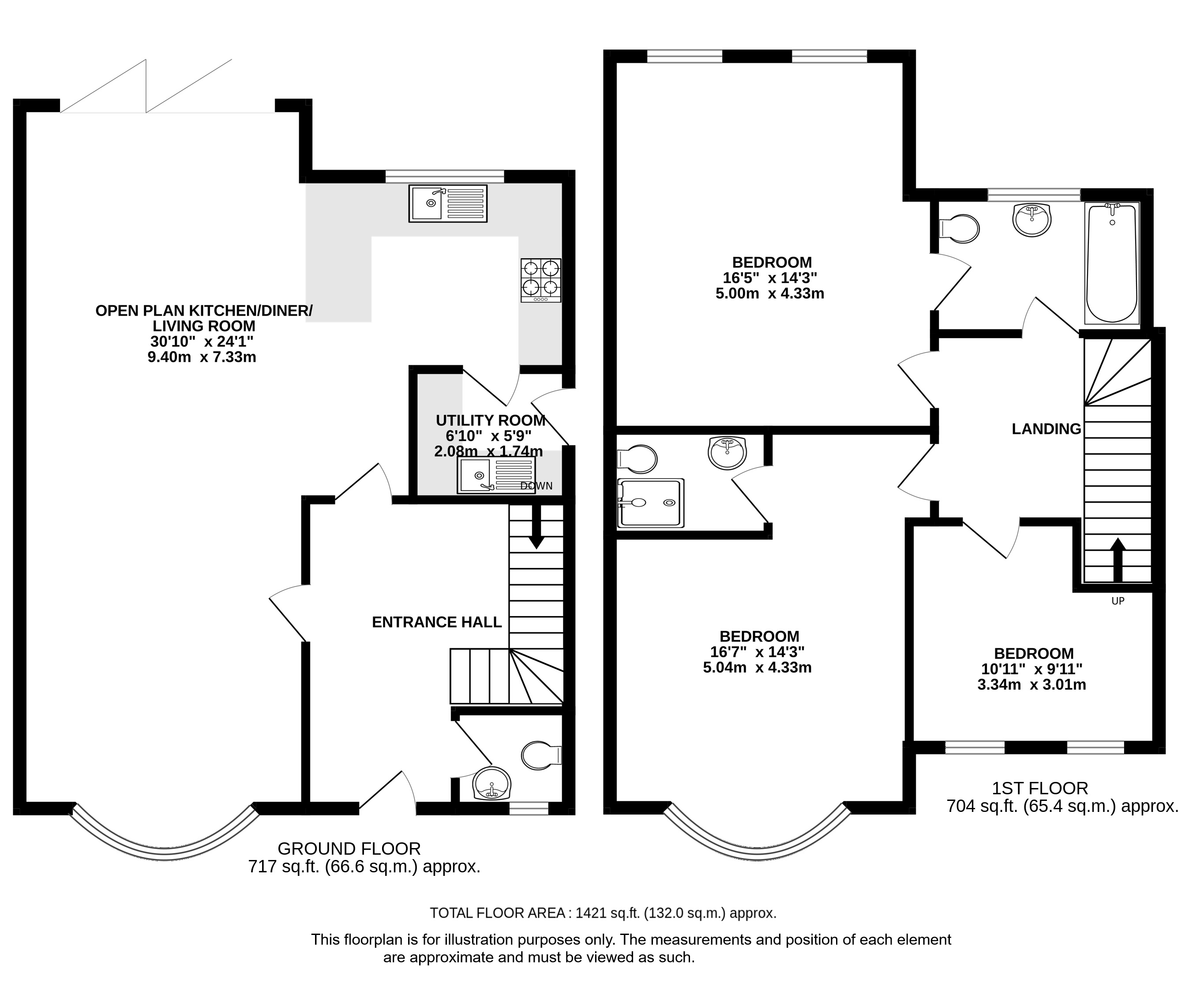
The ground floor features an entrance hall with doors leading to the bright and spacious lounge, kitchen, and stairs to the first floor. The impressive living area extends to approximately 30ft and flows effortlessly into the open-plan kitchen with separate utility room. The kitchen, finished to a high standard with granite worktops, also includes a range of integrated appliances. A cloakroom completes the ground floor.

On the first floor, you will find a lovely bay-fronted master bedroom with an adjoining en-suite shower room. The second bedroom benefits from Jack and Jill access to the family bathroom. The third bedroom, also a generous double, offers a light and airy feel with dual front-aspect windows.

To the front, the property provides parking for two to three vehicles.

The rear garden is approximately 100ft in length and features a separate paved area, lawn, and attractive surroundings. Please note: Tenants are required to pay an additional £60 per calendar month to cover gardening costs.

Ludlow Avenue is a highly regarded gated private road surrounded by the picturesque Kidney Wood nature trail within walking distance of Stockwood Park golf course. This quiet road provides the ideal setting for any family with excellent schools just moments away. Easy access is also available to Luton Airport Park Way and Harpenden mainline stations making London less than 30 minutes away!

Council Tax Band:
Council Tax Payable: £3,351.74
Holding Deposit: £576.92
Total Deposit: £2,885

Whether you’re looking to
  • buy
  • sell
  • rent
  • let
  • buy
we would love to help.