Grove Road, Harpenden, Hertfordshire, AL5 1HD

£3,500 PCM
Bedrooms
4
Bathrooms
2
Receptions
2
Council Tax:
F
EPC:
B

Spacious four-bedroom new build semi-detached home set over three floors with garden and ample parking.

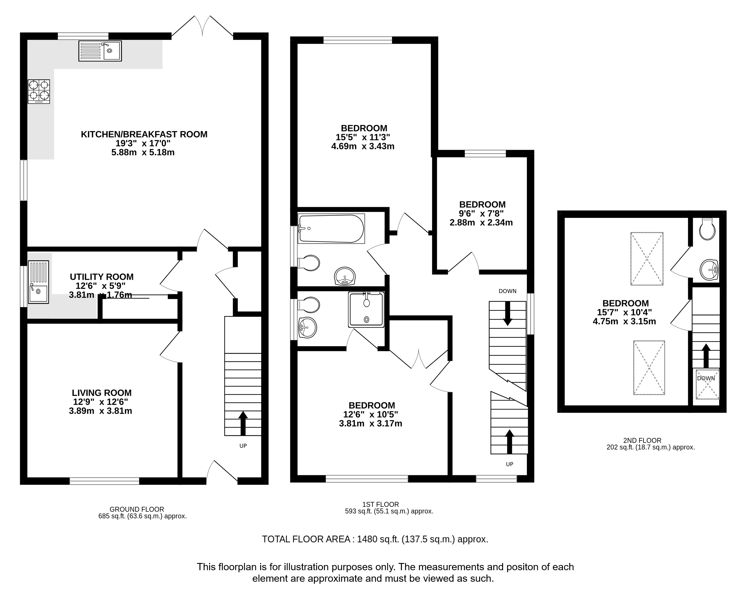
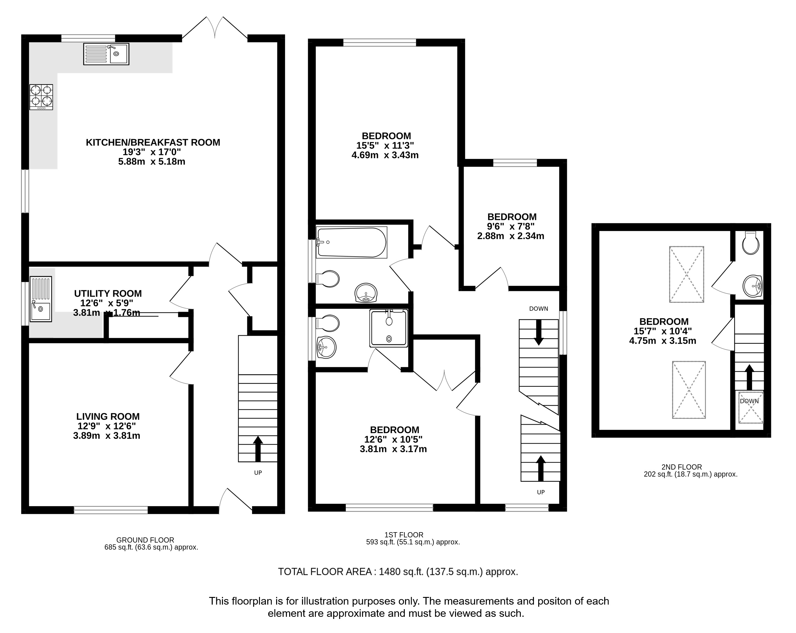
This beautifully presented new build semi-detached property offers spacious and modern living arranged over three floors. You are welcomed into a bright and airy entrance hallway featuring stylish wooden flooring that runs throughout the ground floor. To the front of the property is a well-proportioned lounge. To the rear, you will find a contemporary open-plan kitchen and dining area finished in neutral tones, complete with integrated appliances. French doors open out onto a private rear garden, which features a paved patio, lawn area, storage shed, and convenient side access.

The ground floor also benefits from a separate utility room with a washer/dryer, additional sink, and ample storage cupboards throughout.

On the first floor, the property is fully carpeted and comprises three generously sized bedrooms. The principal bedroom is located at the front and includes fitted wardrobes and a modern en-suite shower room. The remaining two bedrooms are served by a stylish, fully tiled family bathroom.

The spacious fourth bedroom occupies the top floor, enjoying natural light from Velux windows and the added benefit of a private cloakroom.

To the front, the property boasts a paved driveway providing off-street parking for up to four vehicles.

Additional features include an energy-efficient heat pump system. A new EPC certificate is currently being prepared.

Grove road is a pretty setting within a short walk of Southdown's excellent shops and pubs and approximately just over a mile from Harpenden Town centre and mainline station. Grove School is just a short stroll from the front door. The property is also well placed to take advantage of some of Hertfordshire’s finest walks.

Council Tax Band F: £3,383.72 (25/26)

Council Tax Band:
Council Tax Payable: £3,383.72
Holding Deposit: £807.69
Total Deposit: £4,038.46

Whether you’re looking to
  • buy
  • sell
  • rent
  • let
  • buy
we would love to help.