Talbot Street, Hitchin, SG5 2QU

Sale Agreed
Guide price of £800,000
Bedrooms
4
Bathrooms
2
Receptions
2
Council Tax:
F
EPC:
B
Freehold

Built from new in 2017, this immaculately presented modern family home offers spacious open-plan living in a highly desirable area of Hitchin.

Set on a quiet private road on the highly sought-after west side of Hitchin, this immaculate detached family home offers an excellent balance of comfort, style and practicality, perfectly suited to modern family living. The property is ideally positioned within easy reach of the town centre, well-regarded schools, excellent transport links, local amenities and an abundance of nearby green spaces with walking and cycling routes.

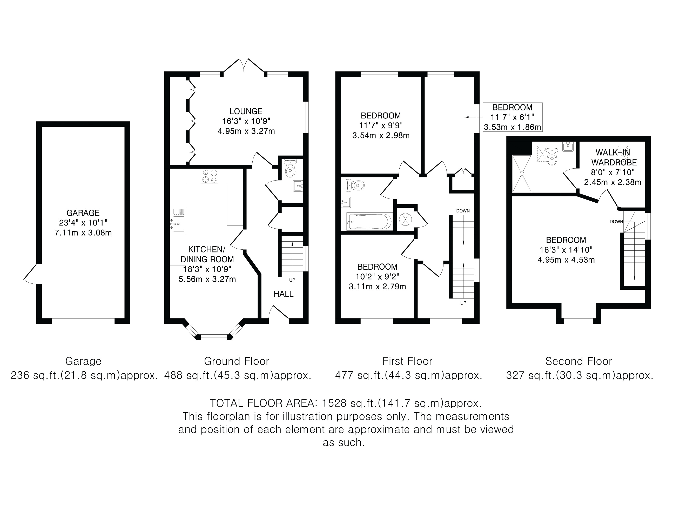
You enter this immaculate four-bedroom detached home through a bright and welcoming hallway, finished with high quality flooring, useful built-in storage, and a conveniently located W.C. To the front of the property sits a beautifully presented modern kitchen/dining room, complete with a charming bay window that fills the room with natural light. The kitchen boasts sleek integrated appliances, generous worktop space, and ample cabinetry, creating a perfect setting for both everyday family meals and entertaining.

To the rear, the home opens into a wonderfully spacious lounge, enhanced by bespoke built-in media storage that adds both style and practicality. Large patio doors span the back wall, seamlessly connecting the living space with the south-facing garden and allowing sunlight to pour into the room. The entire ground floor benefits from the comfort of underfloor heating, providing a warm and luxurious feel throughout.

The first floor offers three well-proportioned bedrooms, all served by a stylish and contemporary family bathroom. A thoughtfully designed open area by the stairs, currently utilised as a study or reading nook, adds versatility to the space and leads to the impressive principal bedroom. This generously sized room features a luxurious walk-in wardrobe and a modern en-suite shower room, creating a private retreat.

Outside, the south-facing rear garden is beautifully landscaped, featuring two separate patio areas perfect for outdoor dining, relaxation, or entertaining. A well-kept lawn offers space for children to play or for gardening enthusiasts to enjoy, and there is convenient pedestrian access to the detached garage. The property further benefits from its own private driveway, providing off-road parking for two cars, along with a fitted EV charger for added convenience.

Talbot Street is a private and highly regarded residential road on the sought-after west side of Hitchin, particularly popular with families. The area is well known for its excellent school catchment and convenient access to local amenities, while still being within walking distance of the town centre. Residents also benefit from beautiful nearby countryside walks, including Oughton Head Nature Reserve and the open green spaces along Oughton Head Way.

Council Tax Payable: £3,486.85 (2026/2027)
Service Charge: £450.00 per annum
Buyers Information:
In compliance with the UK's Anti Money Laundering (AML) regulations, we are required to confirm the identity of all prospective buyers at the point of an offer being accepted and use a third party, Identity Verification System to do so. There is a nominal charge of £48 (per person) including VAT for this service. For more information, please refer to the terms and conditions section of our website.

Whether you’re looking to
  • buy
  • sell
  • rent
  • let
  • buy
we would love to help.