Holwell Road, Holwell, SG5 3SL

Guide price of £650,000
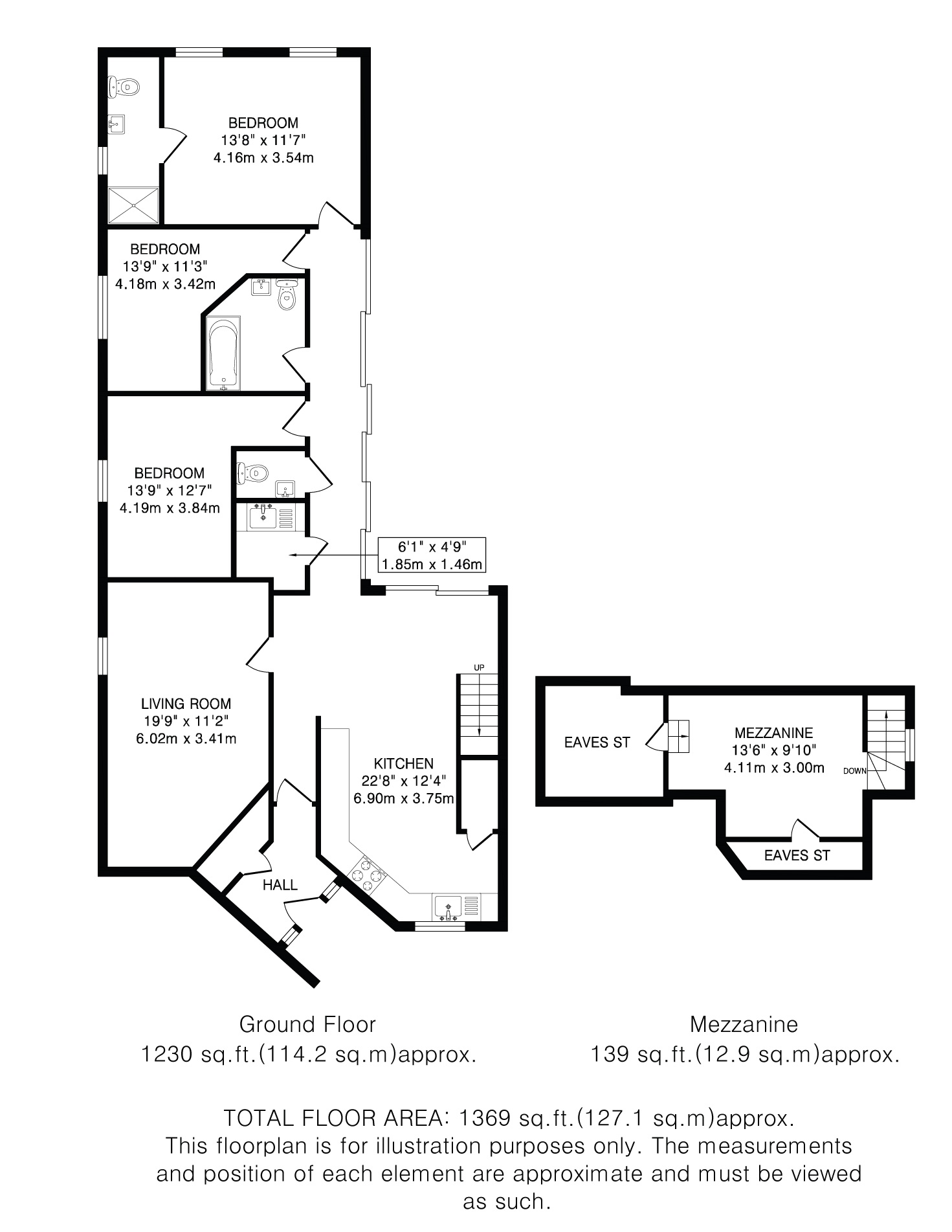
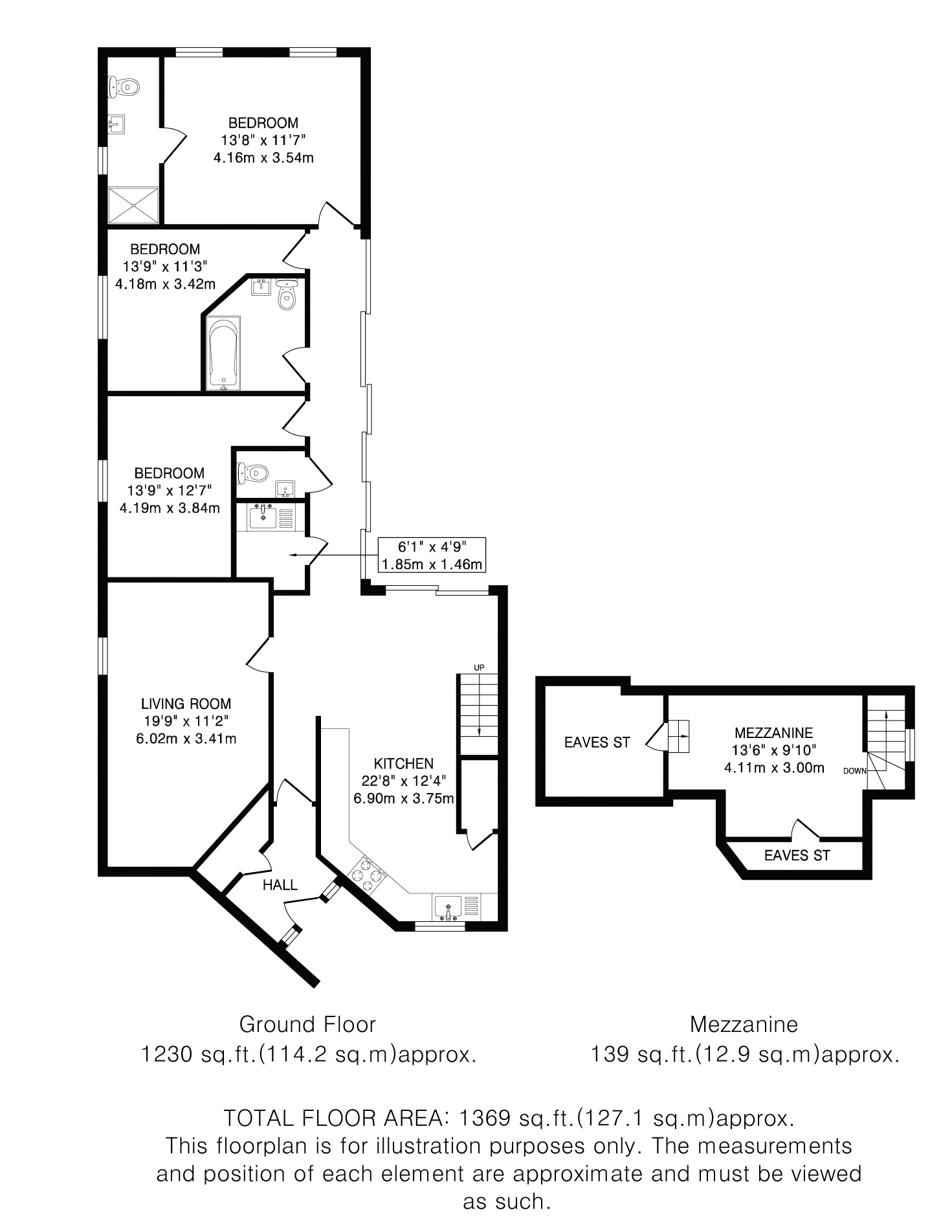
Bedrooms
3
Bathrooms
2
Receptions
2
Council Tax:
E
EPC:
C
Freehold

CHAIN FREE. A rare opportunity to acquire a unique three-bedroom family home, tucked away in the charming village of Holwell on the edge of Hitchin.

We are delighted to present this striking architect-designed home, tucked away at the end of a long driveway and backing onto the village recreation ground. Perfectly positioned, it offers the charm of village life with the comfort and style of modern living.

You are welcomed by a spacious entrance hall, which leads into a generous living room with a feature electric fireplace. At the heart of the home is a stunning open-plan kitchen, dining, and breakfast room, filled with natural light and enjoying views over the rear garden. From here, a stylish mezzanine overlooks the space, currently used as a playroom but equally suited as a snug or home office, with access to a large eaves storage cupboard.

The ground floor also includes a practical utility cupboard and a cloakroom. There are three well-proportioned double bedrooms, a modern family bathroom, and a principal bedroom complete with its own en-suite shower room.

Outside, the property benefits from a gravelled driveway with parking for several vehicles. The rear garden is designed for family living and entertaining, featuring a large patio, a generous lawn, a barked play area for children’s equipment, and a wooden shed.

Holwell is a charming village on the fringes of Hitchin in Hertfordshire, surrounded by picturesque countryside. It offers a serene lifestyle with convenient access to urban amenities in Hitchin. The village boasts scenic beauty, rolling hills, and lush landscapes. It provides a peaceful retreat with a close-knit community, local amenities, and recreational spaces. Residents can enjoy countryside walks and outdoor activities making it an ideal choice for those seeking a peaceful village lifestyle without sacrificing modern conveniences.

Council Tax Band E: £2,163.17 (2025/26)
Service Charge: £0.00 per annum

Buyers Information:
In compliance with the UK's Anti Money Laundering (AML) regulations, we are required to confirm the identity of all prospective buyers at the point of an offer being accepted and use a third party, Identity Verification System to do so. There is a nominal charge of £48 (per person) including VAT for this service. For more information, please refer to the terms and conditions section of our website.

Whether you’re looking to
  • buy
  • sell
  • rent
  • let
  • buy
we would love to help.