High Street, Whitwell, SG4 8AJ

Guide price of £475,000
Bedrooms
3
Bathrooms
1
Receptions
1
Council Tax:
E
EPC:
D
Freehold

A recently renovated, spacious three-bedroom home just off Whitwell’s popular High Street, combining modern finishes with excellent local amenities.

This stunning property has been completely modernised throughout and is ready to move into. It combines high-quality finishes with spacious accommodation and a convenient location.

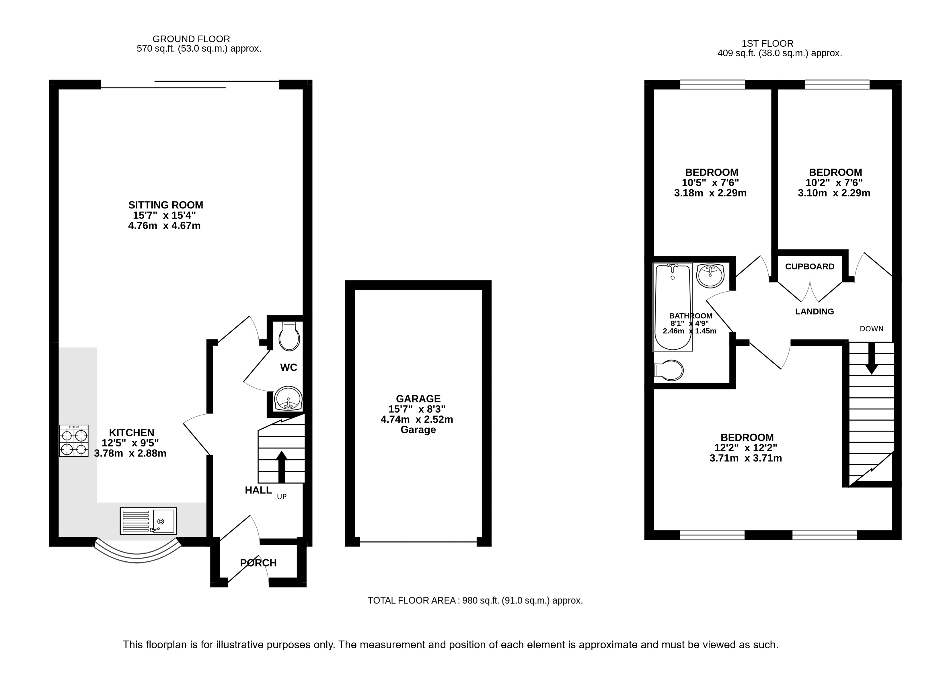
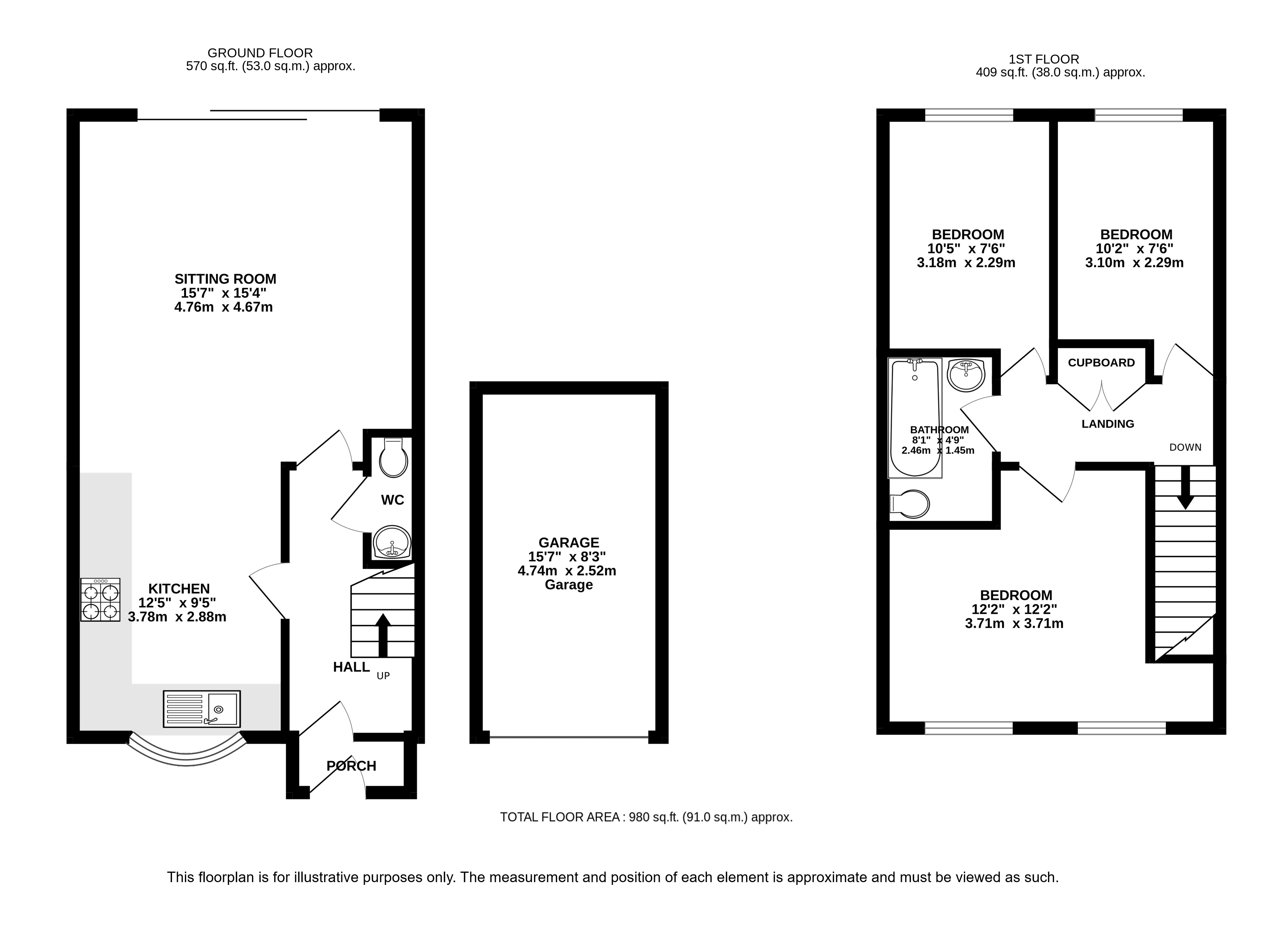
The accommodation comprises a porch and entrance hall with a downstairs cloakroom. The impressive open-plan kitchen, dining, and sitting area features sliding doors that open onto the rear garden. The newly fitted kitchen offers a range of units and integrated appliances.

Upstairs, there are three double bedrooms and a stylish family bathroom.

Outside, the front features a shared driveway and a single garage providing off-road parking, with a raised terraced garden leading to the front door. The rear garden includes lower and raised shingled seating areas, steps up to a lawned area, and established shrubs and trees, creating a lovely outdoor space.

N.B Further potential to facilitate conversion of loft space into habitable accommodation.
Planning Reference :24/00887/FPH

Whitwell is a charming and active village, you’ll be within easy reach of a local pub, a shop with post office, a popular cycling café, and even an outdoor theatre. There are also beautiful countryside walks on your doorstep, perfect for those who enjoy an active, rural lifestyle with a strong sense of community. More extensive shopping and leisure facilities can be found in the nearby market town of Hitchin.

Council Tax Band E: £2,850.97 (2025/26)
Service Charge: £0.00 per annum

Buyers Information:
In compliance with the UK's Anti Money Laundering (AML) regulations, we are required to confirm the identity of all prospective buyers at the point of an offer being accepted and use a third party, Identity Verification System to do so. There is a nominal charge of £48 (per person) including VAT for this service. For more information, please refer to the terms and conditions section of our website.

Whether you’re looking to
  • buy
  • sell
  • rent
  • let
  • buy
we would love to help.