Whitehill Road, Hitchin, Hitchin, SG4 9HY

Guide price of £1,100,000
Bedrooms
4
Bathrooms
2
Receptions
3
Council Tax:
F
EPC:
C
Freehold

A well-loved family home, discreetly positioned off popular Whitehill Road in the sought-after SG4 9 postcode, offering spacious accommodation, versatile living, and gardens.

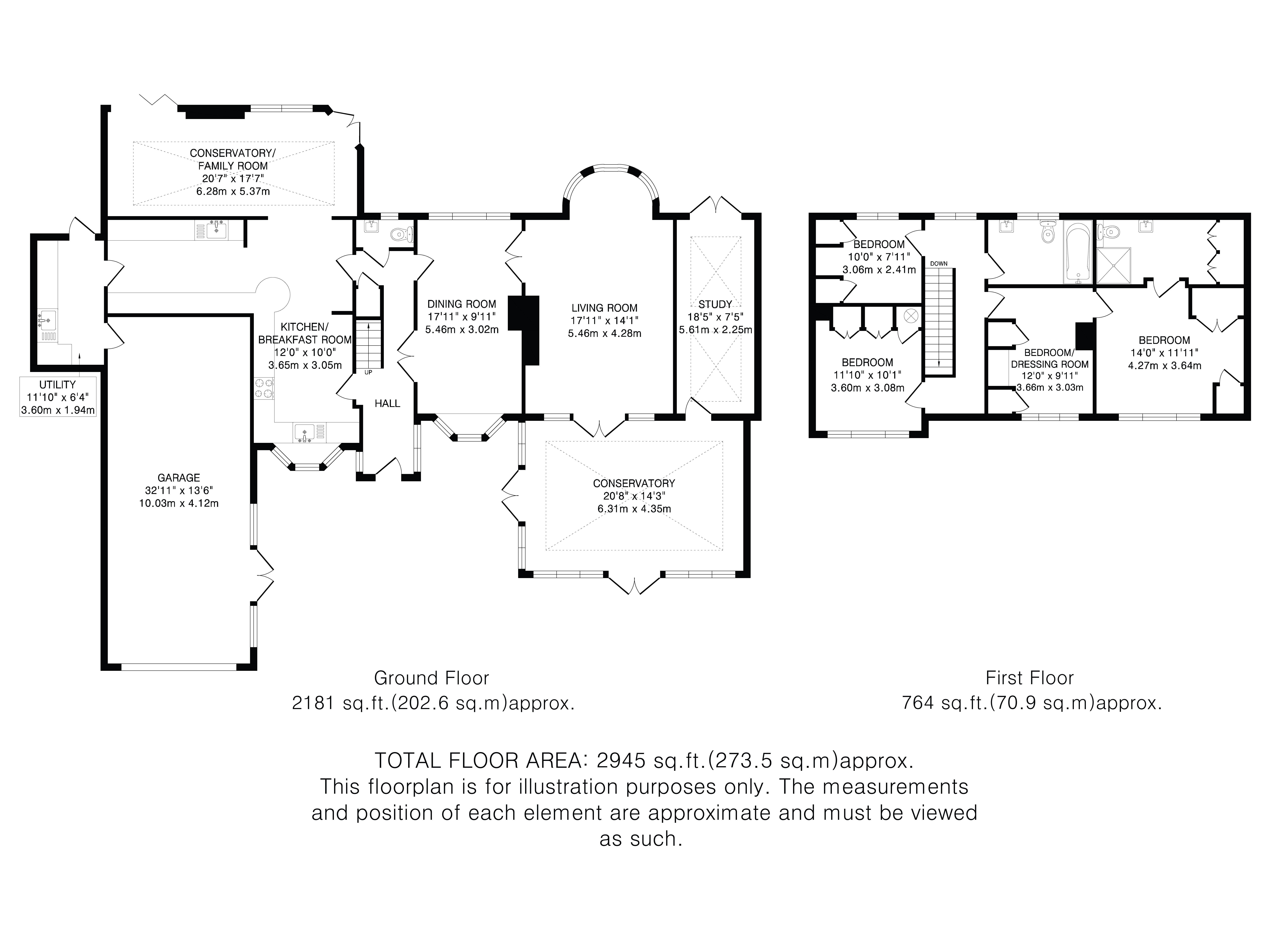
This rarely available four-bedroom detached family home has been cherished by its current owners for over 30 years. Tucked away just off Whitehill Road, in a setting shared with only three neighbouring properties, it offers a wonderful balance of privacy, space, and potential.

The accommodation begins with a porch leading into a welcoming entrance hall with a cloakroom. A generous dual-aspect sitting room, filled with natural light, flows into a formal dining room and an impressive conservatory with double doors and views over the front garden. A versatile study sits just off this space.

At the heart of the home is a bespoke kitchen/breakfast/dining/family room, complete with integrated appliances, a large breakfast island, and a conservatory-style roof that floods the area with light. A utility room connects directly to the integral tandem double garage, which offers excellent potential for conversion (subject to planning).

Upstairs, there are four bedrooms. One is currently arranged as a dressing room with fitted wardrobes leading into the principal bedroom, which also enjoys an en-suite shower room. A family bathroom serves the remaining bedrooms.

Outside, the property sits within generous gardens to both front and rear, planted with a variety of established shrubs, trees, and plants. The front offers a driveway, garage access, and patio seating area, while the rear is tiered and features further patios, seating areas, and an artificial lawn.

This is a versatile home with an abundance of space, charm, and opportunity to update or enhance to suit a new owner’s requirements.

The property is situated on Whitehill Road, within walking distance of both the mainline station and town centre. Ideally positioned for families, it is perfectly placed for highly regarded local schools, with Whitehill JMI School located just opposite. Additionally, the well-known Kingshott private school is also within walking distance, making this an exceptionally convenient and sought-after location.

Council Tax Band F: £3,326.05 (2025/26)

Buyers Information:
In compliance with the UK's Anti Money Laundering (AML) regulations, we are required to confirm the identity of all prospective buyers at the point of an offer being accepted and use a third party, Identity Verification System to do so. There is a nominal charge of £48 (per person) including VAT for this service. For more information, please refer to the terms and conditions section of our website.

Whether you’re looking to
  • buy
  • sell
  • rent
  • let
  • buy
we would love to help.