Pirton Road, Hitchin, SG5 2BD

Guide price of £1,450,000
Sale Agreed
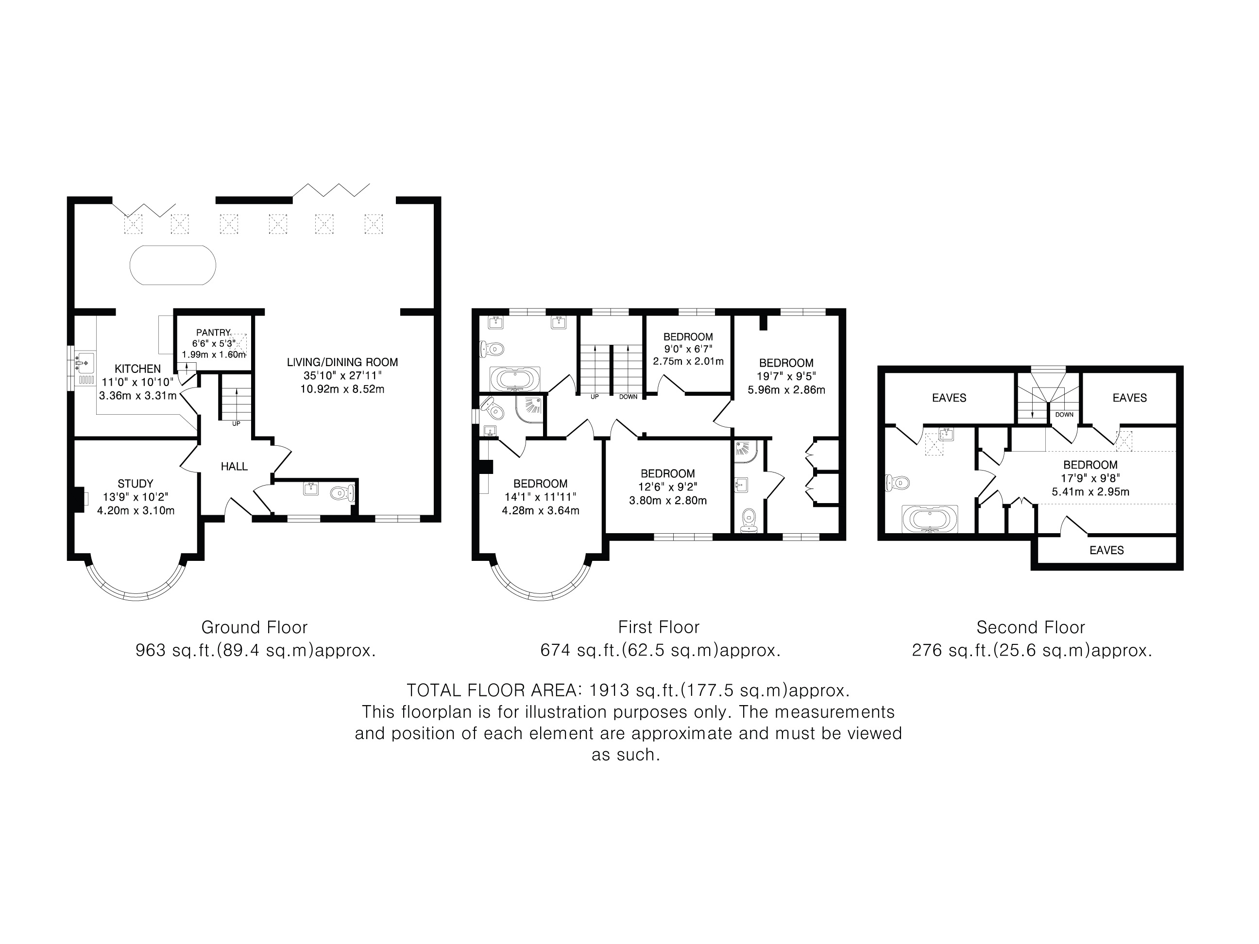
Bedrooms
5
Bathrooms
4
Receptions
3
Council Tax:
F
EPC:
D
Freehold


This property has now been SOLD OFF MARKET by Ashtons and is no longer available. Please contact us if you would like information on similar properties.

This beautifully presented home offers spacious and well balanced living throughout. The entrance hall includes a downstairs cloakroom and leads to a separate reception room with an open fireplace. The heart of the home is the open-plan kitchen/breakfast room, which features a large walk-in pantry and flows into a dining area with bi-folding doors spanning the rear of the house. This opens into a generous living room with a wood-burning stove, creating a bright and welcoming space. Upstairs, the first floor offers four bedrooms, two of which benefit from en-suite bathrooms, while the remaining bedrooms are served by a modern family bathroom. The entire second floor is dedicated to a guest bedroom with its own en-suite, offering a private and comfortable space.
Outside, the front of the property features a large driveway with parking for multiple vehicles and is bordered by mature plants, shrubs, and trees. The rear garden includes a spacious decked area, a well-kept lawn with established planting, and a raised decking area at the back with a charming summer house, ideal for relaxing or entertaining

Pirton Road is a highly sought-after residential street, known for its attractive 1930s style homes and peaceful setting. It offers convenient access to open countryside, while being just a short walk from Hitchin town centre and its wide range of local amenities. The area is also well placed for a number of highly regarded local schools, making it an ideal location for families.

Council Tax Band F: £3,326.05 (2025/26)
Service Charge: £0.00 per annum

Buyers Information:
In compliance with the UK's Anti Money Laundering (AML) regulations, we are required to confirm the identity of all prospective buyers at the point of an offer being accepted and use a third party, Identity Verification System to do so. There is a nominal charge of £48 (per person) including VAT for this service. For more information, please refer to the terms and conditions section of our website.


Floor plans

Request a viewing