Springhead Lane, Hitchin, SG4 0LJ

Sale Agreed
Guide price of £950,000
Bedrooms
5
Bathrooms
3
Receptions
3
Council Tax:
G
EPC:
C
Freehold

This is a magnificent five-bedroom detached property nestled in a sought-after area of Hitchin. This stunning residence offers a harmonious blend of contemporary luxury and open plan living, making it an ideal family home.

Built in 2022 by Cala homes, this wonderful five-bedroom detached family home is offered to the market in immaculate condition throughout and benefits from no onward chain. Set over three floors, this property offers versatile living throughout and is situated within a quiet family oriented development which is popular due to its close proximity to the mainline station, NHC sports hub and with ease of access onto Purwell Meadows for Countryside walks.

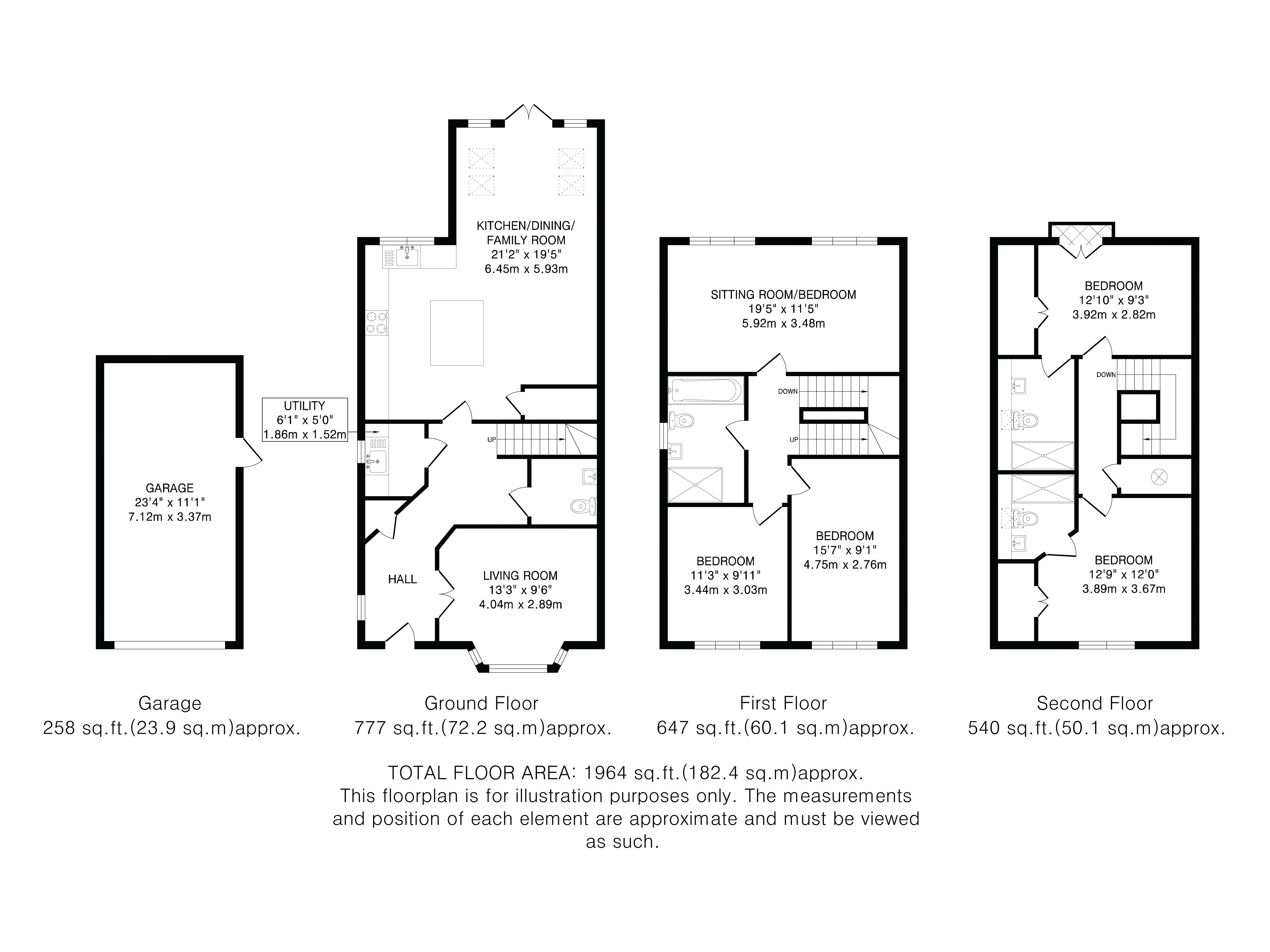
Ground floor accommodation includes spacious entrance hall with storage, living room with bay window, W.C, utility room and a bright, open plan modern kitchen/dining/family room with a breakfast island and patio doors that lead onto the rear garden.

On the first floor are three double bedrooms and large four-piece family bathroom. The second floor offers a rear aspect double bedroom with fitted wardrobes and a Juliet balcony and en-suite shower room. There is also a further double bedroom with fitted wardrobes and a en-suite shower room.

Outside, to the front there is a small garden which is full of plants and shrubs with a patioed pathway leading to the front door. There is a driveway leading to a single garage that provides off-road parking for numerous vehicles. The garden is mainly laid to lawn again with various established plants shrubs and trees with a large patio and a raised decked area. There is a side door leading into the garage that has power and lighting.

We have been advised by the vendors there is a shared Management Charge of ÔøΩ191.36 payable per annum for the estates up keep and maintenance.


North Hertfordshire District Council Band G ÔøΩ3,837.75 (2025/26)

This modern development, built in 2022 from new, offers a diverse mix of larger and smaller homes alongside a selection of luxury apartments. Known for its quiet, family-friendly atmosphere, the area is particularly popular with those who value being within walking distance of the mainline train station and within the catchment area for highly regarded local schools.

Council Tax Band G: £3,837.75 (2025/26)

Buyers Information:
In compliance with the UK's Anti Money Laundering (AML) regulations, we are required to confirm the identity of all prospective buyers at the point of an offer being accepted and use a third party, Identity Verification System to do so. There is a nominal charge of £48 (per person) including VAT for this service. For more information, please refer to the terms and conditions section of our website.

Whether you’re looking to
  • buy
  • sell
  • rent
  • let
  • buy
we would love to help.