Old Rectory Close, Harpenden, Hertfordshire, AL5 2UD

£2,150 PCM
Bedrooms
3
Bathrooms
1
Receptions
1
Council Tax:
E
EPC:
C

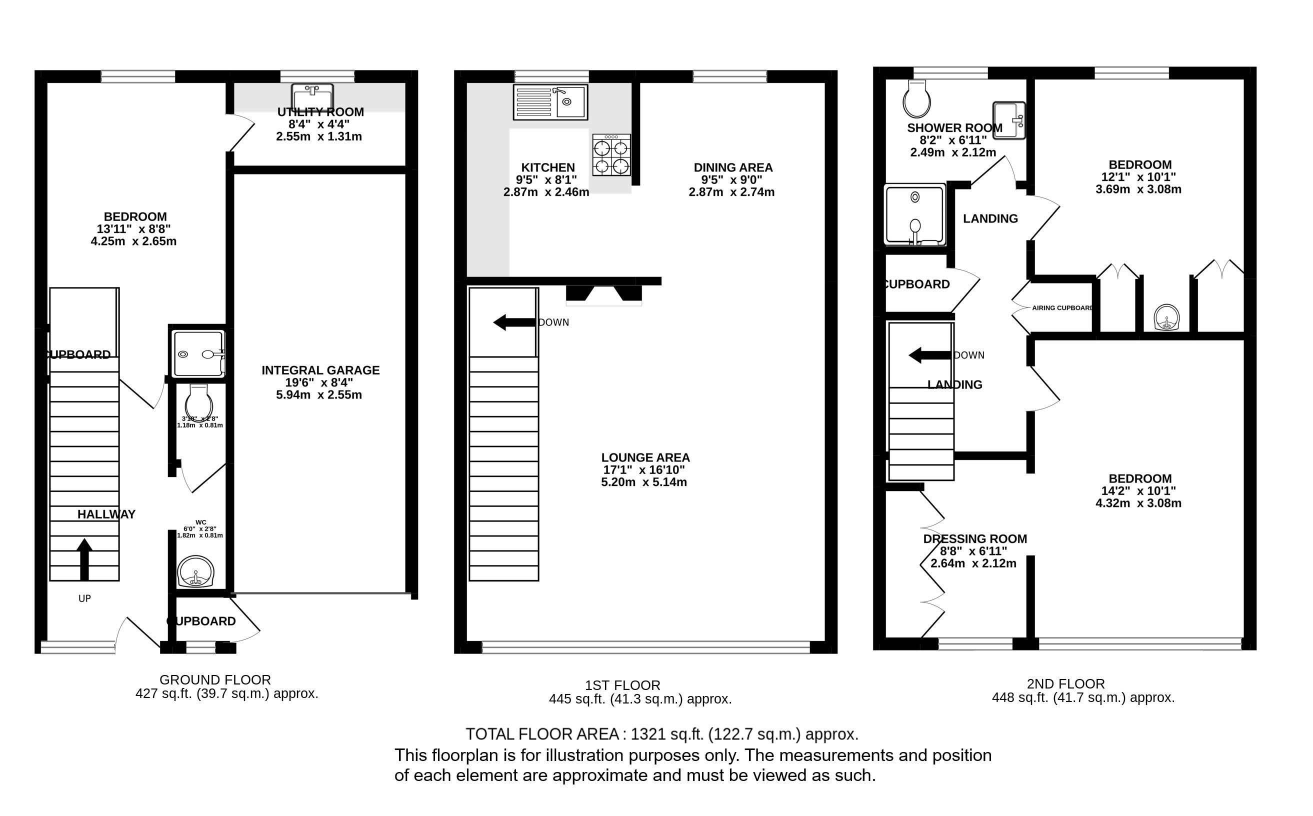
A well-proportioned three-bedroom family home located within a short level walk of Harpenden town centre.

This spacious home is situated in an extremely popular location, presented in good order throughout and offering excellent accommodation arranged over three floors.

On entering the property, there is a versatile ground-floor bedroom, along with a utility room, integral garage and cloakroom. The first floor features a spacious double-aspect lounge/dining room and a kitchen, both enjoying views over the communal gardens.

The top floor provides two well-proportioned bedrooms, one benefiting from a generous dressing room with fitted wardrobes, along with a family bathroom.

Externally, the property offers off-road parking, an integral garage and access to well-maintained communal lawns for the exclusive use of Old Rectory Gardens residents.

Old Rectory Close is a peaceful yet central location providing a quiet retreat close to all the central amenities. Harpenden Town centre with its fine range of shops and restaurants is only a short walk away as is the mainline station providing access into central London in around 30 minutes. A short level walks into town makes this an ideal location for any stage of life.

Council Tax Band:
Council Tax Payable: £2,863.15
Holding Deposit: £496.15
Total Deposit: £2,480.76

Whether you’re looking to
  • buy
  • sell
  • rent
  • let
  • buy
we would love to help.