Pipers Hill, Great Gaddesden, Hemel Hempstead, HP1 3BY

Sale Agreed
Guide price of £1,750,000
Bedrooms
5
Bathrooms
4
Receptions
2
Council Tax:
F
EPC:
D
Freehold

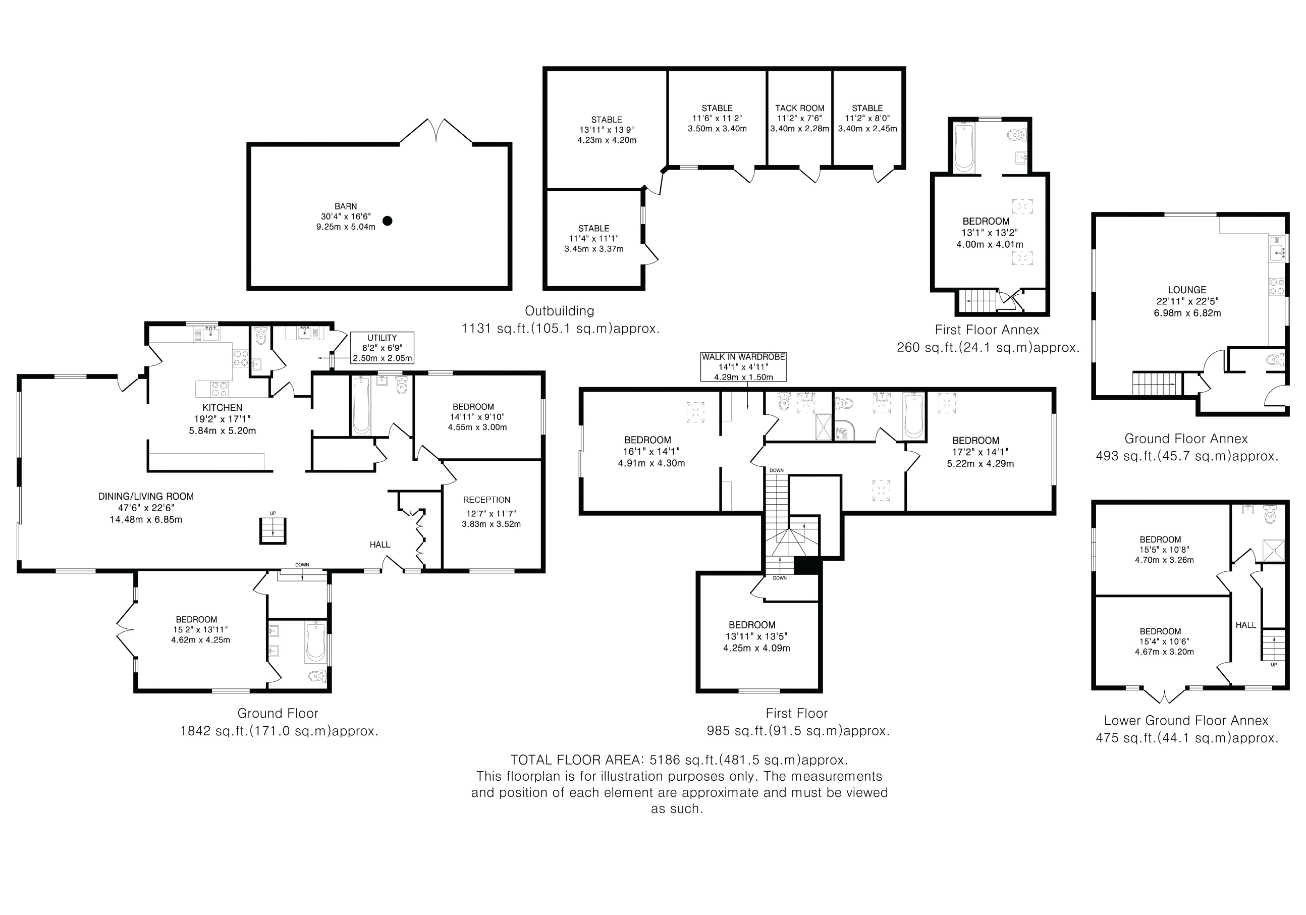
An impressive five-bedroom detached south-facing house, approximately 2.2 acres plot with stunning rural views, equestrian facilities and a detached three bedroom annex.

Nestled in the picturesque village of Great Gaddesden, this stunning detached house offers an idyllic retreat amidst lush greenery while being just a short drive from Berkhamsted's vibrant town centre. Situated on approximately 2.2 acres, south-facing plot with panoramic views of the surrounding fields, this property boasts equestrian facilities and ample space for outdoor enjoyment.

As you enter through the grand carriage driveway, you'll immediately appreciate the tranquillity and privacy this home affords. The additional three bedroom, two bathroom annex provides versatile living space, ideal for guests or extended family members.

Inside the main house, spacious and light-filled rooms await, with triple aspect windows framing stunning views of the countryside. The well-appointed kitchen, complete with an Aga and separate electric hob and ovens, is perfect for culinary enthusiasts. A convenient utility room adds to the practicality of daily living. The property has septic tank drainage.

The equestrian facilities include four stables and a tack room and a separate barn.

The property has five bedrooms offering comfortable accommodation, with the principal bedroom boasting an ensuite bathroom, walk-in wardrove and a private balcony overlooking the scenic surroundings. With two reception rooms and four bathrooms in total, this home provides ample space for modern family living in a truly enchanting setting.

Great Gaddesden is the most delightful hamlet, built around the historic 12th century church of St John the Baptist. It is steeped in history; the medieval convent of St Margarets, now a Buddhist Monastery, stands to the north-west, while the impressive Palladian country house, Gaddesden Place, is positioned to the east and is often used for filming. Directly adjacent to the church is the lovely Church-of-England primary school, and the hamlet is surrounded by beautiful countryside which is ideal for walkers and horse riding. The clear waters of the River Gade can also be found nearby.

Despite the sense of being very rural, Great Gaddesden is located a short drive from both the sought after market town of Berkhamsted, with its wide range of independent boutiques and restaurants, and the larger town of Hemel Hempstead, boasting a wider selection of shops and facilities. Both towns offer mainline train services direct to London Euston in around 30 minutes.

What3words - ///taps.lucky.family

Council Tax Payable: £3,332.53 (2025/26)
Buyers Information:
In compliance with the UK's Anti Money Laundering (AML) regulations, we are required to confirm the identity of all prospective buyers at the point of an offer being accepted and use a third party, Identity Verification System to do so. There is a nominal charge of £48 (per person) including VAT for this service. For more information, please refer to the terms and conditions section of our website.

Whether you’re looking to
  • buy
  • sell
  • rent
  • let
  • buy
we would love to help.