Charming Grade II listed cottage set in 4.8 acres with spacious interiors, stables, paddocks, detached studio, annex and beautiful gardens in a peaceful village.
Nestled on a quiet country lane in the sought-after village of Bovingdon, The Acorn is a charming Grade II listed cottage set behind electric gates with a generous driveway and EV charging point in the garage. Offering approximately 4.8 acres of beautifully landscaped gardens, maintained by a gardener, and adjoining paddocks, this characterful home offers spacious and versatile living throughout.
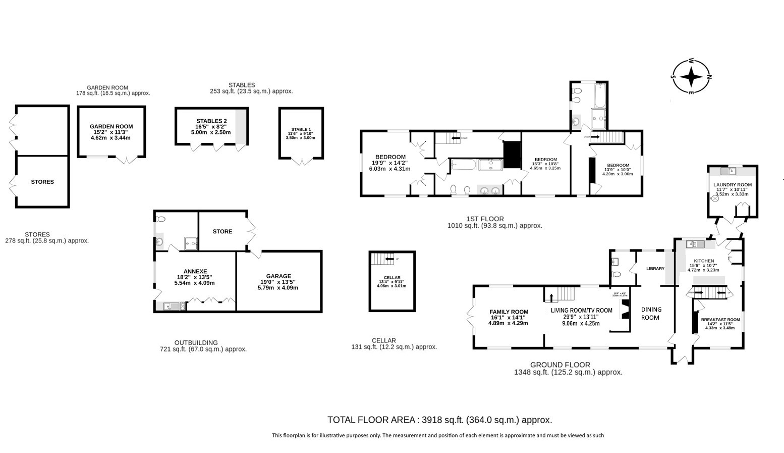
The ground floor includes a welcoming double reception room with a striking inglenook fireplace and log burner, opening directly onto the garden via patio doors. There is a formal dining room and a separate breakfast room. The kitchen has been stylishly refurbished and links to a spacious utility room via a glass walkway. The ground floor also benefits from a cloakroom and a cellar for additional storage.
Upstairs are three well-proportioned bedrooms and two bathrooms, including a principal suite with triple-aspect views and a vaulted-ceiling bedroom.
A detached outbuilding offers a garage, workshop/store, and a self-contained annexe with kitchenette and bathroom.
Additional amenities include a barn building comprising one stable and two store areas, a detached garden room/office with an adjoining store, and a separate block of three stables with a tack room.
Bovingdon is a delightful village with a charming rural atmosphere, situated in Hertfordshire and conveniently close to the larger towns of Berkhamsted and Hemel Hempstead. The village offers a variety of local amenities, including traditional pubs, shops, and a selection of independent businesses, all close to a picturesque village green.
Surrounded by beautiful countryside, Bovingdon provides ample opportunities for outdoor exploration and leisure. The area also benefits from an excellent choice of schools, both state and independent, catering to a range of educational needs.
For commuters, nearby railway stations in Hemel Hempstead (offering a frequent service to London Euston, with journey times from 30 minutes) and Chesham (served by the Metropolitan Line) provide convenient access to London.
The ground floor includes a welcoming double reception room with a striking inglenook fireplace and log burner, opening directly onto the garden via patio doors. There is a formal dining room and a separate breakfast room. The kitchen has been stylishly refurbished and links to a spacious utility room via a glass walkway. The ground floor also benefits from a cloakroom and a cellar for additional storage.
Upstairs are three well-proportioned bedrooms and two bathrooms, including a principal suite with triple-aspect views and a vaulted-ceiling bedroom.
A detached outbuilding offers a garage, workshop/store, and a self-contained annexe with kitchenette and bathroom.
Additional amenities include a barn building comprising one stable and two store areas, a detached garden room/office with an adjoining store, and a separate block of three stables with a tack room.
Bovingdon is a delightful village with a charming rural atmosphere, situated in Hertfordshire and conveniently close to the larger towns of Berkhamsted and Hemel Hempstead. The village offers a variety of local amenities, including traditional pubs, shops, and a selection of independent businesses, all close to a picturesque village green.
Surrounded by beautiful countryside, Bovingdon provides ample opportunities for outdoor exploration and leisure. The area also benefits from an excellent choice of schools, both state and independent, catering to a range of educational needs.
For commuters, nearby railway stations in Hemel Hempstead (offering a frequent service to London Euston, with journey times from 30 minutes) and Chesham (served by the Metropolitan Line) provide convenient access to London.
Council Tax Payable: £3,856.85 (2025/26)
Buyers Information:
In compliance with the UK's Anti Money Laundering (AML) regulations, we are required to confirm the identity of all prospective buyers at the point of an offer being accepted and use a third party, Identity Verification System to do so. There is a nominal charge of £48 (per person) including VAT for this service. For more information, please refer to the terms and conditions section of our website.