Box Lane, Felden, HP3 0DH

Guide price of £1,250,000
Bedrooms
5
Bathrooms
3
Receptions
4
Council Tax:
G
Freehold

A hugely spacious and impressive former chapel located close to the mainline station, sports clubs and popular walks.

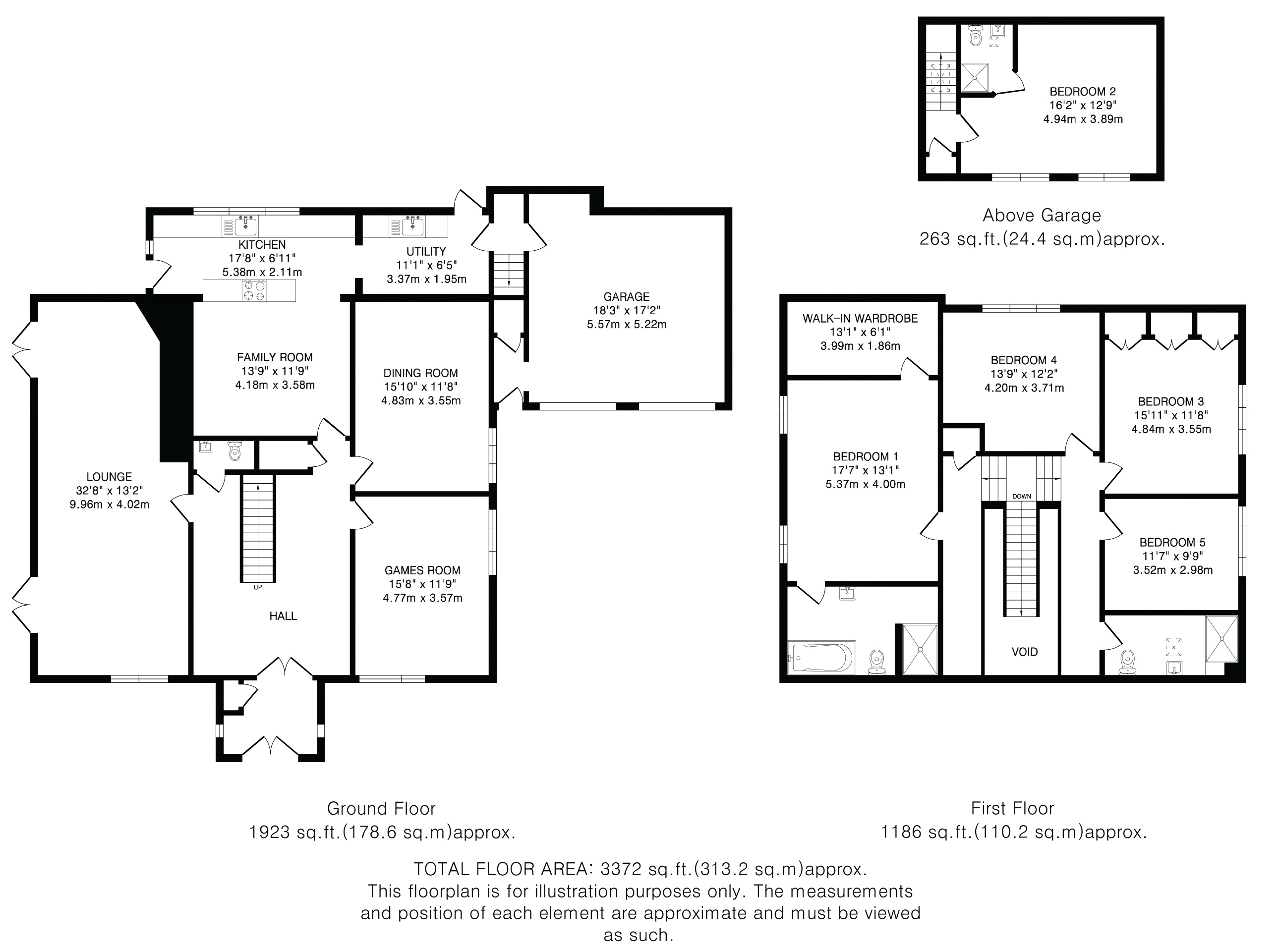
Steeped in history and beautifully reimagined for modern living, this exceptional Grade II Listed detached former chapel offers an extraordinary blend of character, space, and versatility, extending to approximately 3,372 sq ft.

From the moment you step inside, the home makes a lasting impression. A magnificent entrance hall welcomes you with a vaulted ceiling rising to the roofline, a striking circular feature window, and a central staircase leading to an elegant galleried landing setting the tone for the space and grandeur found throughout.

The ground floor provides superb flexibility, with four generous reception rooms to suit a variety of lifestyles. The principal lounge is a particularly inviting space, complete with twin French doors opening onto the garden, allowing natural light to flood in. At the heart of the home lies a wonderful kitchen/family room perfect for everyday living and entertaining alike with direct access outside and a separate utility room beyond. A formal dining room and a well-proportioned games room complete the ground floor accommodation.

Further enhancing the practicality of the home is an integral double garage, with stairs rising to a fifth bedroom featuring its own en suite ideal for guests, older children, or annexe-style living.
Upstairs, the principal suite offers a true retreat, boasting a walk-in wardrobe and spacious en suite bathroom. Three further double bedrooms are served by a well-appointed family shower room, all accessed from the impressive galleried landing.

The well maintained garden has a sunny, south-westerly aspect, is mainly laid to lawn with trees, a summer house and a gate leading to the driveway.

Positioned within easy reach of Hemel Hempstead station and surrounded by delightful countryside walks, this remarkable home offers the best of both worlds - rich heritage combined with contemporary comfort. A fascinating history accompanies the property with a Chapel being on this site since 1690 and more information is available to interested purchasers, adding yet another layer to this truly unique home.

The property is located within walking distance of Hemel Hempstead station and ideally positioned for ease of access onto the A41 which leads to the M25 (Heathrow approx. 25 miles) and the M1 is also close by with access to London and London Luton airport (approx. 14 miles).

Council Tax Payable: £3,969.00 (2026/2027)
Assured move
This property is sold with the benefit of Assured Move from Ashtons Assured Move has been designed specifically to speed up property transactions, reduce stress and create more certainty for both buyers and sellers. With Assured Move the timeframe from sale agreed to exchange of contracts can potentially be halved as the legal work is undertaken in advance of the sale. Upon acceptance of your offer, you will be requested to make a non-refundable payment of £395 plus VAT for the legal pack. The pre-approved legal pack issued to the buyer's solicitor includes: - Land Registry Title Document - Land Registry Title Plan - Pre-prepared Sale Contract - Property Information Form (TA6) - Fittings and Contents Form (TA10) - Personal Search - The pack also contains an exclusivity agreement granting the buyer a pre-agreed period of exclusivity to buy the property and preventing the seller from selling to anyone else.The payment does not form part of the purchase price, and a copy of the Reservation and Exclusivity Agreement is available upon request from Ashtons. You are advised to take legal advice before entering into the Agreement.

Whether you’re looking to
  • buy
  • sell
  • rent
  • let
  • buy
we would love to help.