Cholesbury Road, Wigginton, Tring, HP23 6JQ

£850,000
Bedrooms
4
Bathrooms
2
Receptions
2

A rare opportunity to build a four-bedroom home on a serviced plot in the stunning Chilterns Area of Outstanding Natural Beauty, surrounded by rolling countryside.

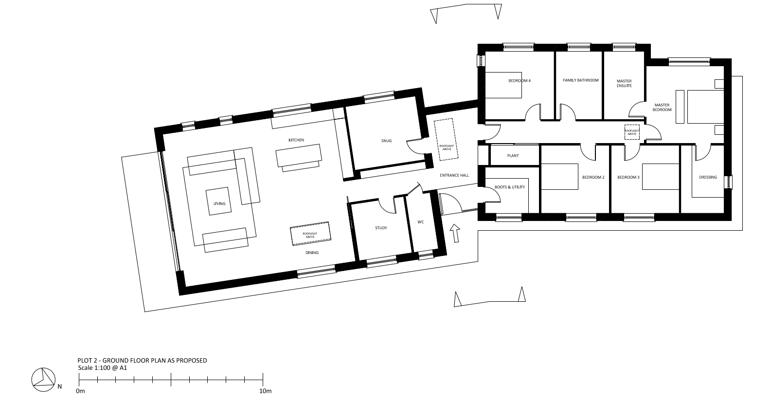
Plot 2 at Abbeydawn Rise presents a rare opportunity to build a striking contemporary four-bedroom home extending to approximately 2,647 sq ft, in a private and highly sought-after countryside setting. The approved design is framed by mature landscaping and positioned to maximise privacy and natural outlook.

The approved single-storey design combines bold architectural form with a timeless rural presence. Clean lines, expansive floor-to-ceiling glazing and sliding doors create light-filled interiors while seamlessly connecting the living spaces to gardens and terraces. Natural materials, including dark-stained timber cladding and local stone, ensure the home sits harmoniously within its surroundings.

Internally, the thoughtfully arranged layout separates living and sleeping zones from a central entrance hall with feature rooflight, offering both openness and privacy. The design incorporates four bedrooms, spacious open-plan living areas and integral parking, all configured for modern family life.

Sustainable elements such as a living sedum roof and discreet solar PV panels enhance energy efficiency and long-term comfort, creating a future-focused home that balances contemporary design with countryside living.

Ideally positioned between the highly regarded towns of Berkhamsted and Tring, both offering vibrant high streets, independent boutiques, cafés, restaurants and well-regarded schools. Mainline rail services provide direct access to London Euston in under 30 minutes, making it ideal for commuters.

The nearby village of Cholesbury adds further rural charm, while surrounding countryside and green spaces, including Ashridge Estate and Tring Park, offer exceptional walking, cycling and outdoor leisure opportunities.


Buyers Information:
In compliance with the UK's Anti Money Laundering (AML) regulations, we are required to confirm the identity of all prospective buyers at the point of an offer being accepted and use a third party, Identity Verification System to do so. There is a nominal charge of £48 (per person) including VAT for this service. For more information, please refer to the terms and conditions section of our website.

Whether you’re looking to
  • buy
  • sell
  • rent
  • let
  • buy
we would love to help.