89, High Street, Berkhamsted, HP4 2DF

Sale Agreed
Guide price of £625,000
Bedrooms
2
Bathrooms
1
Receptions
1
Freehold

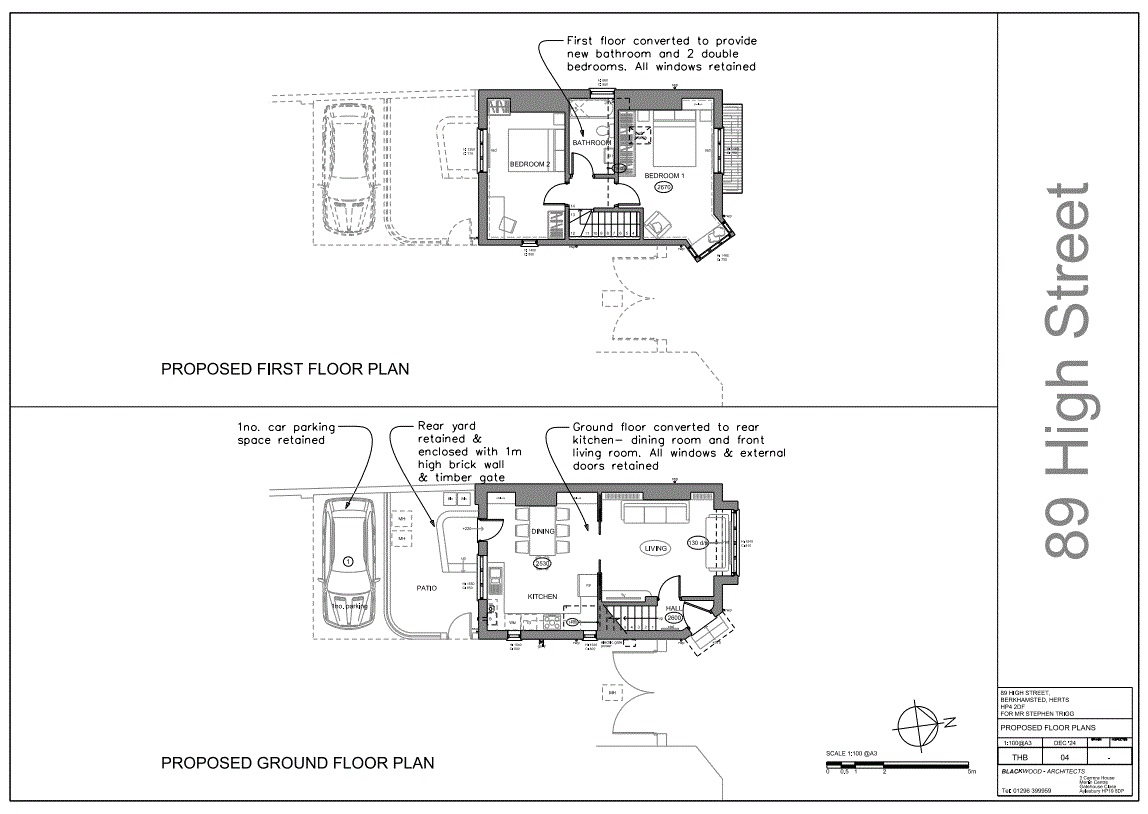
An exciting opportunity to convert this beautiful detached, Victorian building currently used as commercial office space, to a house located in the centre of Berkhamsted with parking.

Located in the heart of Berkhamsted town centre is this detached property, currently being used as a commercial office but with planning permission to convert to a two bedroom house with a courtyard garden and an allocated parking space.

The property exudes Victorian charm and character but is not listed. It is very well maintained by the current owner but is waiting to be lovingly converted to the charming home it could be.

If you're interested in helping the house realise its potential, we'd love to talk to answer any questions and to arrange a tour..

Berkhamsted is a busy market town, located just 30 minutes from London Euston by train, highly desirable for commuters, with excellent transport links by road and rail.

The property is only a short walk from the mainline station and the towns local amenities including, shops, restaurants and pubs.

Buyers Information:
In compliance with the UK's Anti Money Laundering (AML) regulations, we are required to confirm the identity of all prospective buyers at the point of an offer being accepted and use a third party, Identity Verification System to do so. There is a nominal charge of £48 (per person) including VAT for this service. For more information, please refer to the terms and conditions section of our website.

Whether you’re looking to
  • buy
  • sell
  • rent
  • let
  • buy
we would love to help.