Waterhouse Court, Letchworth Garden City, SG6 1FU

Prices from £330,000
Sold out

Waterhouse Court is an exclusive, private development of twelve luxury 2-bedroom apartments and two mews homes in a prime position overlooking Howard Park and Gardens, within a short stroll from the town centre and station.


Bedrooms
2
Bathrooms
2
Receptions
1

New Homes office

31 & 32 Bridge Street
Hitchin
SG5 2DF

Telephone
01462 453195
Email
newhomes@ashtons.co.uk

In a sought after and convenient location, this development comprises twelve 2-bedroom apartments and two 2-bedroom mews homes.

These spacious homes boast a high specification finish and light, open plan accommodation. The contemporary stylish fitted kitchens come complete with integrated appliances and flooring throughout is fitted as standard. Each home benefits from an en-suite and fitted wardrobe to one bedroom (plot specific). There is a communal landscaped courtyard area, allocated resident parking and visitor parking.

Perfect for the downsizer or professional, these luxury apartments offer a convenient location, high quality fixtures & fittings, low maintenance and peace of mind with a 10-year new homes warranty.

Location

This prestigious development is located a short stroll from the town centre and opposite Howard Park and formal gardens in the heart of the town.

The Park is surrounded by trees and has quiet areas for reading or relaxation. Its recently updated leisure facilities cater for young and old alike, to enjoy family activities on the lawns, play area or in the paddling pool, or more organised events in the bowls or social club.

Letchworth, is located in North Hertfordshire and is the World's first "Garden City", the vision of Ebenezer Howard in the early 20th Century, to combine the benefits of town and country living.

The town provides excellent amenities with a good choice of shops, boutiques, restaurants and cafes, with open green spaces and leisure facilities, including Letchworth Golf Club, Chesfield Downs Golf Club, Nuffield Heath Club, and the North Herts Leisure Centre.

Conveniently located for commuters or the opportunity to visit the wonderful Cities of London and Cambridge, the town is on the London Kings Cross to Cambridge mainline and offers a fast, frequent service. London Kings Cross takes just 28 minutes and Cambridge is 26 minutes to the east. Junction 9 on the A1(M) is less than a mile distance.

Luton airport is just 13 miles distance, with Heathrow (via M25) and Stansted in under an hour’s journey time.


Price and availability

Plot
Type
Style
Price
Availability
Plot
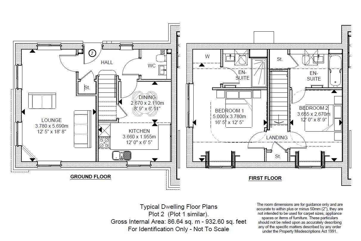
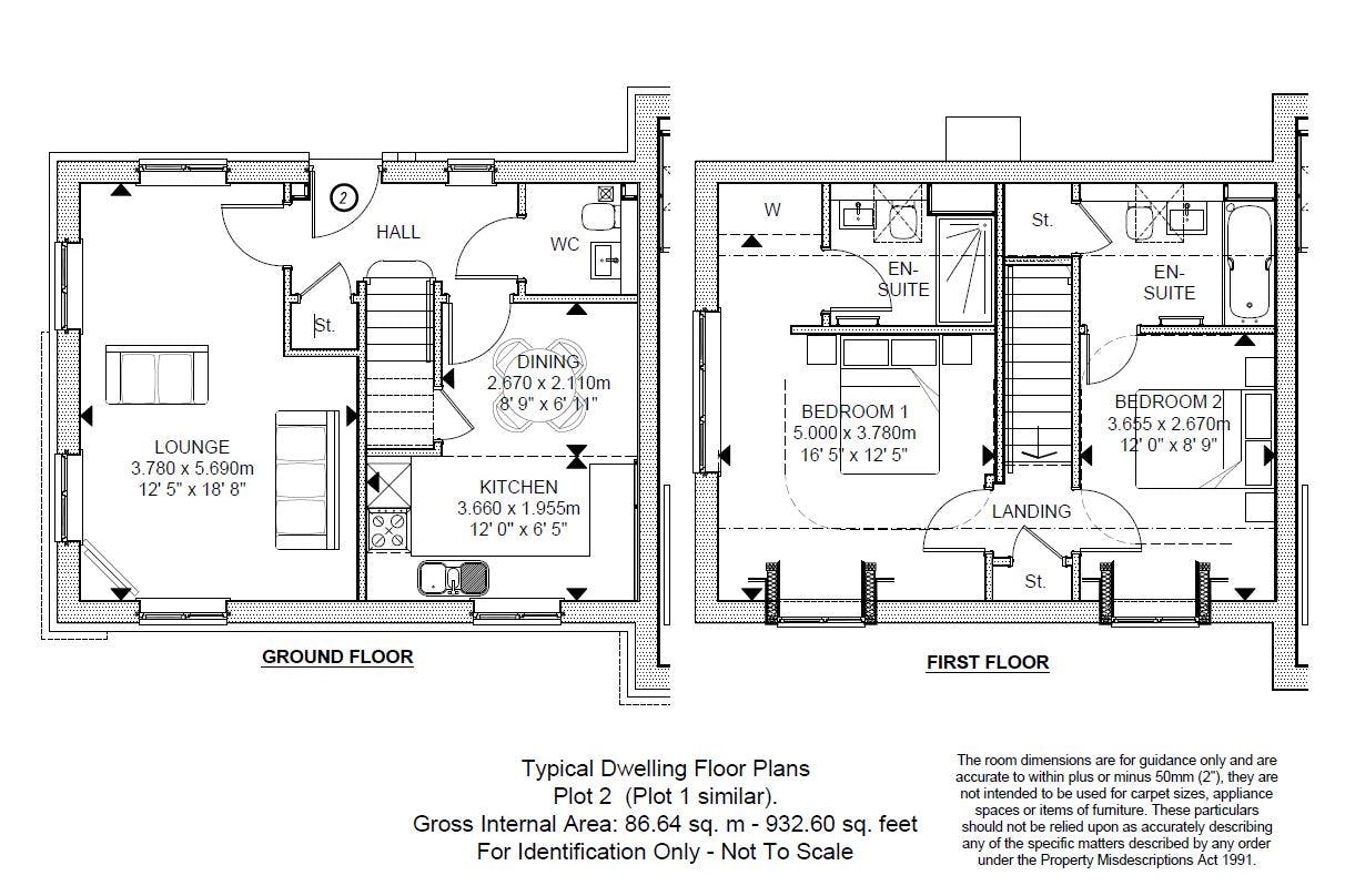
Plot 1
Type
2 bedroom mews house
Style
Semi-detached
Price
£365,000
Availability
Sold
Plot
Plot 2
Type
2 bedroom mews house
Style
Semi-detached
Price
£375,000
Availability
Sold
Plot
Plot 3
Type
2 bedroom apartment
Style
Ground Floor
Price
£330,000
Availability
Sold
Plot
Plot 4
Type
2 bedroom apartment
Style
Ground Floor
Price
£330,000
Availability
Sold
Plot
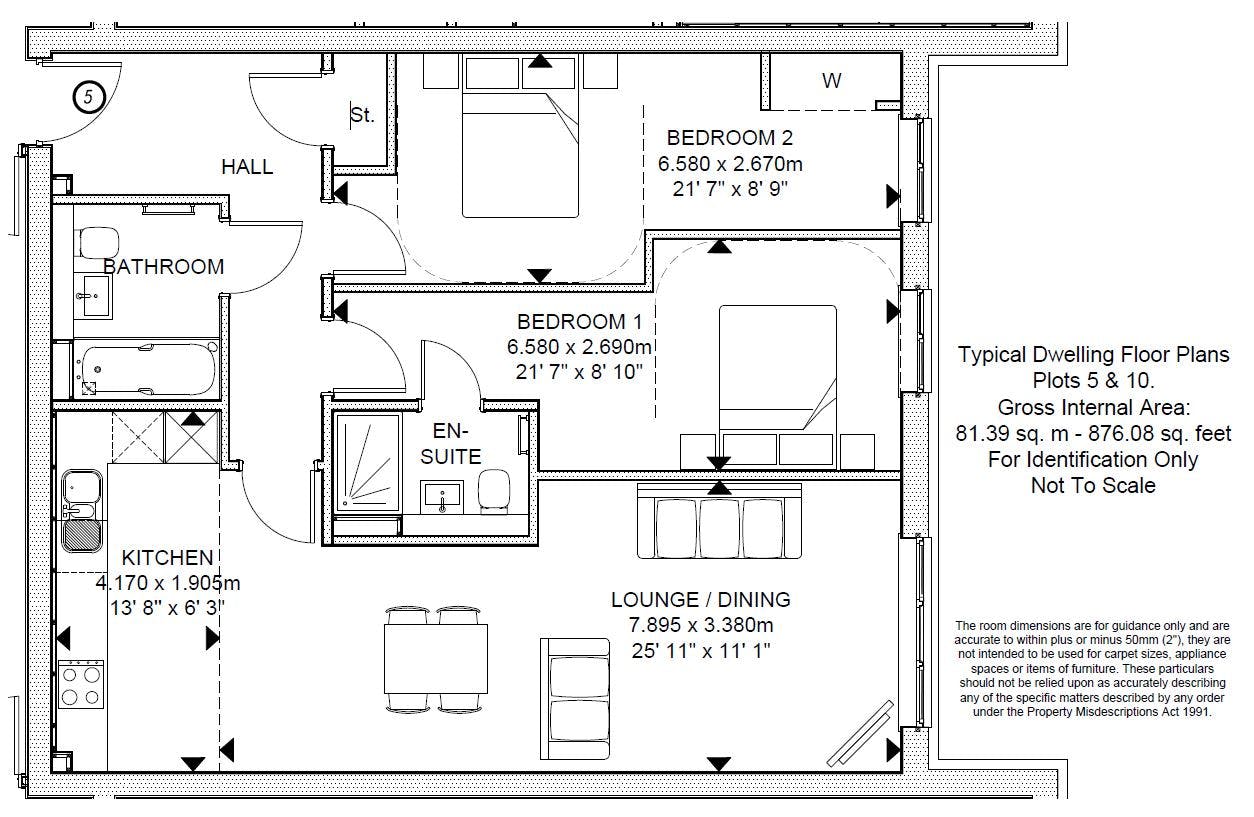
Plot 5
Type
2 bedroom apartment
Style
Ground Floor
Price
£345,000
Availability
Sold
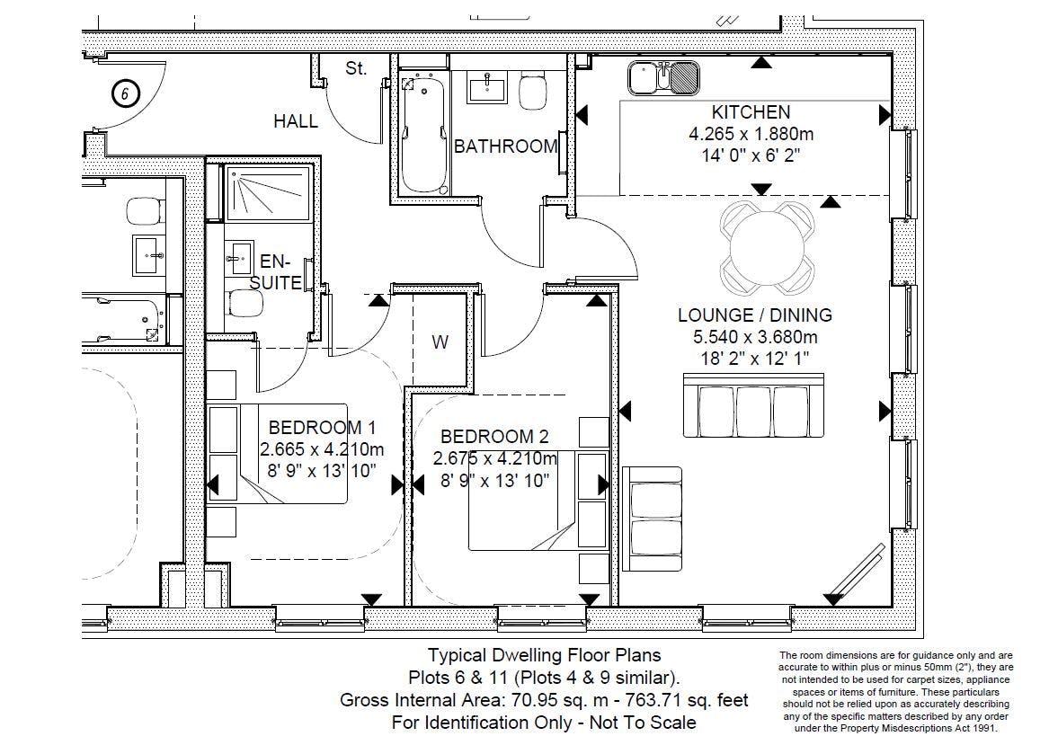
Plot
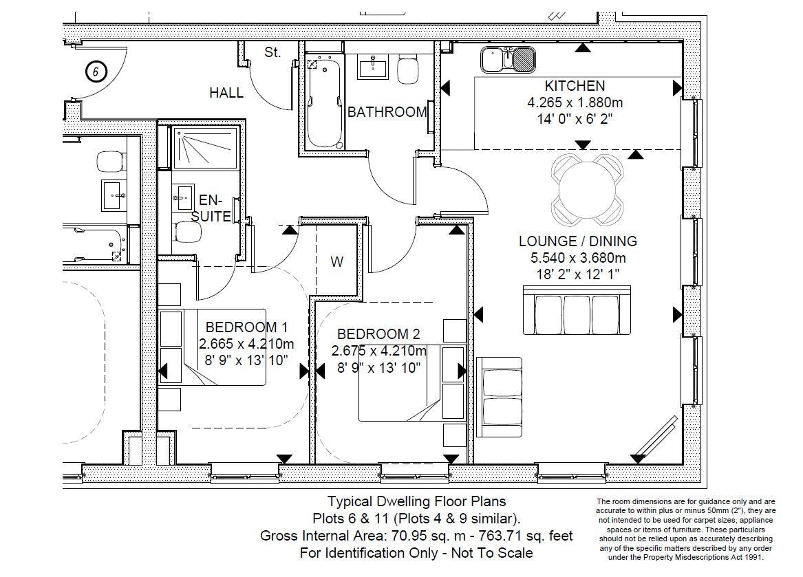
Plot 6
Type
2 bedroom apartment
Style
Ground Floor
Price
£345,000
Availability
Sold
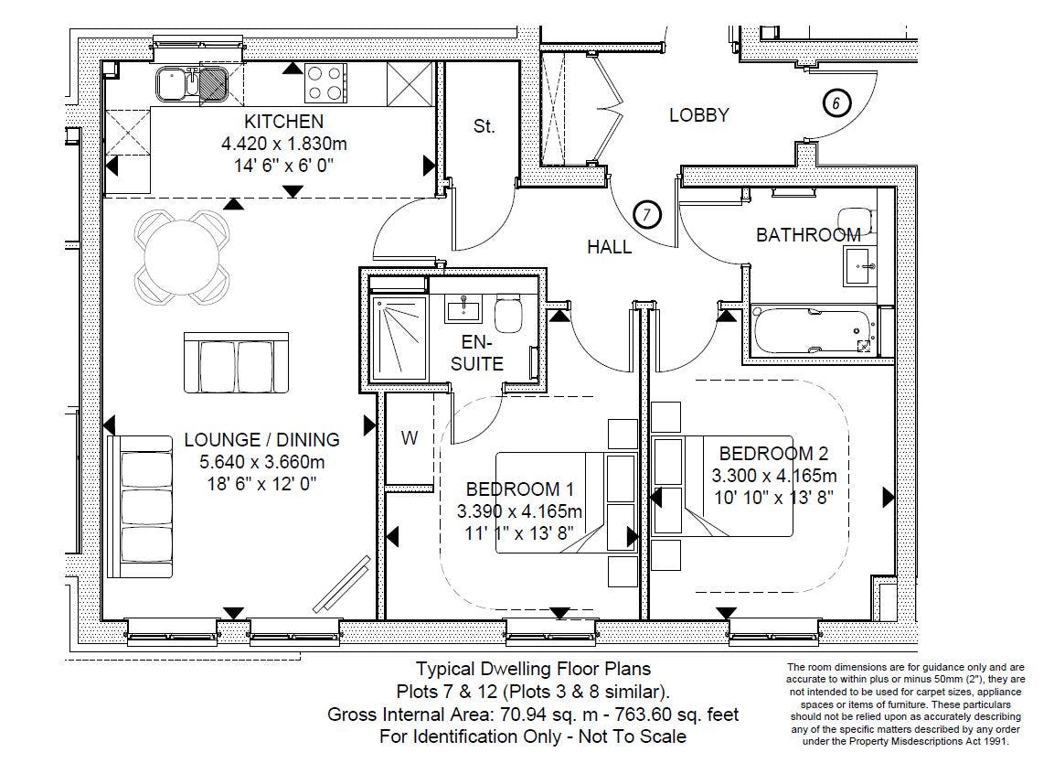
Plot
Plot 7
Type
2 bedroom apartment
Style
Ground Floor
Price
£330,000
Availability
Sold
Plot
Plot 8
Type
2 bedroom apartment
Style
First Floor
Price
£320,000
Availability
Sold
Plot
Plot 9
Type
2 bedroom apartment
Style
First Floor
Price
£330,000
Availability
Sold
Plot
Plot 10
Type
2 bedroom apartment
Style
First Floor
Price
£360,000
Availability
Sold
Plot
Plot 11
Type
2 bedroom apartment
Style
First Floor
Price
£340,000
Availability
Sold
Plot
Plot 12
Type
2 bedroom apartment
Style
First Floor
Price
£320,000
Availability
Sold
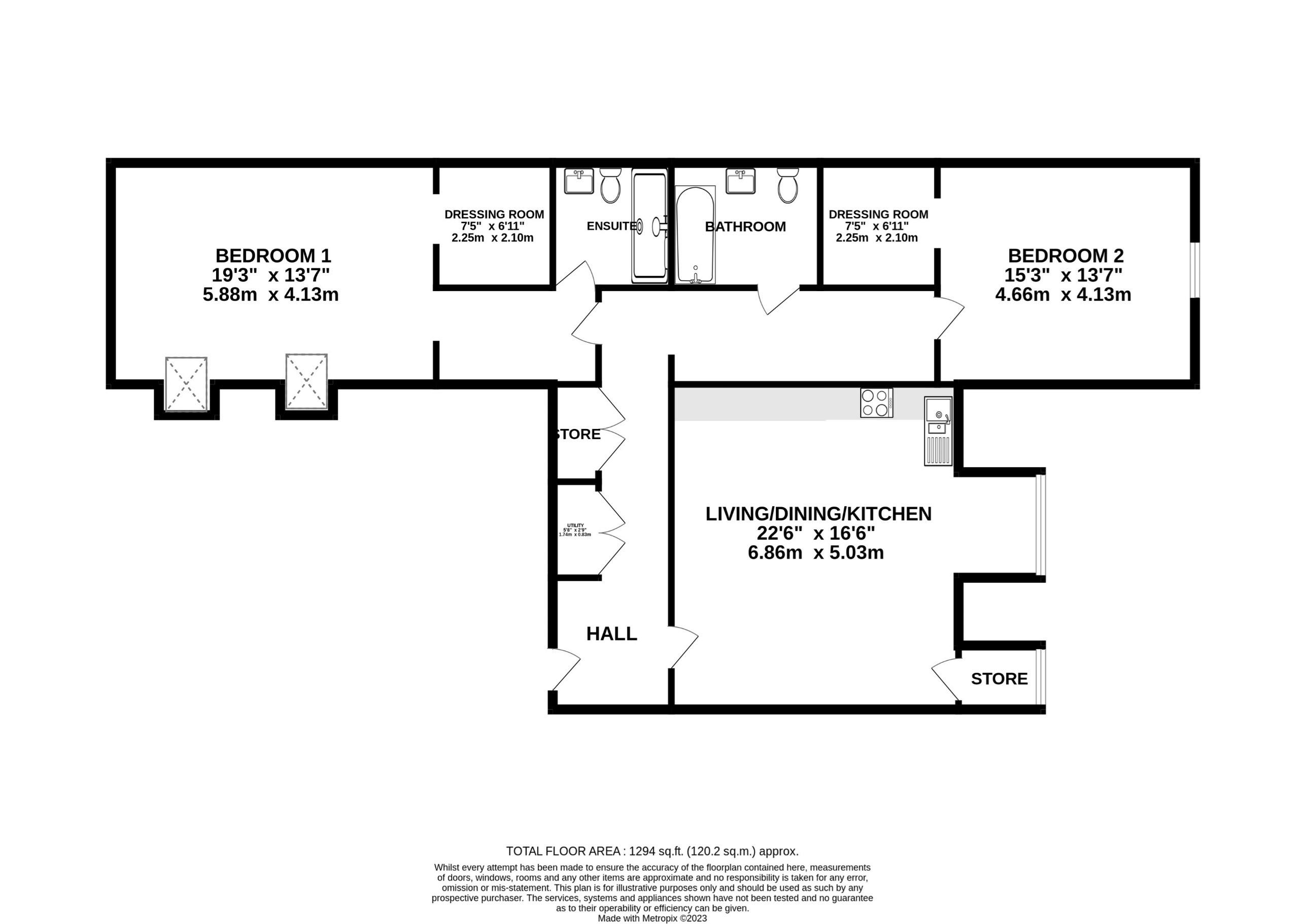
Plot
Plot 13
Type
2 bedroom apartment
Style
Top Floor
Price
£449,950
Availability
Sold
Plot
Plot 14
Type
2 bedroom apartment
Style
Top Floor
Price
£449,950
Availability
Sold

Floor plans

Local area information